
DAHLER Mainz c/o Fischtorplatz Immobilien GmbH
Herr David Demmer
004 ···
Nr. anzeigenPreise & Kosten
Provision für Käufer
5,95 % bezogen auf den Kaufpreis inkl. MwSt.
Abschreibung/Anlage
Denkmalschutz-Afa
Lage
Die idyllische Stadt Nierstein ist ein bedeutendes Mittelzentrum Rheinhessens und liegt direkt neben Oppenheim. Durch ihre Lage in der Rhein-Main-Region und der Metropolregion Rhein-Neckar ist die Stadt hervorragend an das Verkehrsnetz angebunden.
Die Stadt verfügt über eine ausgezeichnete Infrastruktur mit guten...
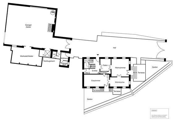
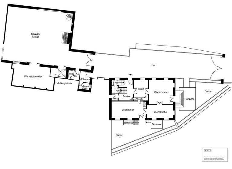
Das Haus
Kategorie
Mehrfamilienhaus
Baujahr
1725
Bezug
nach Absprache
Energie & Heizung
Warum sehe ich diese Anzeige? – Du siehst diese Anzeige basierend auf Ihrer Navigation auf unserer Website und den Suchkriterien, die du verwendet hast.
Energieausweis: für diesen Gebäudetyp nicht notwendig
Weitere Energiedaten
Energieträger
Gas
Heizungsart
offener Kamin
Details
Objektbeschreibung
Dieses außergewöhnliche, historische Denkmal befindet sich in bester Wohnlage in Nierstein, unterhalb der Villa Spiegelberg. Das zwischen 2015 und 2017 von einem erfolgreichen Unternehmer-Ehepaar mit viel Liebe zum Detail kernsanierte Anwesen steht auf dem historischen Gelände des ehemaligen Weinguts der Stadt Nierstein, dem...
Ausstattung
Wie von außen bereits über die hohen Schlossmauern zu erahnen, beeindruckt dieses einzigartige Anwesen im Innern durch eine gelungene Kombination aus modernen und historischen Ausstattungsmerkmalen.
Hochwertige Fliesen in den Bädern, aufwendig restauriertes Parkett, kunstvolle Deckenmalereien mit Stuckornamenten sowie...
Preisinformation
3 Stellplätze
10 Garagenstellplätze
Weitere Informationen
Stichworte
Anzahl der Schlafzimmer: 4, Anzahl der Badezimmer: 4, Anzahl der separaten WCs: 2, Anzahl Terrassen: 3, 3 Etagen
Sonstiges/Wohnen: Einliegerwohnung
Anbieter der Immobilie
Online-ID: 2kk6g5g
Referenznummer: DC-MAI-1310
Finde Angebote wie dieses
Hier geht es zu unserem Impressum, den Allgemeinen Geschäftsbedingungen, den Hinweisen zum Datenschutz und nutzungsbasierter Online-Werbung.