Version: 8.25.1Navigation überspringen
90.000 €
Immowelt logo

Grundstück zum Kauf
90000 €

Smoljanci - Grundstück 808 m², Baugenehmigung

Zum Verkauf steht ein Baugrundstück mit 808 m² Fläche im ruhigen Ort Smoljanci, nur wenige Minuten von Bale und Rovinj sowie 15 Minuten von Pula entfernt.
Für das Grundstück liegt bereits eine gültige Baugenehmigung vor - der Baubeginn ist sofort möglich, lediglich die Bauanzeige muss eingereicht werden. Der kommunale Beitrag sowie der Stromanschluss wurden bezahlt. Das Grundstück hat Zugang über eine asphaltierte Straße, was den Baustellenbetrieb erleichtert.
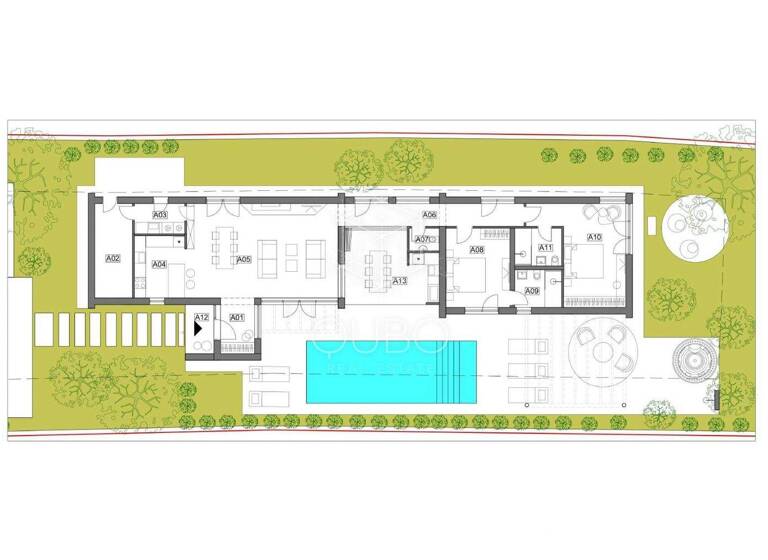
Das genehmigte Projekt sieht ein modernes eingeschossiges Haus mit 160 m² Wohnfläche vor, bestehend aus:
. zwei großzügigen Schlafzimmern mit eigenen Bädern (en suite),
. einem hellen Wohnbereich mit vielen Glasflächen,
. Fußbodenheizung und Gebläsekonvektoren zur Klimatisierung,
. einem 35 m² großen Pool mit Salzelektrolyse-System,
. sowie einer Wasseraufbereitungsanlage (Depurator).
Auf Wunsch kann auch die Bauleitung oder schlüsselfertige Ausführung organisiert werden - ideal für Käufer, die ein sofort baubereites Grundstück mit hochwertigem Projekt suchen, sei es für den Eigenbedarf oder zur touristischen Vermietung.

Gemäß den allgemeinen Geschäftsbedingungen ist vor der Besichtigung der Immobilie ein Maklervertrag zu unterzeichnen.

Zusätzliche Kosten:
Beim Kauf einer Immobilie fällt eine Grunderwerbsteuer in Höhe von 3 % des Kaufpreises an.
Die Maklerprovision beträgt 3 % zzgl. MwSt.

ID CODE: 6

Grundrisse

Grundrisse
1 / 2

Virtueller Rundgang

Video

Realisiere Dein Projekt

Bausubstanz und Energie

Möchtest du Details zum Energieverbrauch?info_energy_calculation-icon
Immowelt logo

Preisdetails

Kaufpreis
90000 €
Provision für Käufer
Bitte beachte, das Angebot kann bei Vertragsabschluss die Zahlung einer Provision beinhalten. Weitere Informationen erhältst Du vom Anbieter.

Lage

address-icon
Svetvincenat (52342)
Der Anbieter hat die genaue Adresse nicht freigegeben

Weitere Informationen

Stichworte Gesamtfläche: 808,00 m², Nebenzentrumslage

Weitere Services

Lust auf eine Besichtigung?
Eine Frage zur Immobilie?
Nachricht hinzufügen
Mit der Nutzung der oben angegebenen Telefonnummer oder durch Klicken auf „Kontaktieren“ akzeptierst Du die Allgemeinen Nutzungsbedingungen, denen Du jederzeit widersprechen kannst. Weitere Informationen zum Datenschutz

Über den Anbieter

Prilaz Kikova 4, 52220 LABIN
partner badge
Partnerschaft
Silk Road j.d.o.o.Dein Kontakt
Online-ID: 25C9AVHK5H4X
Referenznummer: 3170-6
LABIN d.o.o.
Nachricht hinzufügen
Mit der Nutzung der oben angegebenen Telefonnummer oder durch Klicken auf „Kontaktieren“ akzeptierst Du die Allgemeinen Nutzungsbedingungen, denen Du jederzeit widersprechen kannst. Weitere Informationen zum Datenschutz
Wie zufrieden bist du mit dieser Seite (nicht mit der Immobilie selbst)?