Version: 8.22.4Navigation überspringen
J&P Immobilienmakler GmbH
1.495.000 €
3 Zimmer  •  124,5 m²

Wohnung zum Kauf
1495000 €
12.013 €/m²
3 Zimmer  •  124,5 m²

Wohnen über der Stadt exklusiv, individuell, außergewöhnlich

Nur wenige Schritte vom Prater entfernt und unmittelbar am Donaukanal entsteht ein außergewöhnliches Wohnensemble, das urbanes Lebensgefühl mit hohem individuellem Gestaltungsspielraum verbindet.

Im neu errichteten Dachgeschoss eines liebevoll modernisierten Altbaus werden insgesamt 9 hochwertige Wohnungen mit 2 bis 5 Zimmern realisiert. Jede Einheit bietet zumindest eine private Außenfläche sei es eine Loggia, ein Balkon oder eine Terrasse.

Künftige Eigentümer können aus einer Vielzahl an Ausstattungsvarianten wählen und diese frei kombinieren, um ein Zuhause zu schaffen, das exakt den persönlichen Vorstellungen entspricht. Der historische Charakter des Altbaus trifft dabei auf zeitgemäße Wohnqualität und ergibt ein harmonisches Gesamterlebnis.

Innen wie außen eröffnen sich großzügige Freiräume: individuelle Gestaltungsmöglichkeiten innerhalb Ihrer Wohnung sowie beste Lagequalität direkt vor der Tür mit dem Donaukanal für sportliche Aktivitäten am Morgen und dem Prater als vielfältiges Naherholungsgebiet.

Ein besonderes Merkmal dieses Projekts ist der weitreichende Einfluss auf die Planung: Der Erwerb vom Plan weg ermöglicht es Ihnen, sowohl Grundrissdetails als auch Ausstattung maßgeblich mitzugestalten und so Ihre persönliche Wunschwohnung zu realisieren.

Ihre Vorteile im Überblick
Exklusive Architektur mit Raum für individuelle Planung
Herrliche Ausblicke über die Stadt
9 hochwertige Eigentumswohnungen
25 Zimmer | Wohnflächen von ca. 45 bis 186 m²
Größere Wohnungszusammenlegungen möglich (bis zu ca. 400 m²)
Maximale Gestaltungsfreiheit | frei kombinierbare Ausstattungslinien
Raumhöhen bis 2,72 m auf der oberen Dachgeschossebene
Vielfältige Freiflächen: Loggien, Balkone, Terrassen und Dachterrassen
Hochwertiges, luxuriöses Materialkonzept
Klimatisierung
Toplage am Donaukanal | Nähe Prater
Nur wenige Minuten ins Stadtzentrum

Lage
Die Immobilie befindet sich in einer besonders attraktiven Lage des 3. Bezirks nur wenige Schritte vom Donaukanal sowie dem architektonisch eindrucksvollen Hundertwasserhaus entfernt. Der Donaukanal und das weitläufige Erholungsgebiet Prater sind bequem zu Fuß erreichbar und bieten ideale Möglichkeiten zum Spazieren, Radfahren oder entspannten Verweilen am Wasser. Auch der beliebte Rochusmarkt sowie die Wiener Innenstadt liegen nur wenige Gehminuten entfernt und sorgen für ein vielseitiges urbanes Angebot. Eine Lage, die Nahversorgung, hervorragende Infrastruktur, zahlreiche Freizeit- und Erholungsmöglichkeiten, städtisches Ambiente und kulturelle Highlights auf harmonische Weise verbindet.

Ansprechpartner
Frau Doris Kurzweil || +43 699 17 55 66 16 || dk@jpi.at
Frau Daniela Schachinger, Dipl.-IM || +43 676 39 29 019 || ds@jpi.at

Wir weisen darauf hin, dass wir mit dem Abgeber in ständiger Geschäftsbeziehung stehen und schon aus diesem Grund ein wirtschaftliches Naheverhältnis vorliegt.

Merkmale

  • Bezug: nach Fertigstellung
  • Dachgeschoss
  • Personenaufzug
  • Balkon
  • Terrasse

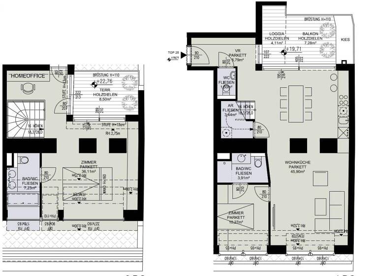
Grundrisse

Grundrisse
1 / 1

Realisiere Dein Projekt

Bausubstanz und Energie

Heizwärmebedarf (HWB)

B

Gesamtenergieeffizienz (fGEE)

A+
  • Baujahr2027
  • Zustand der ImmobilieNeubau
  • HeizungsartZentralheizung
  • EnergieträgerFernwärme
MediumRectangleTop

Preisdetails

Kaufpreis
1495000 €
12.012,86 €/m²
Provision für Käufer
3%

Lage

address-icon
Untere Weißgerber Straße 17Wien (1030)

Weitere Informationen

Stichworte Anzahl der Badezimmer: 1, Anzahl der separaten WCs: 1, Anzahl Balkone: 1, Anzahl Terrassen: 1, Balkon-Terrassen-Fläche: 15,78 m², Wohnungsnr.: 25

Weitere Services

Lust auf eine Besichtigung?
Eine Frage zur Immobilie?
Nachricht hinzufügen
Mit der Nutzung der oben angegebenen Telefonnummer oder durch Klicken auf „Kontaktieren“ akzeptierst Du die Allgemeinen Nutzungsbedingungen, denen Du jederzeit widersprechen kannst. Weitere Informationen zum Datenschutz

Über den Anbieter

Lehargasse 7, 1060 WIEN
partner badge
Partnerschaft
Frau Daniela SchachingerDein Kontakt
Online-ID: 2mp335l
Referenznummer: 101/18519
J&P Immobilienmakler GmbH
J&P Immobilienmakler GmbH
Nachricht hinzufügen
Mit der Nutzung der oben angegebenen Telefonnummer oder durch Klicken auf „Kontaktieren“ akzeptierst Du die Allgemeinen Nutzungsbedingungen, denen Du jederzeit widersprechen kannst. Weitere Informationen zum Datenschutz
MediumRectangleTop
MediumRectangleBottom
MediumRectangleTop
Wie zufrieden bist du mit dieser Seite (nicht mit der Immobilie selbst)?