Version: 8.25.1Navigation überspringen
Italia Immobilien
2.600.000 €
50 Zimmer  •  1.516 m²  •  40.000 m² Grundstück

Bauernhaus zum Kauf
2600000 €
1.715 €/m²
50 Zimmer  •  1.516 m²  •  40.000 m² Grundstück

Luxus Gebäudekomplex bestehend aus 3 Bauernhäusern, Pool, Veranden und großem gepflegten Garten

In der Nähe der Keramikstadt Deruta, am Tiber, liegt diese schöne Ferienanlage, die aus 3 Bauernhäusern mit einer Gesamtfläche von ca. 1250 m² und einem gepflegten Garten mit Swimmingpool besteht. Das Grundstück hat eine Größe von ca. 4 ha. Wenn man den Hof betritt, befindet sich auf der rechten Seite das erste Bauernhaus, das über einen eigenen Eingang verfügt und im Erdgeschoss ein Restaurant mit Küche, Badezimmer für Gäste und Personal, Garderobe und Abstellraum beherbergt. Steigt man die Außentreppe des Bauernhauses hinauf, gelangt man in einen geräumigen Raum mit einem großen Kamin. Von diesem Wohnzimmer aus gelangt man in den Schlafbereich, wo sich 4 Schlafzimmer (2 Dreibettzimmer, 2 Doppelzimmer) mit eigenem Bad befinden. Wenn man die Treppe hinaufgeht, gelangt man auf eine kleine Terrasse, von der aus man 2 Zweizimmerwohnungen erreicht, die jeweils aus einem Eingangsbereich, einer Kochnische mit Schlafsofa, einem Schlafzimmer mit Doppelbett und einem Badezimmer bestehen. Das Hauptgebäude besteht aus 2 Etagen: im Erdgeschoss gibt es eine Wohnung mit Eingangsbereich, Kochnische, Schlafsofa, Schlafzimmer mit Doppelbett und Bad und eine weitere Wohnung mit Eingangsbereich, Kochnische, Schlafsofa, Schlafzimmer mit Doppelbett und Bad. Hinzu kommen ein Empfangsbereich, ein gemeinsamer Aufenthaltsraum, eine Küche und ein weiteres Badezimmer. Über die Innentreppe gelangt man in den ersten Stock, in dem sich eine Wohnung mit Wohnzimmer, Kochnische, 2 Doppelschlafzimmern und 1 Bad befindet. Weiter geht es in ein großes Wohnzimmer mit einem imposanten Kamin, wo auf halber Höhe eine Tür ist, die zu 2 Doppelzimmern mit Bad und 2 Dreibettzimmern mit Bad führt. Im dritten Wohnhaus befinden sich 4 Zweizimmerwohnungen mit Wohnzimmer und Kochnische, Bad und Schlafzimmer mit Doppelbett, 1 Doppelzimmer mit Bad, ein Barbereich mit Küche und Bädern für den Pool. Im gleichen Haus auf der Poolseite und gegenüber befinden sich zwei große Veranden. Im schönen Garten gibt es einen 16x7 m großen Swimmingpool und eine Grünfläche, die als Spielplatz genutzt wird.

Die meisten Bauernhäuser sind mit Sichtmauerwerk ausgestattet. Die Innenräume sind besonders gepflegt mit alten Terrakottaböden und Decken mit Holzbalken und Brettern. Es gibt originale alte Holztüren und Schwingtüren; die Türen und Fenster sind aus Holz. Der gemeinsame Teil des Anwesens sowie das Wohnzimmer weisen als besondere Eigenschaft Gewölbe mit Sichtziegeln auf; die Fensterbänke sind aus Terrakotta-Ziegeln gefertigt. Das Dach ist mit klassischen Ziegeln gedeckt.

Die Immobilie ist sofort bewohnbar, da sie über alle wichtigen Anschlüsse verfügt. Die Stromversorgung erfolgt über zwei Photovoltaikanlagen, die Wasserversorgung für den Verbrauch des Landhauses erfolgt über die städtische Wasserleitung, für die Bewässerung des Gartens und anderer Grünflächen gibt es einen privaten Brunnen. Außerdem gibt es einen Festnetztelefonanschluss mit ADSL und Wi-Fi in allen Teilen des Landhauses. Die Heizung erfolgt mit Flüssiggas.

Die Immobilie ist ein Unterkunftsbetrieb, da sie sich sehr gut für eine solche Nutzung eignet.

Merkmale

  • 40.000 m² Grundstück
  • Einbauküche
  • Bodenbelag: Parkett, Terrakotta
  • offener Kamin
  • Swimmingpool

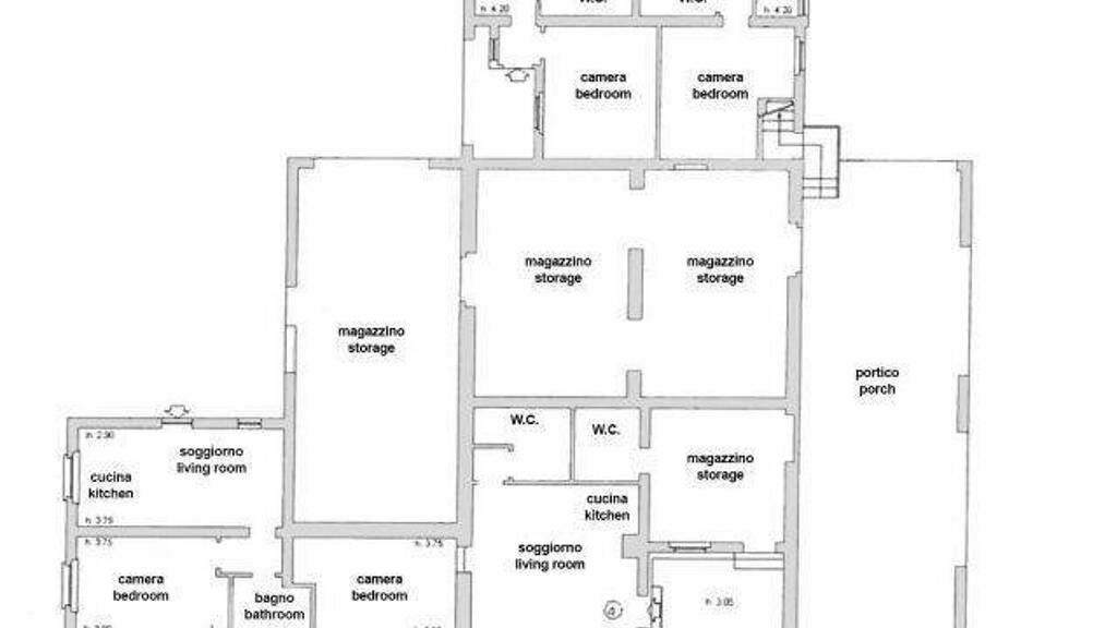
Grundrisse

Grundrisse
1 / 2

Realisiere Dein Projekt

Bausubstanz und Energie

Möchtest du Details zum Energieverbrauch?info_energy_calculation-icon
  • Baujahr1800
  • Zustand der ImmobilieGepflegt
  • HeizungsartZentralheizung
  • EnergieträgerFlüssiggas
MediumRectangleTop

Preisdetails

Kaufpreis
2600000 €
1.715,04 €/m²
Provision für Käufer
3,66 % inkl. MwSt. inkl. MwSt.

Lage

address-icon
Deruta (06053)
Der Anbieter hat die genaue Adresse nicht freigegeben
Das Anwesen befindet sich in der Nähe von Deruta. Ungefähr 300 Meter vom Grundstück entfernt befindet sich die E45, die Autobahn Cesena - Orte, über die man in wenigen Minuten die Stadt Perugia, die Stadt Todi, die Stadt Assisi und den Lago Trasimeno erreichen kann. Die Autobahn verbindet sich mit anderen Hauptstrecken, die es ermöglichen, in maximal 90 Minuten die Adriaküste und die Städte Rom, Florenz und Siena zu erreichen. Der Flughafen Perugia ist 13 km entfernt. Alle wichtigen Verkehrsmittel und medizinischen Einrichtungen sind in weniger als 15 Minuten erreichbar.

Weitere Informationen

Stichworte Gesamtfläche: 2.092,00 m², Anzahl der Schlafzimmer: 18, Anzahl der Badezimmer: 17, 2 Etagen

Weitere Services

Lust auf eine Besichtigung?
Eine Frage zur Immobilie?
Nachricht hinzufügen
Mit der Nutzung der oben angegebenen Telefonnummer oder durch Klicken auf „Kontaktieren“ akzeptierst Du die Allgemeinen Nutzungsbedingungen, denen Du jederzeit widersprechen kannst. Weitere Informationen zum Datenschutz

Über den Anbieter

Hahnenstraße 2, 56333 Winningen
partner badge
Partnerschaft
Frau Nadia Manuela AronDein Kontakt
Online-ID: 23MDTI3V3SV9
Referenznummer: IT-00832
Italia Immobilien
Italia Immobilien
Bewertung: 4,5 von 5 Sternen
Nachricht hinzufügen
Mit der Nutzung der oben angegebenen Telefonnummer oder durch Klicken auf „Kontaktieren“ akzeptierst Du die Allgemeinen Nutzungsbedingungen, denen Du jederzeit widersprechen kannst. Weitere Informationen zum Datenschutz
MediumRectangleTop
MediumRectangleBottom
MediumRectangleTop
Wie zufrieden bist du mit dieser Seite (nicht mit der Immobilie selbst)?