Version: 8.24.0Navigation überspringen
1.400 €
3,5 Zimmer  •  100 m²
Immowelt logo

Wohnung zur Miete - Erstbezug
1.400 €
3,5 Zimmer  •  100 m²

Erstbezug: Exklusive Neubau-Luxuswohnung im 1. OG mit großem Balkon und Stellplatz

Diese exklusive Neubauwohnung im ersten Obergeschoss in einem hochwertigen Zweifamilienhaus vereint großzügige Grundrisse, hochwertige Ausstattung und modernste Technik zu einem Wohnangebot, das in Itzehoe einmalig ist!

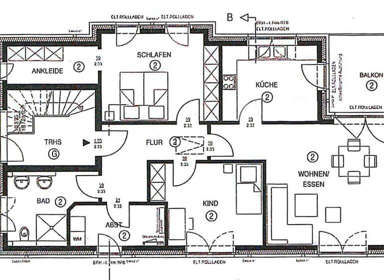
Beim Betreten des Hauses gelangen Sie zunächst in das gepflegte, gemeinschaftliche Treppenhaus. Hier ist auch der Haustechnikraum untergebracht, in dem die zentrale Heizungsanlage des Gebäudes ihren Platz findet. Über das Treppenhaus erreichen Sie Ihre Mietwohnung, wo Sie eine einladende Diele empfängt, die alle Räume miteinander verbindet.

Zur rechten Seite liegt das großzügige Tageslichtbad, ausgestattet mit einer ebenerdigen, gefliesten Dusche, einem Doppelwaschtisch und hochwertigen Fliesen - ein Ort zum Wohlfühlen. Ebenfalls auf dieser Seite befindet sich der praktische Hauswirtschaftsraum mit genügend Platz und Anschlüssen für Waschmaschine und Trockner sowie weiteren Abstellmöglichkeiten.

Geradeaus eröffnet sich das Herzstück der Wohnung: ein lichtdurchfluteter Wohn- und Essbereich. Von hier aus haben Sie Zugang zum überdachten Balkon mit hochwertigem Geländer, Einbaustrahlern und WPC-Bodenbelag. Angrenzend an den Wohn- und Essbereich befindet sich die Küche, die mit einer modernen weißen Einbauküche ausgestattet ist. Sie bietet dank zahlreicher Schränke viel Stauraum, verfügt über einen Backofen auf Arbeitshöhe und bietet zudem ausreichend Platz für einen gemütlichen Frühstückstisch.

Zwei weitere Zimmer lassen sich flexibel nutzen - ob als Schlafzimmer, Kinderzimmer oder Homeoffice. Ein besonderes Highlight ist dabei ein Zimmer mit angrenzender, separater Ankleide, die für zusätzlichen Komfort sorgt.

Die Ausstattung überzeugt durch Qualität und durchdachte Details. In allen Wohnräumen sind hochwertige Bodenbeläge vorhanden, großzügige Türbreiten und erhöhte Decken sorgen für ein komfortables Wohngefühl und eine offene Raumwirkung.

Eine moderne Wärmepumpe versorgt die Räume über eine angenehme Fußbodenheizung, während eine kontrollierte Be- und Entlüftungsanlage für ein gesundes Raumklima sorgt. Zusätzlich ist eine Photovoltaikanlage mit Speicher installiert. Farbige, dreifach verglaste Kunststofffenster mit elektrischen Rollläden tragen zusätzlich zu Wohnkomfort und Nachhaltigkeit bei.

Auch in puncto Sicherheit ist die Wohnung bestens ausgestattet: Eine moderne Video-Gegensprechanlage sorgt für zusätzlichen Komfort. Ein Stellplatz direkt am Haus gehört ebenfalls zur Mietsache.

Diese Obergeschosswohnung bietet Ihnen die perfekte Kombination aus modernem Wohnkomfort, hoher Energieeffizienz und einem durchdachten Grundriss - ein ideales Zuhause für Paare, Familien oder alle, die großzügiges Wohnen mit Weitblick schätzen.

Merkmale

  • Bezug: sofort
  • Außen-Stellplatz
  • Balkon
Allgemeines
.Moderne Obergeschosswohnung in einem Zweifamilienhaus
.Kfz-Stellplatz

Raumaufteilung
.Diele: Zentrale Verbindung zu allen Räumen
.Wohn-/Essbereich mit Zugang zum großzügigen, überdachten Balkon in Südwest-Ausrichtung
.Moderne Einbauküche mit zahlreichen Schränken und Platz für einen Frühstückstisch
.2 weitere Zimmer: Nutzbar als Schlafzimmer, Kinderzimmer oder Büro
.Eines davon plus separates Ankleidezimmer
.Tageslichtbad mit ebenerdig, gefliester Dusche, Doppelwaschtisch und hochwertigen Fliesen
.Hauswirtschaftsraum mit Anschlüssen für Waschmaschine/Trockner und weiteren Abstellmöglichkeiten

Technik & Komfort
.Hochwertige Bodenbeläge in allen Wohnräumen
.Großzügige Türbreiten und erhöhte Decken
.Fußbodenheizung in allen Räumen
.Kontrollierte Be- und Entlüftungsanlage (für gesundes Raumklima)
.Moderne Wärmepumpe
.Photovoltaikanlage mit Stromspeicher
.Dreifach verglaste, farbige Kunststofffenster mit Rollläden
.Video-Gegensprechanlage

Grundrisse

Grundrisse
1 / 1

Realisiere Dein Projekt

Bausubstanz und Energie

Der Anbieter hat keine Informationen zum Energieverbrauch bereit gestellt.
  • Baujahr2025
  • Zustand der ImmobilieErstbezug
  • HeizungsartFußbodenheizung
  • EnergieträgerLuft-/Wasser-Wärmepumpe
Immowelt logo

Mietkosten

Warmmiete
1.700 €
Kaltmiete
14 €/m²
1.400 €
Nebenkosten
300 €
Heizkosten
in Warmmiete enthalten
Kaution
4200 €
Weitere Preisinformationen
1 Stellplatz

Lage

address-icon
Itzehoe (25524)
Der Anbieter hat die genaue Adresse nicht freigegeben
Diese Wohnung liegt in einer der attraktivsten Wohngegenden Itzehoes und vereint eine ruhige Umgebung mit allen Vorzügen einer zentralen Lage. Das moderne Wohnumfeld mit seinen gepflegten Neubauten schafft ein angenehmes Ambiente, das Sicherheit, Komfort und Lebensqualität vermittelt.
Ein besonderer Pluspunkt ist die hervorragende Nahversorgung: Supermärkte, Bäckereien, Apotheken und Ärzte befinden sich in fußläufiger Entfernung, sodass viele Besorgungen ganz bequem zu erledigen sind. Auch Friseure, kleine Geschäfte und Dienstleister liegen nur wenige Schritte entfernt und machen den Alltag besonders komfortabel.

Gerade für Seniorinnen und Senioren ist dies ein idealer Standort: Die kurzen Wege sorgen für Selbstständigkeit und Mobilität, auch ohne Auto. Ergänzt wird dies durch eine ausgezeichnete Verkehrsanbindung. Mehrere Bushaltestellen befinden sich in der Nähe und bieten eine schnelle Verbindung in die Innenstadt, zum Bahnhof oder zu den umliegenden Stadtteilen. Der Bahnhof Itzehoe wiederum garantiert mit seinen regelmäßigen Verbindungen - unter anderem Richtung Hamburg - eine bequeme Anbindung an die Metropolregion, sei es für Ausflüge, Arztbesuche oder Familienbesuche. Auch Autofahrer profitieren von der guten Erreichbarkeit: Über die nahegelegene A23 ist Hamburg in weniger als einer Stunde erreichbar.

Darüber hinaus überzeugt die Lage durch ihre Lebensqualität: Itzehoe bietet eine charmante Innenstadt mit Cafés, Restaurants und vielfältigen Einkaufsmöglichkeiten. Freizeit- und Kulturangebote wie Theater, Schwimmbäder, Sportanlagen und der beliebte Wochenmarkt bereichern das Leben vor Ort und laden dazu ein, aktiv zu bleiben und die Gemeinschaft zu genießen. Grünanlagen und Spazierwege in der Umgebung runden das Angebot ab und sorgen für Erholung direkt vor der Haustür.

Hier verbindet sich eine ruhige, wohnliche Atmosphäre mit bester Infrastruktur und optimaler Anbindung - die ideale Kombination für alle, die Komfort, Sicherheit und Lebensfreude schätzen.

Weitere Informationen

Sonstiges Bitte geben Sie uns bei Ihrer Anfrage Ihre Kontaktdaten bekannt, wie vollständiger Name, Adresse, Telefonnummer, E-Mail-Adresse. So haben wir einen Nachweis für unseren Auftraggeber. Ihre Daten werden selbstverständlich vertraulich behandelt (gemäß DSGVO) und nicht an Dritte weitergegeben.

Bitte beachten Sie, der Vermieter verlangt eine Selbstauskunft von Ihnen als Mietinteressenten. Wir senden Ihnen gerne ein entsprechendes Formular, nachdem Sie eine Anfrage gestellt haben. Stichworte Anzahl der Schlafzimmer: 2, Anzahl der Badezimmer: 1, Anzahl Balkone: 1, Bundesland: Schleswig-Holstein

Weitere Services

Lust auf eine Besichtigung?
Eine Frage zur Immobilie?
Nachricht hinzufügen
Mit der Nutzung der oben angegebenen Telefonnummer oder durch Klicken auf „Kontaktieren“ akzeptierst Du die Allgemeinen Nutzungsbedingungen, denen Du jederzeit widersprechen kannst. Weitere Informationen zum Datenschutz

Über den Anbieter

Edendorfer Str. 177, 25524 Itzehoe
partner badge
3 Jahre Partnerschaft
Herr Stefan WeißertDein Kontakt
Online-ID: 2nh725l
Referenznummer: SW-683
Weißert Immobilien
Weißert Immobilien
Bewertung: 4,9 von 5 Sternen
Nachricht hinzufügen
Mit der Nutzung der oben angegebenen Telefonnummer oder durch Klicken auf „Kontaktieren“ akzeptierst Du die Allgemeinen Nutzungsbedingungen, denen Du jederzeit widersprechen kannst. Weitere Informationen zum Datenschutz
Wie zufrieden bist du mit dieser Seite (nicht mit der Immobilie selbst)?