Version: 8.24.0Navigation überspringen
299.000 €
6 Zimmer
Immowelt logo

Praxis zum Kauf
299000 €
6 Zimmer

Gewerbeeinheit in Innenstadtlage - Umnutzung zu Wohneinheiten denkbar

Diese gepflegte Einheit befindet sich im 1. Obergeschoss eines im Jahr 1998 massiv errichteten Wohn- und Geschäftshauses in zentraler Innenstadtlage von Prenzlau. Sie ist derzeit als Gewerbeeinheit ausgewiesen, bietet jedoch aufgrund ihrer Größe, des Zuschnitts sowie der vorhandenen Sanitär-, Erschließungs- und Barrierefreiheitsmerkmale grundsätzlich die Möglichkeit einer Umnutzung in bis zu zwei separate Wohneinheiten, vorbehaltlich der behördlichen Genehmigung.

Die Immobilie wurde bis zum 01.02.2026 über viele Jahre erfolgreich als Zahnarztpraxis genutzt und steht nun zur freien Verfügung. Der funktionale und klar strukturierte Grundriss ermöglicht eine Nutzung als Arzt- oder Zahnarztpraxis, Therapie- oder Büroräume, Kanzlei oder sonstige Dienstleistungsflächen, ohne dass größere bauliche Veränderungen erforderlich sind.

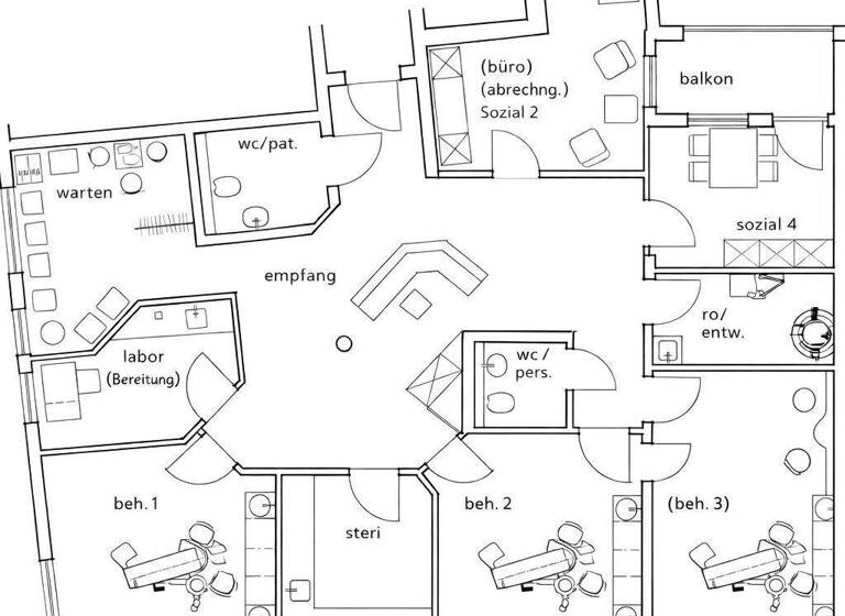
Auf einer Fläche von ca. 155 m² erstrecken sich ein großzügiger Empfangsbereich mit Wartezone sowie bis zu sechs Behandlungs-, Büro- oder Beratungsräume. Die Einheit ist barrierefrei ausgeführt und verfügt über breite Türen, die auch für Rollstuhlnutzer geeignet sind. Neben einem regulären WC steht ein separates behindertenfreundliches WC zur Verfügung. Ergänzt wird das Raumangebot durch einen Sozialraum mit integrierter Dusche und einer Gemeinschaftsküche. Ein Balkon mit Blick in den Innenhof sorgt für zusätzliche Aufenthaltsqualität. Die Raumaufteilung wurde überwiegend mittels Trockenbauwänden realisiert und erlaubt dadurch eine flexible Anpassung an individuelle Nutzungskonzepte.

Das Gebäude sowie die Einheit befinden sich in einem gepflegten und guten Gesamtzustand, ein Modernisierungsrückstau ist nicht erkennbar. Die gedämmte und verputzte Fassade sowie das mit Dachziegeln eingedeckte Dach präsentieren sich in sehr gutem Zustand. Die zweifach verglasten Fenster stammen aus dem Baujahr 1998. Beheizt wird das Objekt über eine zentrale gemeinschaftliche Gasheizung, die Warmwasserbereitung erfolgt ebenfalls zentral. Elektro- und Sanitärinstallationen sind in gutem Zustand. Als Bodenbeläge sind Linoleum und Fliesen verbaut.

Zur Einheit gehört ein eigener Außenstellplatz, der grundbuchlich zugeordnet ist. Darüber hinaus stehen ausreichende Parkmöglichkeiten direkt vor dem Gebäude zur Verfügung, was insbesondere für Kunden- oder Patientenverkehr von erheblichem Vorteil ist. Zusätzlich ist der Einheit ein Kellerraum zugeordnet. Die Außenanlagen der Liegenschaft sind gepflegt, die Erschließung ist vollständig gegeben.

Die zentrale Innenstadtlage bietet eine sehr gute infrastrukturelle Anbindung sowie kurze Wege zu Einkaufsmöglichkeiten, Dienstleistern und öffentlichen Einrichtungen.

Optional besteht die Möglichkeit, vorhandenes Inventar aus der bisherigen Nutzung vom Verkäufer zu übernehmen. Dies kann insbesondere bei einer erneuten medizinischen oder therapeutischen Nutzung einen zusätzlichen wirtschaftlichen Vorteil darstellen.

Diese Einheit eignet sich sowohl für Eigennutzer als auch für Kapitalanleger, die eine barrierefreie, flexibel nutzbare Immobilie mit Entwicklungspotenzial in attraktiver Innenstadtlage von Prenzlau suchen.
Gerne stellen wir Ihnen weitere Informationen zur Verfügung oder vereinbaren einen Besichtigungstermin.

Merkmale

  • Personenaufzug
  • Keller
- Massive Bauweise
- Baujahr 1998
- Gepflegter Gesamtzustand ohne Modernisierungsrückstau
- Fahrstuhl vorhanden
- barrierefreie Nutzungseinheit
- Zweifachverglaste Fenster (Baujahr 1998)
- Zentrale gemeinschaftliche Gasheizung
- Zentrale Warmwasserbereitung über die Heizungsanlage
- behindertenfreundliches WC
- Sozialraum mit Dusche
- Gemeinschaftsküche
- Bodenbeläge aus Linoleum sowie Fliesen
- Flexible Raumaufteilung durch überwiegend in Trockenbauweise errichtete Innenwände
- Großzügiger Empfangs- und Wartebereich
- Balkon mit Blick in den Innenhof
- großzügiger Kellerraum
- Zugeordneter Außenstellplatz (Grundbuchlich gesichert)

Grundrisse

Grundrisse
1 / 1

Realisiere Dein Projekt

Bausubstanz und Energie

Der Anbieter hat keine Informationen zum Energieverbrauch bereit gestellt.
  • Baujahr1998
  • Zustand der ImmobilieGepflegt
Immowelt logo

Preisdetails

Kaufpreis
299000 €
Provision für Käufer
7,14% inkl. MwSt
Geschätzte Gesamtkosten
320.349 €1
Kaufpreis
299.000 €
Provision für Käufer (7,14%)
21.349 €
1Der angezeigte Wert ist eine automatisch berechnete Schätzung von immowelt.
2Bei den Angaben handelt es sich um ortsübliche Werte. Individuelle Kosten können abweichen.

Lage

address-icon
Prenzlau (17291)
Der Anbieter hat die genaue Adresse nicht freigegeben
Die Immobilie befindet sich in der Steinstraße 30 in zentraler Innenstadtlage von Prenzlau, der Kreisstadt des Landkreises Uckermark. Als administratives, wirtschaftliches und infrastrukturelles Zentrum der Region übernimmt Prenzlau eine wichtige Versorgungsfunktion für das umliegende Einzugsgebiet mit zahlreichen kleineren Gemeinden und ländlich geprägten Ortschaften.

Die Innenstadt ist geprägt von einer gewachsenen Mischung aus Einzelhandel, Dienstleistungsbetrieben, Praxen, Kanzleien sowie Wohnnutzungen. Diese Struktur sorgt für eine kontinuierliche Frequenz und stabile Nachfrage nach zentral gelegenen Gewerbeflächen. Behörden, medizinische Einrichtungen, Banken und weitere Institutionen befinden sich in unmittelbarer Nähe und stärken die Standortqualität insbesondere für beratende Berufe, medizinische Nutzungen und sonstige Dienstleistungsunternehmen.

Prenzlau verfügt über eine solide Bevölkerungsstruktur mit einem breiten Altersmix und einem überdurchschnittlich hohen Bedarf an medizinischen, therapeutischen und beratenden Dienstleistungen. Als Kreisstadt bündelt der Standort Verwaltungs-, Gesundheits- und Bildungsangebote, was eine nachhaltige wirtschaftliche Basis schafft. Gerade für Kanzleien, Arztpraxen, Therapieeinrichtungen oder Bürostandorte bietet die zentrale Innenstadtlage eine sehr gute Sichtbarkeit, Erreichbarkeit und Mandanten- bzw. Patientenfrequenz.

Sämtliche Einrichtungen des täglichen Bedarfs sind fußläufig erreichbar. Der Bahnhof Prenzlau gewährleistet eine gute regionale Anbindung, zudem bestehen über die umliegenden Bundesstraßen schnelle Verbindungen in Richtung Berlin und in die benachbarten Wirtschaftsräume.

Insgesamt handelt es sich um eine gefestigte, zentrale Lage innerhalb eines regional bedeutenden Mittelzentrums mit stabilem wirtschaftlichem Umfeld und nachhaltigem Nutzungspotenzial - sowohl für klassische Gewerbenutzungen als auch perspektivisch für eine Wohnnutzung.

Weitere Informationen

Sonstiges Es werden keine Anfragen, ohne vollständigen Namen/Vornamen, der Anschrift und einer Telefonnummer beantwortet. Weitere interessante Miet- Kauf- und Neubauangebote aus unserem Portfolio finden Sie auf unserer Homepage unter www.mse-haus.de

Sehr gerne können Sie auch telefonisch mit uns Kontakt aufnehmen. Alle Angaben sind ohne Gewähr und beruhen auf Informationen des Auftraggebers. Die MSE-HAUS GmbH übernimmt keine Haftung für deren Vollständigkeit, Richtigkeit und Aktualität. Einen Zwischenverkauf behält sich der Auftraggeber ausdrücklich vor. Das Angebot ist freibleibend. Stichworte Gesamtfläche: 155,00 m²

Weitere Services

Lust auf eine Besichtigung?
Eine Frage zur Immobilie?
Nachricht hinzufügen
Mit der Nutzung der oben angegebenen Telefonnummer oder durch Klicken auf „Kontaktieren“ akzeptierst Du die Allgemeinen Nutzungsbedingungen, denen Du jederzeit widersprechen kannst. Weitere Informationen zum Datenschutz

Über den Anbieter

MSE-HAUS GmbH
MSE-HAUS GmbHMaklerbüro
Wilhelm-Stolte-Straße 84, 17235 Neustrelitz
partner badge
Partnerschaft
Herr Moritz SchulzDein Kontakt
Online-ID: 2nghj5m
Referenznummer: 569
MSE-HAUS GmbH
MSE-HAUS GmbH
Nachricht hinzufügen
Mit der Nutzung der oben angegebenen Telefonnummer oder durch Klicken auf „Kontaktieren“ akzeptierst Du die Allgemeinen Nutzungsbedingungen, denen Du jederzeit widersprechen kannst. Weitere Informationen zum Datenschutz
Wie zufrieden bist du mit dieser Seite (nicht mit der Immobilie selbst)?