Version: 8.25.1Navigation überspringen
ohne-makler.net - Immobilien selbst vermarkten
Mietkosten auf Anfrage
1.948,2 m² Lagerfläche

Lagerhalle zur Miete - Erstbezug • provisionsfrei
Mietkosten auf Anfrage
1.948,2 m² Lagerfläche

Beheizbare Logistikhalle mit Büro & Rampen in Passau-Heining zu vermieten

?? Beheizbare Logistikhalle mit Büro & Rampen - Passau-Heining zu vermieten
Adresse: Winzerleite 4, 94036 Passau
Vermarktungsart: Miete
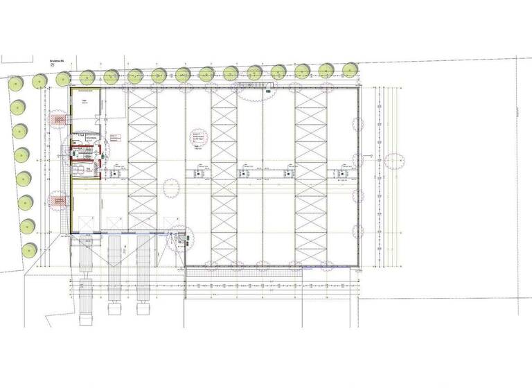
Hallenfläche: 1.948,16 m²
Bürofläche: 263,48 m²
Freiflächen: optional mietbar
Verfügbar ab: Februar 2026
Miete: nach Vereinbarung

?? Objektzustand & Eckdaten
Erstbezug
Vollerschlossen
Geschliffener Betonboden
Bodentraglast 3.000 kg pro qm
Lichtkuppeln für Tageslicht
Fenster im Hallenbereich zur natürlichen Belüftung

?? Objektbeschreibung
Diese neuwertige, beheizbare Logistikhalle bietet optimale Voraussetzungen für Lagerung, Logistik und gewerbliche Nutzung.
Mit knapp 1.950 m² Hallenfläche und rund 260 m² Bürofläche bietet das Objekt großzügige Flächen und eine moderne technische Ausstattung.
Die Halle ist ebenerdig mit Lkw anfahrbar und verfügt über ein 3 × 3 m großes Sektionaltor, 3 Logistikrampen sowie eine separate Auffahrt.
Freiflächen können flexibel dazu gemietet werden. Ebenso können im Untergeschoß 636,82qm Hallenfläche und 74,69qm Bürofläche zusätzlich angemietet werden.

Stellplätze stehen bei Anmietung von Freiflächen zur Verfügung. Toiletten sowie ein aktueller Energieausweis sind vorhanden.

?? Ausstattung
Stromanschluss
Wasseranschluss
LED-Beleuchtung
Fußbodenheizung im Bürotrakt (Wärmepumpe)
Heizlüfter im Hallenbereich (Gastherme)

?? Lage
Die Immobilie befindet sich im Gewerbegebiet Passau-Heining, einem etablierten Standort für Gewerbe und Logistik.
Nähe zum Ortsteil Passau-Heining
Gute Infrastruktur im direkten Umfeld

?? Verkehrsanbindung
Die Verkehrsanbindung ist hervorragend:
schnelle Erreichbarkeit der Autobahn A3
direkte Nähe zur Bundesstraße B8
Bushaltestelle im Umfeld
Lkw-freundliche Zufahrtswege

?? Sonstiges
Interessiert? Vereinbaren Sie gerne einen Besichtigungstermin!
Telefonisch erreichbar unter: 01515/2909768, gerne per WhatsApp.

Besuchen Sie auch unsere Website: immobilien-buchbauer.de/immobilien

Merkmale

  • Bezug: nach Absprache
Sonstiges (s. Text)

Grundrisse

Grundrisse
1 / 2

Realisiere Dein Projekt

Bausubstanz und Energie

Energieausweis

Endenergiebedarf (Wärme)

  • Baujahr2026
  • Zustand der ImmobilieErstbezug
  • EnergieträgerLuft-/Wasser-Wärmepumpe
MediumRectangleTop

Mietkosten

Miete auf Anfrage
Provision für Mieter
provisionsfrei; keine Provision, courtagefrei
Kaution
keine Angabe

Lage

address-icon
Winzerleite 4HeiningPassau (94036)

Weitere Informationen

Sonstiges Heizungsart: Sonstiges (s. Text)
Energieträger: Luft-/Wasserwärme


ohne-makler (OM) ist weder Anbieter noch Vermittler der Immobilie. OM betreibt eine Plattform für Immobilieneigentümer, die unter anderem die gleichzeitige Veröffentlichung einzelner Inserate auf mehreren Immobilienportalen ermöglicht. Die Inhalte dieser Inserate werden ausschließlich von Dritten verantwortet. Für die Richtigkeit, Vollständigkeit oder Rechtmäßigkeit der Angaben übernimmt OM keine Haftung. Hinweise auf mögliche Rechtsverstöße können jederzeit gemeldet werden und werden nach Prüfung umgehend bearbeitet. Stichworte Lagerfläche: 1.948,16 m², Gesamtfläche: 2.211,64 m², Bundesland: Bayern

Weitere Services

Lust auf eine Besichtigung?
Eine Frage zur Immobilie?
Nachricht hinzufügen
Mit der Nutzung der oben angegebenen Telefonnummer oder durch Klicken auf „Kontaktieren“ akzeptierst Du die Allgemeinen Nutzungsbedingungen, denen Du jederzeit widersprechen kannst. Weitere Informationen zum Datenschutz

Über den Anbieter

Humboldtstr. 25 A, 21509 Glinde
partner badge
Partnerschaft
Privat von Elias BuchbauerDein Kontakt
Keine Telefonnummer hinterlegt
Keine Telefonnummer hinterlegt
Online-ID: 25SJWLU9ESPR
Referenznummer: 407781
ohne-makler.net - Immobilien selbst vermarkten
ohne-makler.net - Immobilien selbst vermarkten
Nachricht hinzufügen
Mit der Nutzung der oben angegebenen Telefonnummer oder durch Klicken auf „Kontaktieren“ akzeptierst Du die Allgemeinen Nutzungsbedingungen, denen Du jederzeit widersprechen kannst. Weitere Informationen zum Datenschutz
MediumRectangleTop
MediumRectangleBottom
MediumRectangleTop
Wie zufrieden bist du mit dieser Seite (nicht mit der Immobilie selbst)?