Version: 8.22.4Navigation überspringen
8,50 €
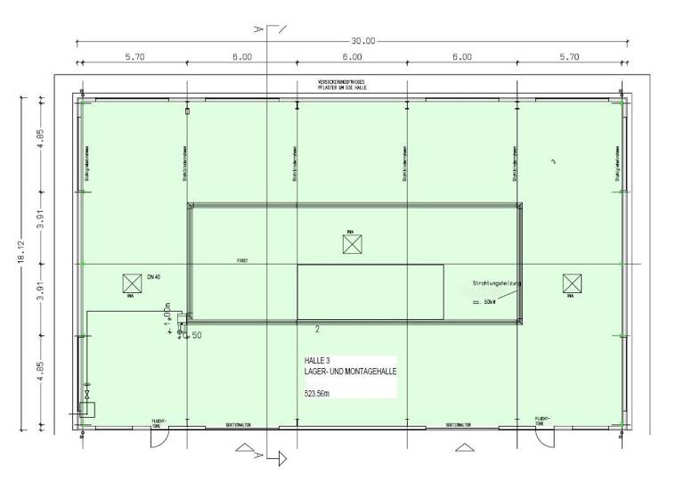
523,6 m² Lagerfläche
Immowelt logo

Lagerhalle zur Miete
8,50 Euro pro Quadratmeter
523,6 m² Lagerfläche

Lagerhalle im Gewerbegebiet Aicherpark

Diese helle, klar strukturierte Halle präsentiert sich offen und funktional in einem sehr guten Zustand. Zwei Sektionaltore, eine Krananlage, ein belastbarer Betonboden und die hervorragende Lage im Gewerbegebiet West, könnten Ihr neuer Firmensitz auf ca. 524 m² sein.

Vor und neben der Halle stehen PKW-Stellplätze zur Verfügung.

Merkmale

  • Bezug: verfügbar nach Vereinbarung

Grundrisse

Grundrisse
1 / 1

Realisiere Dein Projekt

Bausubstanz und Energie

Der Anbieter hat keine Informationen zu Energieverbrauch oder Zustand der Immobilie bereit gestellt.
Immowelt logo

Mietkosten

Monatliche Miete
8,50 €/m²
Provision für Mieter
1,78 Netto-Monatsmieten inkl. MwSt.
Kaution
keine Angabe

Lage

address-icon
SüdRosenheim (83026)
Der Anbieter hat die genaue Adresse nicht freigegeben
Unser Objekt befindet sich im Gewerbegebiet West von Rosenheim. Das Gewerbegebiet ist als Aicherpark weit über die Grenzen der Stadt bekannt. Die Gewerbefläche beträgt ca. 300.000 m². 110 Geschäfte mit ca. 3.000 Mitarbeiten sind dort angesiedelt. Ca. 15.000 Besucher kommen täglich in den Aicherpark.

Verkehrstechnisch ist das Gebiet über die Äußere Münchner Straße an die Stadt angeschlossen. Über die neue Südspange können die Autobahn und auch die östlichen Teile der Stadt in wenigen Minuten erreicht werden. Das Gebiet ist an den öffentlichen Personennahverkehr angeschlossen. Der Bahnhof mit der Haltestation Aicherpark ist in 10 Minuten Fußweg zu erreichen.

Weitere Informationen

Nutzung Produktion, Montage, Lager- und Logistikfläche

--- keine Kfz-Nutzung --- Zusatz/Über Uns Herzlich Willkommen bei Felder, Ihrem Spezialisten für Gewerbeimmobilien in Rosenheim, Traunstein, dem Chiemgau und Oberbayern.

Sie möchten mehr Informationen zu diesem Objekt? Gern übersenden wir Ihnen unverbindlich unser aussagekräftiges Exposee. Ein E-Mail oder Anruf genügt.

Die im Exposee angegebenen Daten beruhen auf Angaben des Eigentümers. Für diese Angaben übernehmen wir keine Gewähr. Der Maklervertrag mit uns kommt entweder durch schriftliche Vereinbarung oder auch durch die Inanspruchnahme unserer Maklertätigkeit auf der Basis des Objekt Exposees und seiner Bedingungen zustande.

Unsere Beratungsleistung ist erfolgsorientiert und für Sie bis zum Abschluss eines Vertrages freibleibend. Gern stehen wir Ihnen beratend zur Seite. Wir freuen uns auf Ihren Anruf.


Sie suchen eine Gewerbeimmobilie im Rosenheimer Land, Traunstein, Oberbayern oder dem Chiemgau und möchten sich bei Ihrer Suche auf das Fachwissen und Netzwerk eines starken Partners verlassen können? Sie möchten Ihre Gewerbeimmobilie vermieten oder verkaufen? Sie suchen die passenden Mieter oder Investoren? Dann sollten Sie uns ansprechen und von unserem Bekanntheitsgrad und großem Netzwerk in der Region profitieren.

Wir begleiten Sie vom ersten Kontakt bis zur Unterschrift unter dem Miet- oder Kaufvertrag. Seit über 25 Jahren ist die Firma Felder als der Spezialist für Gewerbeimmobilien im Rosenheimer Immobilienmarkt bekannt. Mehr Immobilien finden Sie auf www.felder-gewerbe.de

Weitere Services

Lust auf eine Besichtigung?
Eine Frage zur Immobilie?
Nachricht hinzufügen
Mit der Nutzung der oben angegebenen Telefonnummer oder durch Klicken auf „Kontaktieren“ akzeptierst Du die Allgemeinen Nutzungsbedingungen, denen Du jederzeit widersprechen kannst. Weitere Informationen zum Datenschutz

Über den Anbieter

Ludwigsplatz 15, 83031 Rosenheim
partner badge
10 Jahre Partnerschaft
Frau Tanja HeiseDein Kontakt
Online-ID: 2mrqc56
Referenznummer: A1503
Felder. Der Gewerbespezialist GmbH
Felder. Der Gewerbespezialist GmbH
Bewertung: 5 von 5 Sternen
Nachricht hinzufügen
Mit der Nutzung der oben angegebenen Telefonnummer oder durch Klicken auf „Kontaktieren“ akzeptierst Du die Allgemeinen Nutzungsbedingungen, denen Du jederzeit widersprechen kannst. Weitere Informationen zum Datenschutz
Wie zufrieden bist du mit dieser Seite (nicht mit der Immobilie selbst)?