Version: 8.25.1Navigation überspringen
1.015 €
2 Zimmer  •  67,2 m² Bürofläche
Immowelt logo

Bürofläche zur Miete • provisionsfrei
1.015 €
2 Zimmer  •  67,2 m² Bürofläche

Schöne Räume im Souterrain eines ruhigen Hofgebäudes! Kein gewerbliches Wohnen!

Die Gewerbefläche liegt im ruhigen, schönen Hinterhaus.
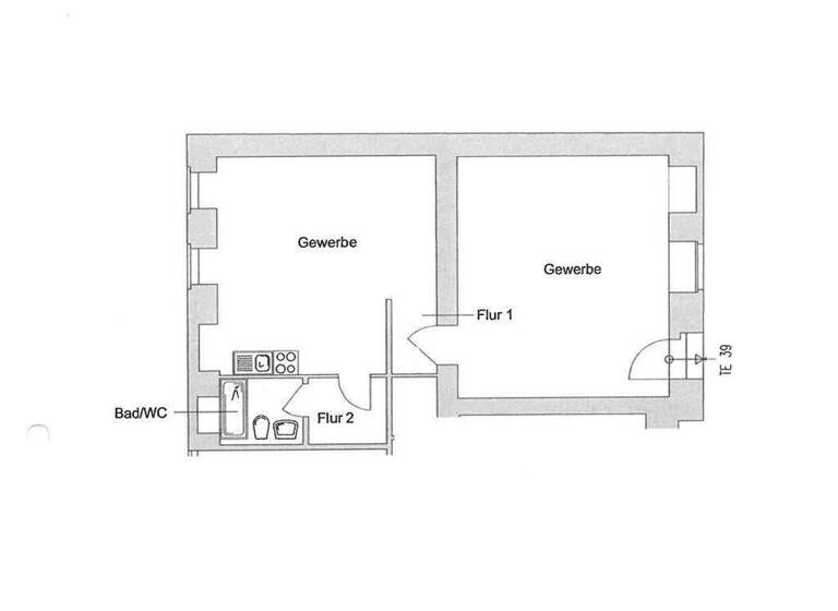
Über ein paar Treppenstufen gelangt man vom Hof in den vorderen, großzügigen Raum. Der zweite große Raum liegt direkt dahinter und verfügt ebenfalls über Tageslicht...es gibt sogar eine kleine Terrasse für die kleine Pause zwischendurch. In dem hinteren Raum kann auch eine kleine Küchenzeile angeschlossen werden.

Merkmale

  • frei ab sofort
  • Bad mit Dusche
  • Kein Keller
-Duschbad
-Mini-Terrasse nach hinten
-Anschlußmöglichkeit einer Pantryküche im hinteren Bereich
-Zentralheizung

Grundrisse

Grundrisse
1 / 1

Realisiere Dein Projekt

Bausubstanz und Energie

Energieausweis

Endenergieverbrauch (Wärme)

  • Baujahr1918
  • Zustand der ImmobilieAltbau (bis 1945), renoviert / saniert
  • HeizungsartZentralheizung
  • EnergieträgerFernwärme
Immowelt logo

Mietkosten

Warmmiete
1.250 €
Nettomiete
1.015 €
Nebenkosten
235 €
Heizkosten
in Warmmiete enthalten
Provision für Mieter
provisionsfrei
Kaution
3750 €

Lage

address-icon
Richard-Sorge-Str. 25aFriedrichshainBerlin (10249)
Die Gewerbe liegt zentral zwischen der Landsberger Allee und dem Petersburger Platz in der Richard-Sorge-Strasse und ist doch sehr ruhig in einer schönen Wohnlage mit guten Einkaufsmöglichkeiten und kleinen Läden und Cafés in direkter Nachbarschaft.
Gut angeschlossen ist die Lage über den S-Bhf. Landsberger Allee und die Straßenbahnen entlang der benachbarten Petersburger Allee und Landsberger Allee.

Weitere Informationen

Sonstiges Überzeugen Sie sich von der Attraktivität der Fläche vor Ort.

Die Berliner Raumpiloten freuen sich über einen Anruf oder eine E-Mail zur Vereinbarung eines Besichtigungstermins und Beantwortung von weiteren Fragen.

Weitere Services

Lust auf eine Besichtigung?
Eine Frage zur Immobilie?
Mit einer persönlichen Nachricht hast du bessere Chancen auf eine Antwort.
Mit der Nutzung der oben angegebenen Telefonnummer oder durch Klicken auf „Kontaktieren“ akzeptierst Du die Allgemeinen Nutzungsbedingungen, denen Du jederzeit widersprechen kannst. Weitere Informationen zum Datenschutz

Über den Anbieter

Kopenhagener Str. 75, 10437 Berlin
Frau Ute Costaz
Frau Ute CostazDein Kontakt
Online-ID: 26V7GNZPMWLS
Referenznummer: 2260 (1/2260)
Ute Costaz
title
Ute Costaz
Mit einer persönlichen Nachricht hast du bessere Chancen auf eine Antwort.
Mit der Nutzung der oben angegebenen Telefonnummer oder durch Klicken auf „Kontaktieren“ akzeptierst Du die Allgemeinen Nutzungsbedingungen, denen Du jederzeit widersprechen kannst. Weitere Informationen zum Datenschutz
Wie zufrieden bist du mit dieser Seite (nicht mit der Immobilie selbst)?