Lagerhalle 854m² mit Außenflächen im Gewerbegebiet in Anklam
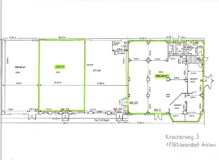
Hallenfläche ca. 854m²
Grundstücksfläche 4603 m² Befestigte Außenfläche ca. 2800 m²
Mietpreise:
Hallenfläche: 2,00,- €/m²
Außenfläche: ab 1,00 €/m² Flächen ab 13m² (PKW-Stellplatz) anmietbar ! 25 € pro Stellplatz !
Merkmale
4.603 m² Grundstück
-Variable Nutzungsmöglichkeiten (als Lager-,Produktions- oder Industriehalle nutzbar) -Befesigte Freifläche -Außenstellplätze -Heizung/Kohle im Verkaufsbereich -Internet verfügbar
Grundrisse
Grundrisse
1 / 1
Realisiere Dein Projekt
Bausubstanz und Energie
Möchtest du Details zum Energieverbrauch?
Baujahr1992
Zustand der ImmobilieGepflegt
Mietkosten
Nettomiete zzgl. Nebenkosten
2 €/m²
1.708 €
Provision für Mieter
2,38 MM
Kaution
keine Angabe
Lage
Anklam (17389)
Der Anbieter hat die genaue Adresse nicht freigegeben
Das Objekt befindet sich in einem Gewerbegebiet von Anklam und zeichnet sich durch eine gute Verkehrsanbindung nach Greifswald und der Insel Usedom aus. Die Autobahn A20 erreichen Sie über die Bundesstraße 199 in ca. 26 km.
Weitere Informationen
Sonstiges
Alle Angaben sind ohne Gewähr und basieren ausschließlich auf Informationen, die uns von unserem Auftraggeber zur Verfügung gestellt wurden. Wir übernehmen keine Gewähr für die Vollständigkeit, Richtigkeit und Aktualität dieser Angaben. Im Übrigen gelten unsere Allgemeinen Geschäftsbedingungen. Irrtum und Zwischenvermietung vorbehalten.
Provisionsregelung zahlbar vom Mieter bei Abschluss eines Mietvertrages:
- bei Mietverträgen mit einer Laufzeit bis zu 5 Jahren: 2 Nettomonatsmieten* - bei Mietverträgen mit einer Laufzeit von 5 Jahren bis zu 10 Jahren: 3 Nettomonatsmieten* - bei Mietverträgen mit einer Laufzeit von 10 Jahren und mehr: 4 Nettomonatsmieten* - bei Vereinbarung von Optionen hinsichtlich Fläche oder Laufzeit bzw. bei Vormietvereinbarungen, auch wenn deren Ausübung noch ungewiss ist, unabhängig, ob diese Vereinbarung selbstständig oder in einem Mietvertrag mit fester Grundlaufzeit getroffen wird: 1 Nettomonatsmiete* * die Nettomonatsmiete ergibt sich aus der Nominalmiete inkl. Parkplätzen und Archivflächen.
Alle Preise verstehen sich zzgl. 19% MwSt.
GELDWÄSCHE: Wir weisen darauf hin, dass Immobilienmaklerunternehmen nach § § 1, 2 Abs. 1 Nr. 10, 4 Abs. 3 Geldwäschegesetz (GwG) vor dem Entstehen einer Geschäftsbeziehung zur Feststellung und Überprüfung des Vertragspartners verpflichtet sind. Dies erfolgt z.B. durch eine Kopie Ihres Personalausweises. Die Angaben hieraus müssen gemäß Geldwäschegesetz fünf Jahre aufbewahrt werden.
DATENSCHUTZ: Im Zuge Ihrer Anfrage werden von uns Ihre personenbezogenen Daten für den Zwecke der Vertragsanbahnung gespeichert. Wir verweisen in diesem Zusammenhang auf unsere Datenschutzerklärung.
Stichworte
Nutzfläche: 854,00 m², Gesamtfläche: 854,00 m², Hallenhöhe: 6,00 m, Lage im Gewerbegebiet