Hochwertige Wohnästhetik: Ihre Wünsche mit Stil und Raffinesse
Werden Sie Schwabenhaus-Bauherr und bauen Sie Ihr maßgeschneidertes Traumhaus! Angeboten wird ein Baugrundstück, das zunächst direkt von privat erworben und anschließend mit Ihrem individuellen Traumhaus bebaut werden wird. Seit 1966 hat Schwabenhaus über 25.000 Hausträume realisiert und liefert seinen Bauherr schlüsselfertige, also zu 100% bezugsfertige Häuser sowie Häuser für den Selbstausbau - entsprechend Ihrer Wünsche, Bedürfnisse und Fähigkeiten. Alle Schwabenhäuser werden am Unternehmenssitz in Heringen in der bekannten Manufaktur-Qualität produziert und erhalten die einmalige 10/30 Jahre Gewährleistung.
Merkmale
605 m² Grundstück
Gäste-WC
Kurze Bauzeiten, innovative Haustechnik, attraktive Architektur und hochwertige Manufaktur-Qualität bietet Ihnen das angebotene Schwabenhaus im "Blue-Edition" All-Inclusive-Paket:
- Bodenplatte inklusive Effizienzhaus 55 Perimeter-Dämmung unterhalb der Bodenplatte sowie stirnseitig - Effizienzhaus 55 mit der Option zur Erweiterung auf Effizienzhaus 40 oder 40 Plus - Klima-Komfort-Bauweise - Zimmermannmäßiges Pfettendach - Photovoltaik-Vorbereitung für die Ausführung einer Photovoltaik-Anlage - Komplette Elektro-, Sanitär- und Heizungs-Installation inkl. Grundinstallation für das Schwabenhaus auf Schwabenhaus-Bodenplatte bzw. -Keller* - Zukunftsweisende Elektro-Installation* - Smart-Home-Technologie - Intelligentes Gebäude-Management für die Licht- und Rollladen-Steuerung*¹ - Elektrische Rollläden*¹ - Doppel-Wärmepumpe Eco+* für Heizen, Lüften, Kühlen, Luftreinigung und Warmwasser - Hochwertige, mehrschichtige Holz-Haustür in vielfältigen Design-Lösungen, mit Sicherheitsschließzylinder, 5-fach- Sicherheits-Verriegelung und 3-Scheiben-Wärmeschutzverglasung - Kunststoff-Fenster mit 3-Scheiben-Wärmeschutzverglasung - Dachflächenfenster mit Kipp- und Schwingfunktion sowie elektrischen Rollläden* - Massiv-Vollholz-Treppe - Protect Versicherungs-Paket mit Wohngebäudeversicherung inkl. Elementarschutz, Haus- und Wohnungs-Schutzbrief, Bauleistungsversicherung und Bauherren-Haftpflichtversicherung sowie Job-Protect Versicherungs-Paket - 10 sowie 30 Jahre Gewährleistung
*Ab Ausbaustufe "Fast-Vollendet"
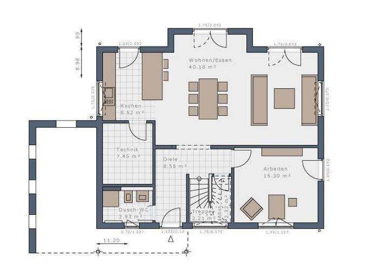
Grundrisse
Grundrisse
1 / 2
Realisiere Dein Projekt
Bausubstanz und Energie
Möchtest du Details zum Energieverbrauch?
Zustand der ImmobilieNeubau, Projektiert
HeizungsartFußbodenheizung
Preisdetails
Kaufpreis
915000 €915.000 €
5.382,35 €/m²
Provision für Käufer
3,57 % inkl. MwSt auf den Grundstücksanteil inkl. MwSt. Gilt nur für den Grundstücksanteil; Haus provisionsfrei. Grundstückspreis variabel, genaue Berechnung vor Maklervertragsabschluss.
Geschätzte Gesamtkosten
965.325 €1
Kaufpreis
915.000 €
Kaufnebenkosten
50.325 €
2
Notarkosten (1,5%)
13.725 €
Grunderwerbsteuer (3,5%)
32.025 €
Grundbucheintrag (0,5%)
4.575 €
1Der angezeigte Wert ist eine automatisch berechnete Schätzung von immowelt.
2Bei den Angaben handelt es sich um ortsübliche Werte. Individuelle Kosten können abweichen.
Lage
Pürgen (86932)
Der Anbieter hat die genaue Adresse nicht freigegeben
Das Neubauprojekt befindet sich in der Gemeinde Pürgen im Landkreis Landsberg am Lech. Die ruhige, ländlich geprägte Umgebung bietet eine hohe Wohnqualität und naturnahes Wohnen.
Die Stadt Landsberg am Lech mit zahlreichen Einkaufsmöglichkeiten, Schulen, Gastronomie und medizinischer Versorgung ist in wenigen Minuten erreichbar. Über die gute Verkehrsanbindung sind auch Augsburg und München bequem erreichbar.
Die Kombination aus naturnahem Wohnen und guter Anbindung macht den Standort besonders attraktiv für Familien und Pendler.
Weitere Informationen
Sonstiges
Das Haus ist projektiert inkl. Grundstück + sämtliche Kauf- und Baunebenkosten. Ein Keller kann gegen Mehrpreis ergänzt werden. Das Grundstück wird in Kommission angeboten bzw. direkt von Dritten verkauft. Daher kann der genannte Preis aufgrund aktueller Marktsituationen schwanken. Die Bauabwicklung kann kurzfristig nach Grundstückserwerb begonnen werden. Bilder zeigen möglicherweise Sonderausstattungen, die auf Wunsch gegen Aufpreis zusätzlich angeboten werden können.
Erhalte in deinem persönlichen Beratungsgespräch kostenlos alle wichtigen Informationen zu diesem Projekt, insbesondere: Lage und Bebauungsmöglichkeiten des Baugrundstücks, Baukosten-Kalkulation, Finanzierungs- u. Förderungsmöglichkeiten sowie detaillierte Architektur- uund Grundrissplanung.
Wir freuen uns darauf, dich beraten zu dürfen!
Anbauteile, Carport, Garage und Keller können Extras sein, die als Sonderausstattung angeboten werden. Abbildungen, Grundrisse und Flächenangaben sind beispielhaft und können Extras zeigen. Flächenangaben nach DIN 277.
Profitieren Sie jetzt von der Schwabenhaus Online Beratung und verwirklichen Sie Ihr Traumhaus https://www.schwabenhaus.de/anmeldung-hausbau-beratung-online/
Stichworte
Anzahl der Schlafzimmer: 3, Anzahl der Badezimmer: 1, Anzahl der separaten WCs: 1