Version: 8.24.0Navigation überspringen
1.450 €
4 Zimmer  •  102 m² Bürofläche
Immowelt logo

Bürofläche zur Miete
1.450 €
4 Zimmer  •  102 m² Bürofläche

Moderne Bürofläche am Ilmenaugarten- 102 m² mit 4 Büroräumen

In bester Lage am Ilmenaugarten in Lüneburg erwartet Sie eine repräsentative Bürofläche mit ca. 102 m², die durch Helligkeit, Funktionalität und eine inspirierende Atmosphäre überzeugt. Die Räumlichkeiten liegen in einem gepflegten Gebäude in ruhiger, grüner Umgebung und bieten ideale Bedingungen für konzentriertes Arbeiten und repräsentatives Auftreten.

Die Fläche ist in vier separate Büroräume aufgeteilt, die flexibel als Einzel- oder Teambüros genutzt werden können. Eine praktische Teeküche sorgt für Komfort im Arbeitsalltag. Ein modern ausgestattetes WC ist ebenfalls vorhanden.

Ein besonderes Highlight ist der sonnige Balkon mit herrlichem Blick auf die Ilmenau - perfekt für Pausen oder kurze Besprechungen im Freien.
Dank des vorhandenen Fahrstuhls ist die Büroetage bequem erreichbar.
Zwei Tiefgaragenstellplätze bieten zusätzlichen Komfort und erleichtern den täglichen Arbeitsweg.

Merkmale

  • frei ab 01.03.2026
  • 1. Geschoss
  • Einbauküche
  • Personenaufzug
  • 2 Stellplätze: 2 Außen-Stellplätze
  • Bodenbelag: Teppich
. Ca. 102 m² Bürofläche
. Vier Büroräume mit flexibler Nutzungsmöglichkeit
. Teeküche und modernes WC
. Sonniger Balkon mit Blick auf die Ilmenau
. Fahrstuhl
. Zwei Stellplätze in der Tiefgarage (150 €)
. Zentrale und ruhige Lage am Ilmenaugarten in Lüneburg

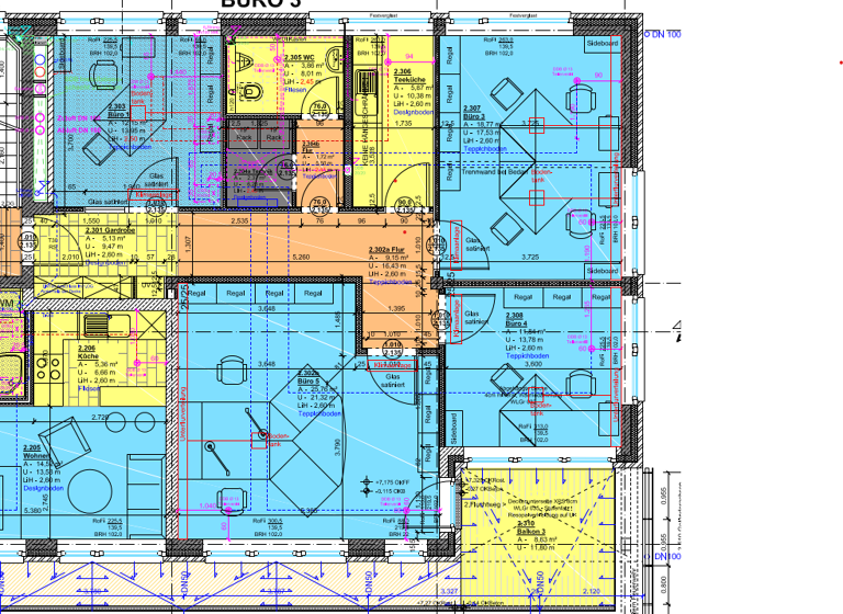
Grundrisse

Grundrisse
1 / 1

Realisiere Dein Projekt

Bausubstanz und Energie

Der Anbieter hat keine Informationen zum Energieverbrauch bereit gestellt.
  • Baujahr2018
  • Zustand der ImmobilieGepflegt
  • EnergieträgerFernwärme
Immowelt logo

Mietkosten

Nettomiete zzgl. Nebenkosten
1.450 €
Heizkosten
400 €
Provision für Mieter
3 Kaltmieten zzgl. MwSt.
Kaution
3 Kaltmieten
Weitere Preisinformationen
2 Stellplätze

Lage

address-icon
SchützenplatzLüneburg (21337)
Der Anbieter hat die genaue Adresse nicht freigegeben
Die Gewerbefläche befindet sich in attraktiver Lage am Ilmenaugarten in Lüneburg, einem etablierten Standort für Dienstleister, Kanzleien und Unternehmen verschiedenster Branchen. Die Umgebung ist geprägt von einer ruhigen, gepflegten Nachbarschaft und bietet zugleich eine hervorragende Anbindung an das Lüneburger Stadtzentrum.

Öffentliche Verkehrsmittel sind in wenigen Gehminuten erreichbar, ebenso wie Einkaufsmöglichkeiten, gastronomische Angebote und der idyllische Ilmenau-Uferbereich. Die Lage vereint Ruhe, Erreichbarkeit und ein repräsentatives Umfeld - ideale Voraussetzungen für erfolgreiches Arbeiten und einen positiven Eindruck bei Kunden und Geschäftspartnern.

Weitere Informationen

Sonstiges Haben Sie Interesse an dieser Bürofläche am Ilmenaugarten in Lüneburg? Dann kontaktieren Sie uns gern unter 04131/ 789950 oder senden uns eine Mail an info@maszutt-bauer.de Wir freuen uns auf Sie!

Wir weisen darauf hin, dass sämtliche Daten in diesem Angebot auf Angaben des Eigentümers basieren. Die in den Bildern gezeigten Einrichtungsgegenstände werden nicht mitvermietet. Die Fläche wird bis zur Übergabe an den neuen Mieter geräumt und frei übergeben.Trotz sorgfältiger Prüfung können wir keine Gewähr für die Richtigkeit der Daten übernehmen. Ebenso wird keine Haftung für bestimmte Größe, Güte und Beschaffenheit des Vermietungssobjektes übernommen. Stichworte Tiefgarage vorhanden, Gesamtfläche: 102,00 m², Anzahl der separaten WCs: 1

Weitere Services

Lust auf eine Besichtigung?
Eine Frage zur Immobilie?
Nachricht hinzufügen
Mit der Nutzung der oben angegebenen Telefonnummer oder durch Klicken auf „Kontaktieren“ akzeptierst Du die Allgemeinen Nutzungsbedingungen, denen Du jederzeit widersprechen kannst. Weitere Informationen zum Datenschutz

Über den Anbieter

Sandweg 4, 21365 Adendorf
partner badge
Partnerschaft
Herr Uwe BurgschatDein Kontakt
Online-ID: 2lhzd5w
Referenznummer: 1002022081#Gw3xb
Maszutt & Bauer Immobilien GbR
Maszutt & Bauer Immobilien GbR
Bewertung: 5 von 5 Sternen
Nachricht hinzufügen
Mit der Nutzung der oben angegebenen Telefonnummer oder durch Klicken auf „Kontaktieren“ akzeptierst Du die Allgemeinen Nutzungsbedingungen, denen Du jederzeit widersprechen kannst. Weitere Informationen zum Datenschutz
Wie zufrieden bist du mit dieser Seite (nicht mit der Immobilie selbst)?