Version: 8.22.6Navigation überspringen
1.990.000 €
4 Zimmer  •  137,8 m²  •  6. Geschoss
Immowelt logo

Wohnung zum Kauf - Erstbezug
1990000 €
12.476 €/m²
4 Zimmer  •  137,8 m²  •  6. Geschoss

Neuer Preis! Einzigartige Eckwohnung im Dachgeschoss! Rarität in 1070 Wien! Viel Glas + 4 Zimmer + Atemberaubender Wienblick + Hochwertige Ausstattung

Geht nicht, gibt´s nicht!

Hier haben wir ein TOP-Projekt für Sie! Verwirklichen Sie Ihren Traum nach der eigenen Wohnung in Wiener Bestlage bzw. investieren Sie werthaltig und mit ausgezeichneter Zukunftsperspektive!

Ganz in der Nähe vom Spittelberg im Herzen Wiens, entstehen 4 atemberaubende Wohnungen im neu ausgebauten Dachgeschoss mit Terrassen/Balkonen, hochwertiger Ausstattung und allem was das Herz begehrt! 3 hausinterne Garagenplätze stehen zusätzlich zum Verkauf und versüßen dieses attraktive Angebot!

 

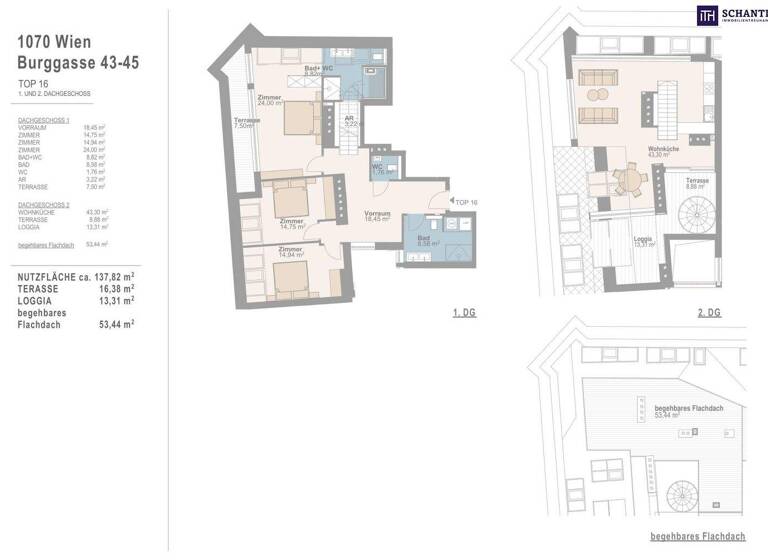
TOP 16:

Ihre neue Wohnung wird Sie restlos begeistern und teilt sich auf der 1.Ebene in einen geräumigen Vorraum mit viel Platz für eine Garderobe und ein gemütliches Heimkommen, ein separates WC mit Handwaschbecken, ein großes Badezimmer mit Walk-In Dusche, WC und Waschmaschinenanschluss, 2 getrennte begehbare Schlafzimmer, einen praktischen Abstellraum sowie ein supergroßes Master Bedroom mit Zugang zu einer Terrasse und dem stylischen, großen Badezimmer mit Walk-In Dusche, WC und einer Sauna als Highlight.

Der Sonne entgegen erreichen Sie dann über eine stylische Holztreppe die 2.Ebene auf welcher sich ein atemberaubender Wohn-Essbereich mit Zugang zur hofseitigen Terrasse und Loggia befindet. 

Kein Fernseher mehr! Von Ihrem neuen Wohnzimmer Ihrer Eckwohnung erwartet Sie ein traumhafter Blick über die Dächer und Wien... Ihre Besucher werden staunen!

Ihre knapp 23m² große Terrasse ist in den Sonnenmonaten sicherlich eine gelungene Vergrößerung des Wohnbereichs. Ein weiteres Highlight ist das atemberaubende, begehbare Flachdach mit Blick über Wien! Genießen Sie die Sonnenaufgänge und Sonnenuntergänge, die grandiosen Silvester-Feuerwerke oder einfach nur das neue Lebensgefühl!

 

Highlights: Klimageräte, Sicherheitstüren WK3, Hochwertiger Parkettboden, Fußbodenheizung mit Einzelraumregelung, Luftwärmepumpen uvm.

Wohnfläche: ca. 137,82m² + Terrasse (1.Ebene): ca. 7,5m² + Terrasse (2.Ebene): 8,88m² + Loggia (2.Ebene): ca. 13,31m² + Begehbares Flachdach: ca. 53,44m²

Kaufpreis: € 1.990.000.-

Garagenplatz (groß genug auch für einen SUV): € 100.000.- (optional)

Geplante Fertigstellung: Sommer 2026 laut Auskunft des Bauträgers

Betriebskosten: Diese werden erst von der Hausverwaltung festgesetzt und nachgereicht. Die Schätzung liegt bei ca. 2.-/m².

Der Verkauf der Wohnungen erfolgt nach dem Bauträgervertragsgesetz (BTVG).

 

www.schantl-ith.at

Bei konkretem Interesse senden wir Ihnen sehr gerne weiterführende Dokumente zu, wie:

o Grundbuchauszug

o Wohnungseigentumsvertrag

o Nutzwertgutachten

o Eigentümerversammlungsprotokoll (Falls vorhanden) etc...

 

Unser Service für Sie: Wenn Sie sich für diese Immobilie entschieden haben, begleiten wir Sie gerne vom Kaufanbot weg inkl. Klärung von Sonderwünschen und der Vertragsunterzeichnung über die Wohnungsübergabe bis hin zu diversen Ummeldungen wie Strom und Gas. Entsprechende Formulare oder auch Meldezettel stellen wir Ihnen sehr gerne zur Verfügung.

Gerne unterstützen wir Sie auch bei der Finanzierung Ihres Traumobjekts und finden mit unseren langjährigen Partnern die besten Konditionen für Sie.

Wir weisen darauf hin, dass zwischen dem Vermittler und dem zu vermittelnden Dritten ein familiäres oder wirtschaftliches Naheverhältnis besteht.

Der Vermittler ist als Doppelmakler tätig.

Infrastruktur / Entfernungen

Gesundheit
Arzt <250m
Apotheke <250m
Klinik <500m
Krankenhaus <1.500m

Kinder & Schulen
Schule <250m
Kindergarten <750m
Universität <500m
Höhere Schule <750m

Nahversorgung
Supermarkt <250m
Bäckerei <250m
Einkaufszentrum <500m

Sonstige
Geldautomat <250m
Bank <500m
Post <500m
Polizei <500m

Verkehr
Bus <250m
U-Bahn <500m
Straßenbahn <250m
Bahnhof <500m
Autobahnanschluss <4.250m

Angaben Entfernung Luftlinie / Quelle: OpenStreetMap

Merkmale

  • Bezug: Sommer 2026
  • 6. Geschoss
  • Personenaufzug
  • Garage
  • Gäste-WC
  • Terrasse
  • Badezimmer: Bad mit Dusche, Bad mit Fenster
  • WG-geeignet

Grundrisse

Grundrisse
1 / 1

Realisiere Dein Projekt

Bausubstanz und Energie

Heizwärmebedarf (HWB)

B

Gesamtenergieeffizienz (fGEE)

A+
  • Baujahr2024
  • Zustand der ImmobilieNeubau, Erstbezug
  • HeizungsartEtagenheizung
  • EnergieträgerLuft-/Wasser-Wärmepumpe
Immowelt logo

Preisdetails

Kaufpreis
1990000 €
12.476,49 €/m²
Provision für Käufer
3% des Kaufpreises zzgl. 20% USt.
Weitere Preisinformationen
1 Garagenstellplatz

Lage

address-icon
BurggasseWien,Neubau (1070)
"Wohnen in Bestlage am Spittelberg in 1070 Wien"

Eine inspirierende und trendige Adresse mit Tradition am Puls der Stadt!
Ein Grätzel zum Verlieben! Erleben Sie kulinarische und kulturelle Highlights und genießen Sie lange Abende in einem der unzähligen Restaurants, Bars und Cafés.
Zu Fuß erreichen Sie einige der schönsten Plätze die Wien zu bieten hat - der wohl beliebtesten Kunst- und Weihnachtsmarkt am Spittelberg liegt Ihnen zu Füßen, ebenso die bekannte Neubaugasse mit ihren unzähligen Pop-Up Stores, Boutiquen, kleinen Läden, Restaurants und Bars, das Museumsquartier als Freizeit-Hotspot für Kunst und Kulinarik oder das Volkstheater.
Supermärkte befinden sich gleich ums Eck und sämtliche Geschäfte des täglichen Bedarfs in kurzer Gehdistanz. Die nur wenige Meter entfernte Mariahilfer Straße ist wohl das Paradies für Shopping-Liebhaber.
Die Lage ist außerdem ein idealer Ausgangspunkt um in Kürze in die Innenstadt sowie zum Volks- und Burggarten zu gelangen oder auch ins Grüne wie den Wilhelminenberg.

Perfekte öffentliche Anbindung: 3-5 Gehminuten zur U-Bahn U2 und U3 / 1-2 Gehminute zum Bus 13A + 48A / vor der Haustüre haltet die Straßenbahn 49

Hier wird Ihnen wohl jeder Wunsch erfüllt!

Weitere Informationen

Stichworte Garage vorhanden, Süd-Ost-Süd-West-Balkon/Terrasse, Fahrradraum, Nutzfläche: 159,50 m², Anzahl der Badezimmer: 2, Anzahl der separaten WCs: 3, Anzahl Terrassen: 2, Anzahl Loggias: 1, Balkon-Terrassen-Fläche: 29,69 m², Bundesland: Wien, 7 Etagen

Weitere Services

Lust auf eine Besichtigung?
Eine Frage zur Immobilie?
Nachricht hinzufügen
Mit der Nutzung der oben angegebenen Telefonnummer oder durch Klicken auf „Kontaktieren“ akzeptierst Du die Allgemeinen Nutzungsbedingungen, denen Du jederzeit widersprechen kannst. Weitere Informationen zum Datenschutz

Über den Anbieter

Messendorferstraße 71a, 8041 Graz
Herr Samir Agha-SchantlDein Kontakt
Online-ID: 2mrs455
Referenznummer: OBGC2025110110212335164ef41c6be
Schantl ITH Immobilientreuhand GmbH
Schantl ITH Immobilientreuhand GmbH
Bewertung: 5 von 5 Sternen
Nachricht hinzufügen
Mit der Nutzung der oben angegebenen Telefonnummer oder durch Klicken auf „Kontaktieren“ akzeptierst Du die Allgemeinen Nutzungsbedingungen, denen Du jederzeit widersprechen kannst. Weitere Informationen zum Datenschutz
Wie zufrieden bist du mit dieser Seite (nicht mit der Immobilie selbst)?