Version: 8.24.0Navigation überspringen
1.249 €
3 Zimmer  •  95,5 m²  •  EG  •  frei ab sofort
Immowelt logo

Terrassenwohnung zur Miete - Erstbezug
1.249 €
3 Zimmer  •  95,5 m²  •  EG  •  frei ab sofort

Elegante Komfortwohnung im Erstbezug - mit Tiefgarage/Wallbox, geräumigem Balkon und toller Ausstattung!

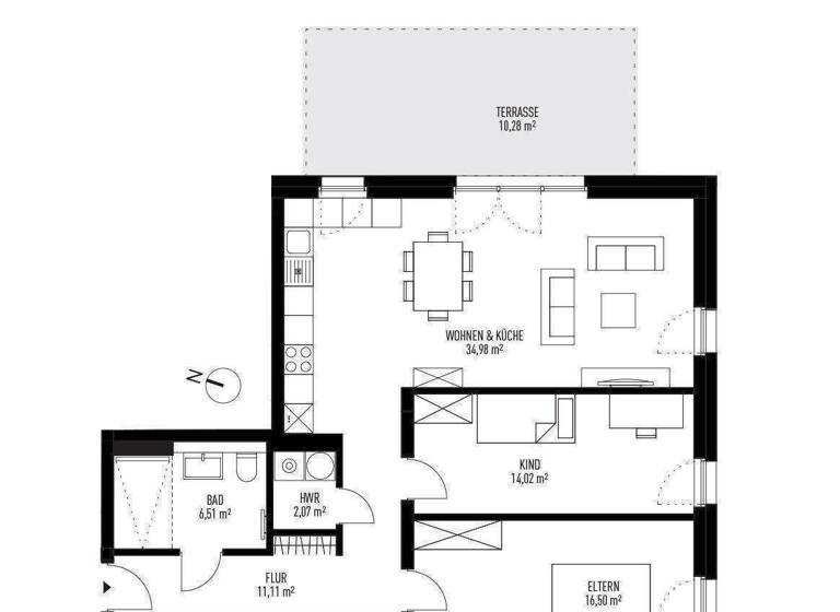
Einziehen und sofort Wohlfühlen: diese schöne Wohnung liegt im hellen und auch sonnigen Erdgeschoss des Hauses, sie zeigt einen gelungenen, sehr durchdachten Grundriss. Eine Grundrissskizze (ohne Gewähr für Richtigkeit) haben wir diesem Exposé bereits beigefügt, damit Sie eine erste Orientierung haben. Die hochwertigen Ausstattungen überzeugen: das Echtholzparkett Eiche hell/Landhausdiele schafft ein wohnliches Ambiente, die gespachtelten Wände bringen Eleganz in die Wohnung. Die Küche ist derzeit leer, so dass Sie Ihre eigene Einbauküche mitbringen oder sich eine Küche nach Ihren Wünschen bauen können. Das elegante Badezimmer verfügt über hübsche Badaccessoires und eine große Dusche. Die Wohnung ist sehr hell und auch sonnig. Von der geräumigen Terrasse haben Sie einen schönen Blick ins Grüne.

Die Ausstattungen sind hochwertig und zukunftssicher, und auch um Ihren Wagen müssen Sie sich nicht sorgen: zu dieser Wohnung gehört ein Tiefgaragenstellplatz in der großen Tiefgarage des Hauses - er ist auch bereits mit einer Wallbox ausgestattet ist. So können Sie Ihr Elektroauto bei Bedarf bequem zuhause aufladen. Die Beheizung der Wohnung erfolgt über zeitgerechte Fernwärme, die Energiewerte des Hauses sind hervorragend. Sehr gern vereinbaren wir einen Besichtigungstermin für Ihre neue Mietwohnung. Kommen Sie mit uns auf Entdeckungsreise, Sie werden begeistert sein!

Die Ausstattungshighlights im Überblick:

+ Aufzug vorhanden
+ ausgezeichneter, durchdachter Grundriss
+ geräumige Terrasse mit Blick ins Grüne
+ Echtholzparkettböden Eiche hell/natur, Landhausdiele
+ komfortable Fußbodenheizung
+ gespachtelte Wände für ein elegantes Wohnambiente
+ modernes Bad mit großer Dusche
+ hochwertige Badausstattungen und elegante Accessoires
+ bodentiefe Fenster für viel Licht und Sonne
+ Tiefgaragenstellplatz vorhanden
+ zukunftssicher: Ihr Tiefgaragenstellplatz hat eine Wallbox (für Ihr Elektroauto)
+ praktischer Hauswirtschaftsraum mit Waschmaschinenanschluss
+ elektrische Rolläden in allen Räumen
+ moderne Videosprechanlage.

Genießen Sie den Komfort eines Erstbezugs im schönen Kronenpark! Eingebettet in ein parkartiges Grundstück mit herrlichem Baumbestand, bietet der Kronenpark familienfreundliche, komfortable Wohnungen auf hohem Niveau - mit besten Verkehrsanbindungen nach Berlin.

Wir freuen uns auf Ihren Kontakt. Am besten, Sie schreiben uns eine kurze Kontaktanfragen direkt aus diesem Exposé. Bitte geben Sie dabei auch eine Telefonnummer an, unter der Sie gut erreichbar sind, vielen Dank.

Mieten Sie direkt beim Spezialisten: wir sind geprüftes Mitglied des Immobilienverbands Deutschland (IVD) und gewährleisten eine kompetente und engagierte Bearbeitung Ihres Anmietbegehrens. Möchten auch Sie Ihre Eigentumswohnung verkaufen oder vermieten? Mit langjähriger Markterfahrung und viel Freude an persönlicher Dienstleistung sind wir Ihr professioneller Partner für den erfolgreichen Verkauf oder die Vermietung Ihrer Immobilie. Wir freuen uns auf Ihren Kontakt!

habitare Immobilien IVD wurde auch im Jahr 2025 von einer unabhängigen Jury des Fachmagazins Bellevue als „Bellevue Best Property Agents“ ausgezeichnet – nun bereits zum achtzehnten Mal in Folge.

Besuchen Sie gern auch unsere Internetseite unter www.habitare-immobilien.de, hier können Sie auch eine kostenfreie Suchanfrage aufgeben - und mit ein wenig Glück benachrichtigen wir Sie dann, sobald eine passende Wohnung ins Angebot kommt.

Merkmale

  • Bezug: sofort möglich!
  • Erdgeschoss
  • Einbauküche
  • Personenaufzug
  • Tiefgarage
  • Balkon
  • Terrasse
  • Bad mit Dusche

Grundrisse

Grundrisse
1 / 1

Realisiere Dein Projekt

Bausubstanz und Energie

Energieausweis

A
  • Baujahr2025
  • Zustand der ImmobilieNeubau, Erstbezug
  • HeizungsartFußbodenheizung
  • EnergieträgerFernwärme
Immowelt logo

Mietkosten

Kaltmiete
13,08 €/m²
1.249 €
Nebenkosten
267,32 €
Heizkosten
in Warmmiete enthalten
Zusätzliche Kosten
Miete pro Stellplatz
110 €
Kaution
3 Nettokaltmieten

Lage

address-icon
Schütte-Lanz-Straße 20ZeesenKönigs Wusterhausen (15711)
Attraktiv, grün, aufstrebend und dicht an Berlin: es wohnt sich sehr schön in Königs Wusterhausen. In der Schütte-Lanz-Straße ist mit dem Kronenpark ein ganz besonderes Neubauprojekt entstanden: die grüne Umgebung schafft ein hohes Maß an Erholungsqualität, abseits der quirligen Großstadt. Königs Wusterhausen ist ein Paradies für Naturliebhaber, und dennoch sind Sie schnell im beliebten Berlin: mit der Bahn passieren Sie schon nach wenigen Minuten die Berliner Stadtgrenze und vom Bahnhof Königs Wusterhausen sind Sie schon nach einer guten halben Stunde Bahnfahrt am Berliner Hauptbahnhof. Die ideale Bahnanbindung garantiert rasche Wege in das pulsierende Berlin.

Königs Wusterhausen punktet jedoch nicht nur mit einer optimalen Anbindung, sondern auch mit einer besonderen Wohnqualität: die seenreiche Umgebung ist ein Paradies für Wassersportler und Naturliebhaber - Wassersport hat in Königs Wusterhausen eine lange Tradition. Das Strandbad "Neue Mühle" ist binnen wenigen Autominuten oder natürlich auch mit dem Fahrrad erreichbar und nur eine von vielen Attraktionen für Jung und Alt. Wenn Sie einen Tag mit Shopping verbringen wollen, bietet die Altstadt von Königs Wusterhausen einige Möglichkeiten. Für ein ausgeprägtes Shoppingserlebnis ist das A10-Center schon nach 10 Minuten mit dem Auto erreicht. Ihre täglichen Besorgungen können Sie übrigens bequem zu Fuß erledigen: ein Supermarkt findet sich schon in der direkten Nachbarschaft, was den Alltag natürlich immens erleichtern kann.

Familien werden sich in Königs Wusterhausen sehr wohlfühlen, auch durch die Vielzahl an Bildungseinrichtungen und Schulen. In der Umgebung gibt es 6 Grundschulen, 3 Oberschulen und auch 2 Gymnasien. Der Kronenpark ist ein familienfreundliches Neubauprojekt und nicht nur Sie, sondern auch Ihre Kinder werden die Wohnanlage und die vielfältigen Bildungs- und Freizeitangebote in der näheren Umgebung sehr zu schätzen wissen.

Weitere Services

Lust auf eine Besichtigung?
Eine Frage zur Immobilie?
Nachricht hinzufügen
Mit der Nutzung der oben angegebenen Telefonnummer oder durch Klicken auf „Kontaktieren“ akzeptierst Du die Allgemeinen Nutzungsbedingungen, denen Du jederzeit widersprechen kannst. Weitere Informationen zum Datenschutz

Über den Anbieter

Moselstr. 1-2, 12159 Berlin
Team Kronenpark
Team KronenparkDein Kontakt
Online-ID: 2myzn5v
Referenznummer: KronenparkZ3B3_95,47_1249
habitare Immobilien IVD
title
habitare Immobilien IVD
Nachricht hinzufügen
Mit der Nutzung der oben angegebenen Telefonnummer oder durch Klicken auf „Kontaktieren“ akzeptierst Du die Allgemeinen Nutzungsbedingungen, denen Du jederzeit widersprechen kannst. Weitere Informationen zum Datenschutz
Wie zufrieden bist du mit dieser Seite (nicht mit der Immobilie selbst)?