Dein Projekt - U6 ums Eck - Innenhof Ruhelage - Sunset Loggia - Millennium City u. technische Fachhochschule ums Eck - Donauinsel
NEUBAU - IN ZENTRALER LAGE - U-BAHN U6 VOR DER TÜR - Innenhof Ruhelage - Sunset Loggia - DONAUINSEL - DONAUKANAL - MILLENNIUM CITY
Nach Umbauarbeiten entsteht hier eine wunderschöne 4-Zimmerwohnung mit sonniger Innenhof Loggia. Die Wohnung liegt im 3 .Liftstock und bezaubert durch die schöne Raumaufteilung und die zentrale Lage. Sie haben die U-Bahn vor der Tür und die Millennium City direkt ums Eck. Für Anleger die technische Fachhochschule ist auch in unmittelbarer Nähe.
Kurzinfo Ausführung und Ausstattung
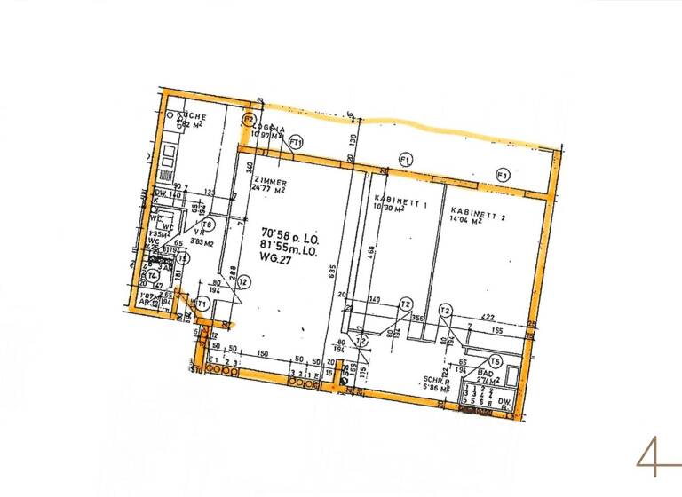
gesamt Wohnfläche inkl. Loggia 81,55 m² (lt. Plan)
Wohnbereich - 24,77 m²
Loggia - 10,97 m²
Küche - 7,82 m²
1. Zimmer - 14,04 m²
2. Zimmer - 10,30 m²
Vorraum - 3,83 m²
Schrankraum - 5,86 m²
Badezimmer mit Badewanne - 2,74 m²
WC - 1,35 m²
AR - 1,07 m²
Bodenbelag - Fliesen und Parkett
Zentralheizung
Fahrradraum
Wasch-/ Trockenraum
Lage
In einem aufstrebenden Stadtteil des 20. Bezirks überzeugt die praktische und zentrale Lage. Einkaufsmöglichkeiten, Restaurants, Cafés sowie Ärzte und Schulen liegen in unmittelbarer Nähe und machen den Alltag besonders angenehm. Dank der direkten U-Bahn-Anbindung sind Innenstadt und wichtige Knotenpunkte schnell erreicht. Grünflächen entlang der Donau und im Augarten bieten zusätzliche Erholung und Freizeitmöglichkeiten.
Öffentliche Verkehrsanbindungen
100 m zur U-Bahn U6 - "Dresdner Straße"
100 m zum Autobus 5A - "Dresdner Straße U"
140 m zur Straßenbahn 2, 5 - "Dresdner Straße U"
180 m zum Autobus 37A - "Dresdner Straße U"
220 m zur S-Bahn R, R1-4, R9, REX1, REX2 - "Traisengasse Bahnhof"
Gerne steht Ihnen Frau Alexandra Frenkel für weitere Fragen bzw. flexibel gestaltbare Besichtigungstermine unter 0676 376 9934 zur Verfügung.
www.4immobilien.at
Wir weisen ausdrücklich auf unser wirtschaftliches Naheverhältnis mit dem Abgeber/der Abgeberin und auf unsere Vermittlungstätigkeit als Doppelmakler hin.
Irrtum und Änderungen vorbehalten!
Wir weisen darauf hin, dass zwischen dem Vermittler und dem zu vermittelnden Dritten ein familiäres oder wirtschaftliches Naheverhältnis besteht.
Der Vermittler ist als Doppelmakler tätig.