Version: 8.24.0Navigation ĂĽberspringen
Sachs Immobilien
710 €
2 Zimmer  â€˘  51 m²  â€˘  frei ab sofort

Studio zur Miete
710 €
2 Zimmer  â€˘  51 m²  â€˘  frei ab sofort

2-Zimmer-Appartement ab 01.04.26 zur Miete frei

neuwertiges 2-Zimmer Appartement im ErdgeschoĂź in einem Mehrfamilienhaus.
Diese zentralliegende Immobilie bietet Ihnen Wohnraum mit allen Vorteilen von St. Ingbert,
nämlich in unmittelbarer Nähe der Fußgängerzone-Einkaufspassage: Kaiserstrasse
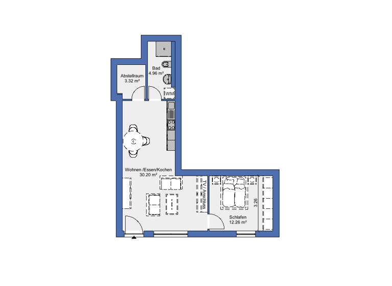
Die Wohnfläche von ca. 51 m² verteilt sich wie folgt:
Wohn-/Essbereich inkl. neuer EinbaukĂĽche, 1 Schlafzimmer, innenliegendes Bad mit Dusche (ohne Badewanne) und Abstellraum. Der Boden ist ĂĽberall gefliest.
Ideal fĂĽr Singles in jedem Alter oder auch als BĂĽro geeignet

Merkmale

  • frei ab sofort
  • EinbaukĂĽche
  • Bad mit Dusche
  • Bodenbelag: Fliesen
  • Fenster: Kunststoff
FuĂźbodenheizung
Luft-Wasser-Wärmepumpe
elektr. Rolläden
Kunststofffenster mit 3-fach Verglasung
WaschmaschinenanschluĂź im Bad
Internet Telekom oder Kabel Deutschland

Grundrisse

Grundrisse
1 / 2

Realisiere Dein Projekt

Bausubstanz und Energie

Der Anbieter hat keine Informationen zum Energieverbrauch bereit gestellt.
  • Zustand der ImmobilieNeubau, Massivhaus, neuwertig
  • HeizungsartFuĂźbodenheizung
  • EnergieträgerLuft-/Wasser-Wärmepumpe
MediumRectangleTop

Mietkosten

Warmmiete
900 €
Kaltmiete
13,92 €/m²
710 €
Nebenkosten
190 €
Kaution
1420 €

Lage

address-icon
Kaiserstrasse 87, St. Ingbert, St.Ingbert (66386)
St. Ingbert liegt nur wenige Minuten von SaarbrĂĽcken entfernt und grenzt an reizvolle Nachbarorte wie Blieskastel und
Neunkirchen. Für Einkäufe des täglichen Bedarfes gibt es diverse Geschäfte in der Stadtmitte und in IGB-Süd an der
Autobahnauffahrt.
Die Stadt ĂĽberzeugt mit ĂĽber 50 % Waldanteil, zahlreichen Wanderwegen und dem markanten Buntsandsteinfelsen
"Der Stiefel". Die Stadt ist ideal für alle, die Natur und Urbanität verbinden möchten.
Innovative Unternehmen und Forschungseinrichtungen machen die Stadt attraktiv für Berufstätige und Studierende.
Familien profitieren von einem breiten Bildungsangebot und Freizeitmöglichkeiten.

Weitere Informationen

Sonstiges IHRE ANSPRECHPARTNERIN
Frau Irene Reger
Auf der Teufelsinsel 28
66386 St. Ingbert
Tel: 0176 - 80 82 18 85
E-Mail: i.reger@sachs-immo.de
Web: www.sachs-immo.de

Weitere Services

Lust auf eine Besichtigung?
Eine Frage zur Immobilie?
Nachricht hinzufĂĽgen
Mit der Nutzung der oben angegebenen Telefonnummer oder durch Klicken auf „Kontaktieren“ akzeptierst Du die Allgemeinen Nutzungsbedingungen, denen Du jederzeit widersprechen kannst. Weitere Informationen zum Datenschutz

Ăśber den Anbieter

Sachs Immobilien
Sachs ImmobilienMaklerbĂĽro
Auf der Teufelsinsel 28, 66386 St. Ingbert
Frau Anna BernhartDein Kontakt
Online-ID: 2n9pn5p
Referenznummer: 616 (1/616)
Sachs Immobilien
Sachs Immobilien
Bewertung: 3,6 von 5 Sternen
Nachricht hinzufĂĽgen
Mit der Nutzung der oben angegebenen Telefonnummer oder durch Klicken auf „Kontaktieren“ akzeptierst Du die Allgemeinen Nutzungsbedingungen, denen Du jederzeit widersprechen kannst. Weitere Informationen zum Datenschutz
MediumRectangleTop
MediumRectangleBottom
MediumRectangleTop
Wie zufrieden bist du mit dieser Seite (nicht mit der Immobilie selbst)?