Version: 8.25.1Navigation überspringen
1.845 €
4 Zimmer  •  115,9 m²
Immowelt logo

Wohnung zur Miete
1.845 €
4 Zimmer  •  115,9 m²

Familien aufgepasst: moderne 4 Zimmer Wohnung anmieten und einen Monat sparen!

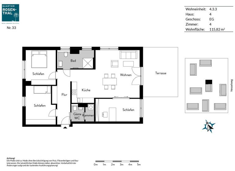
Die exklusive 4-Zimmer-Wohnung im QUARTIER ROSENTHAL bietet auf ca. 110 Quadratmetern alles, was Paare oder kleine Familien zum modernen Wohnen brauchen. Sie betreten die Wohnung über einen geräumigen Flur. Vom Flur aus erreichen Sie alle Zimmer, sowie die beiden Badezimmer.
Das helle, geräumige Wohn- und Esszimmer bietet Zugang zur Terrasse und verfügt über eine moderne Einbauküche. Die Wohnung bietet zwei großzügige Bäder mit Dusche und Badewanne. Eine Abstellkammer mit Waschmaschinenanschluss ist bei diesem Grundrisstypen ebenfalls vorgesehen. Ein Keller gehört ebenfalls mit zur Wohnung.

Merkmale

  • Bezug: ab sofort
  • Barrierefrei
  • Einbauküche
  • Keller
  • Terrasse
  • Außen-Stellplatz
- Einbauküche mit Markengeräten
- Fußbodenheizung in der ganzen Wohnung
- Balkon, Terrasse oder Dachterrasse
- bodentiefe Fenster
- glattweiße Wände
- elektrische Außenrollläden im Erdgeschoss, Plissés in
den Obergeschossen
- Eichenechtholzparkett in den Wohnbereichen und
Fluren
- Badezimmer mit großformatigen Wandfliesen,
hochwertigen Armaturen und Einbauten sowie flachen
Handtuchheizkörpern
- Waschmaschinenanschluss in jeder Wohnung
- barrierefreier Zugang in den Erdgeschosswohnungen
- Gegensprechanlage

Grundrisse

Grundrisse
1 / 1

Realisiere Dein Projekt

Bausubstanz und Energie

Energieausweis

B
  • Baujahr2020
  • Zustand der ImmobilieNeubau, neuwertig
  • HeizungsartFußbodenheizung
  • EnergieträgerFernwärme
Immowelt logo

Mietkosten

Warmmiete
2.300 €
Kaltmiete
15,92 €/m²
1.845 €
Nebenkosten
455 €
Heizkosten
in Warmmiete enthalten
Zusätzliche Kosten
Miete pro Stellplatz
80 €
Kaution
5535 €
Weitere Preisinformationen
1 Stellplatz, Miete: 80,00 EUR

Lage

address-icon
Steinkleeweg 4RosenthalBerlin (13158)
BERLIN-PANKOW: Grün, vielseitig und ausgesprochen beliebt!

- zweitgrößter und bevölkerungsreichster Bezirk Berlins und reicht von Berliner City-Ost bis an die Landesgrenze zum grünen Barnim
- umfasst den südlich gelegenen Prenzlauer Berg mit seinen Gründerzeitvierteln, kleinen Geschäften und vielen Cafés ebenso wie den namensgebenden Ortsteil Pankow oder die vorstädtisch bis ländlich geprägten Ortsteile Karow und Buch im Nordosten.

- idyllische Grünanlagen, attraktive Wohnquartiere, angesagte Szenekieze, hochkarätige Kulturlocations, erfolgreiche Gewerbestandorte
- Schloss Schönhausen, der Wasserturm in der Knaackstraße oder Weißensee mit seinem Strandbad und dem größten jüdischen Friedhof Europas
- stadtbekannte Ökomarkt am Kollwitzplatz sowie der Markt auf dem Pankower Anger lohnen immer einen Besuch

PANKOW-ROSENTHAL: Dörfliche Beschaulichkeit im Norden Berlins

- ruhig und grün gelegen, aber bestens an die Innenstadt angebunden
- im 13. Jahrhundert als Angerdorf angelegt: Hauptstraße mit dem denkmalgeschützten Ensemble aus Dorfkirche, Gemeindehaus und Gutshof sind heute noch vorhanden
- Gartenstadtcharakter, Ein- und Zweifamilienhaussiedlungen, Laubenkolonien
- bei Familien beliebt

AREAL & ANBINDUNG: Mit der Tram direkt in die Innenstadt

- Bushaltestelle Kräuterweg mit Anbindung nach Buchholz wenige Schritte vom QUARTIER ROSENTHAL
- nächste Tramhaltestelle ist ebenfalls nicht weit: mit der M1 auf direktem Wege in die Stadtmitte
- vom S-Bahnhof Wilhelmsruh verkehren die wichtigen Pendlerlinien S 85 und S 1
- mit dem Auto in ca. 20 Minuten auf der A10 oder A114

- Nahversorgung: Supermarkt, verschiedene Discounter, Getränkemarkt und mehrere Bäckereien sind fußläufig erreichbar
- weitere Einkaufsmöglichkeiten, Apotheken und Ärzte im angrenzenden Märkischen Viertel und Wilhelmsruh
- Kita, Kindergarten und zwei Grundschulen im Umkreis von zwei Kilometern

Weitere Informationen

Sonstiges ANFRAGEN BITTE ÜBER DAS KONTAKTFORMULAR.


BITTE BEACHTEN!
Wir respektieren den Wunsch der Mieter auf Privatsphäre. Bei den Bildern handelt es sich daher um
Bilder einer Musterwohnung im gleichen Objekt. Der Zuschnitt der angebotenen Wohnung
entspricht nicht den Bildern. Die Ausstattung (Böden, Wände, Küche, etc.) ist jedoch in allen
Wohnungen identisch.


Wir weisen vorsorglich darauf hin, dass bei Abschluss des Mietvertrags eine Mindestmietdauer von 12 Monaten sowie eine Indexmiete vereinbart werden.



HAFTUNGSAUSSCHLUSS:

Diese Anzeige dient nur der ersten Information und stellt kein Vertragsangebot dar. Die Anzeige begründet keine vertraglichen Ansprüche. Der Inhalt und die Angaben wurden nach bestem Wissen und Gewissen ermittelt. Für Richtigkeit und Vollständigkeit wird keine Haftung übernommen. Die Grundrisse sind nicht zur Maßentnahme geeignet. Stichworte Stellplatz vorhanden, Anzahl der Schlafzimmer: 3, Anzahl der Badezimmer: 2, Anzahl der separaten WCs: 1, Anzahl Terrassen: 1, 2 Etagen

Weitere Services

Lust auf eine Besichtigung?
Eine Frage zur Immobilie?
Mit einer persönlichen Nachricht hast du bessere Chancen auf eine Antwort.
Mit der Nutzung der oben angegebenen Telefonnummer oder durch Klicken auf „Kontaktieren“ akzeptierst Du die Allgemeinen Nutzungsbedingungen, denen Du jederzeit widersprechen kannst. Weitere Informationen zum Datenschutz

Über den Anbieter

Galileistraße 1, 69115 Heidelberg
partner badge
10 Jahre Partnerschaft
Frau Chantal RützDein Kontakt
Keine Telefonnummer hinterlegt
Keine Telefonnummer hinterlegt
Online-ID: 264ZL2H1TATZ
Referenznummer: B-QR-33#EpnLD
Müller Merkle Immobilien GmbH
Müller Merkle Immobilien GmbH
Bewertung: 4,2 von 5 Sternen
Mit einer persönlichen Nachricht hast du bessere Chancen auf eine Antwort.
Mit der Nutzung der oben angegebenen Telefonnummer oder durch Klicken auf „Kontaktieren“ akzeptierst Du die Allgemeinen Nutzungsbedingungen, denen Du jederzeit widersprechen kannst. Weitere Informationen zum Datenschutz
Wie zufrieden bist du mit dieser Seite (nicht mit der Immobilie selbst)?