Version: 8.22.6Navigation überspringen
4.275 €
700 m² Lagerfläche
Immowelt logo

Produktionshalle zur Miete • provisionsfrei
4.275 €
700 m² Lagerfläche

Attraktives Gewerbeobjekt - Büros & Hallenfläche - flexible Nutzungsmöglichkeiten

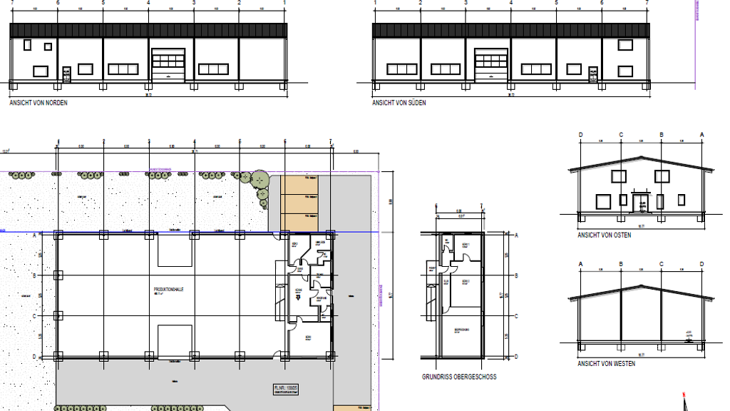
Objektbeschreibung Flexibel nutz- und aufteilbare attraktive Gewerbeimmobilie mit einer Gesamt-Mietfläche von 700qm
Traufhöhe 6,30m
zwei große Rolltore 4,5m x 4,5m (bxh)

Nutzungsmöglichkeiten:
Büroräume in flexibler Aufteilung mit Sozialräumen (2 Küchen, 3 WCs)
Produktion mit Sozialräumen (Umkleide)
Lagerhalle
Seminarräume (Schulungen, Fahrschule)
Austellungsräume
Verkauf / Handel
Bausektor (Elektro, Sanitär, Farben, etc.)
Sportaktivitäten (Fitnessstudio, Boulderhalle, etc.)
Gastronomie Raumaufteilung 90qm Büro- und Sozialräume im OG (Küche, WC)
90qm Büro- und Sozialräume im EG
510qm Hallenfläche für Produktion / Lager im EG

Flexible Raumaufteilung möglich.



Merkmale

  • Bezug: ab 01.11.25
  • vermietet
  • 2 Geschosse
  • 2.200 m² Grundstück
  • 12 Stellplätze: Außen-Stellplatz
  • LKW-Zufahrt
  • Rolltor
  • Bodenbelag: Fliesen, Kunststoff, Teppich

Realisiere Dein Projekt

Bausubstanz und Energie

Der Anbieter hat keine Informationen zum Energieverbrauch bereit gestellt.
  • Baujahr2016
  • HaustypKfW 55
  • HeizungsartZentralheizung: Fußbodenheizung
  • EnergieträgerGas
Immowelt logo

Mietkosten

Nettomiete
4.275 €
Nebenkosten
700 €
Provision für Mieter
provisionsfrei
Kaution
keine Angabe

Lage

address-icon
Schernberg 41SchernbergHerrieden (91567)
In der wirtschaftlich attraktiven Stadt Herrieden in Mittelfranken gelegen mit herrlichem Blick auf das schöne Altmühltal und die umgebende Natur.

Direkt an der Autobahnausfahrt A6 Herrieden (Ost-West-Achse Nürnberg-Heilbronn).

Die automobile Nord-Süd-Achse A7 (Kreuz Feuchtwangen/Crailsheim) ist nur 20km entfernt.

Der Flughafen Nürnberg ist nur 70km entfernt.


Weitere Informationen

Besichtigungstermine Auf Anfrage Stichworte Zustand: neuwertig, gepflegt Sonstiges: EDV-Verkabelung, Getrennte Damen- und Herren-WCs

Weitere Services

Lust auf eine Besichtigung?
Eine Frage zur Immobilie?
Nachricht hinzufügen
Mit der Nutzung der oben angegebenen Telefonnummer oder durch Klicken auf „Kontaktieren“ akzeptierst Du die Allgemeinen Nutzungsbedingungen, denen Du jederzeit widersprechen kannst. Weitere Informationen zum Datenschutz

Über den Anbieter

Schernberg 41, 91567 Herrieden
partner badge
Partnerschaft
Sebastian HeckelDein Kontakt
Online-ID: 2g4v55v
Privater Anbieter
Nachricht hinzufügen
Mit der Nutzung der oben angegebenen Telefonnummer oder durch Klicken auf „Kontaktieren“ akzeptierst Du die Allgemeinen Nutzungsbedingungen, denen Du jederzeit widersprechen kannst. Weitere Informationen zum Datenschutz
Wie zufrieden bist du mit dieser Seite (nicht mit der Immobilie selbst)?