Doppelhaushälfte im Erstbezug mit ca. 140 m² Wohnfläche zu großartigem Preis!
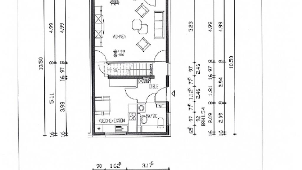
Diese schlüsselfertige und qualitativ hochwertige Doppelhaushälfte mit Grundstück könnte schon in Kürze Ihnen gehören. Zeit und Geld spielen für Sie eine große Rolle? Hier wird Qualität großgeschrieben! Die Ausstattung ist hochwertig und bedarf nur noch Ihrer persönlichen Auswahl. Die Wohnfläche beträgt ca. 140 m². Das Haus kann je nach Ihrem Bedarf auf 4 oder 5 Zimmer zugeschnitten werden. Zusätzlich zu dem schon fertigen Badezimmer im ersten Obergeschoss, einem Gäste-WC oder alternativ einem Wäscheraum bieten wir für die Küche die Verlegung der Medien nach Ihren Wünschen an. Fenster mit 3-Scheiben-Isolierverglasung, Fensterbänke aus Marmor, Rollläden und Fußbodenheizung mit Thermostatreglern in jedem Wohnraum gehören zum Standard dieser Immobilie. Eine Terrasse in Richtung Garten ist vorhanden. Die Grundstücksgrößen liegen zwischen ca. 362 und 372 m². Die Außenanlage verfügt über eine fertige Einfriedung mit Zaun und gepflasterten Wegen sowie einen gepflasterten Pkw-Stellplatz. Dieses Angebot versteht sich inklusive Grundstück und aller Bau- und Baunebenkosten. Zusätzliche Ausstattungen wie z.B. der Einbau einer Garage, eines Schornsteins (nur Giebelseitig), eines Wintergartens o.a. sind nach Absprache gegen Aufpreis realisierbar. Für einen Besichtigungstermin oder bei weiteren Fragen stehen wir Ihnen gerne zur Verfügung.
Merkmale
362 m² Grundstück
Außen-Stellplatz
Realisiere Dein Projekt
Bausubstanz und Energie
Der Anbieter hat keine Informationen zum Energieverbrauch bereit gestellt.
Baujahr2023
Zustand der ImmobilieErstbezug
Preisdetails
Kaufpreis
347700 €347.700 €
2.483,57 €/m²
Provision für Käufer
3,57% inkl. MwSt.
Weitere Preisinformationen
1 Stellplatz
Geschätzte Gesamtkosten
386.192 €1
Kaufpreis
347.700 €
Kaufnebenkosten
38.492 €
2
Notarkosten (1,5%)
5.216 €
Grunderwerbsteuer (5,5%)
19.124 €
Provision für Käufer (3,57%)
12.413 €
Grundbucheintrag (0,5%)
1.739 €
1Der angezeigte Wert ist eine automatisch berechnete Schätzung von immowelt.
2Bei den Angaben handelt es sich um ortsübliche Werte. Individuelle Kosten können abweichen.
Lage
Hoyerswerda (02977)
Der Anbieter hat die genaue Adresse nicht freigegeben
Die Doppelhaushälfte mit großzügiger Außenanlage befindet sich in einer neu entstandenen Wohnsiedlung. Alle infrastrukturellen Einrichtungen (Einkaufsmöglichkeiten, Ärzte, Apotheken usw.) sind zum Teil fußläufig direkt im Ort bzw. mit dem Auto oder öffentlichen Verkehrsmitteln gut zu erreichen. In der Stadt Hoyerswerda gibt es Grund- und Realschulen sowie Gymnasien. Weiterhin Kindergärten, ein Schwimmbad, Kino, Zoo, Krankenhaus, altersgerechtes Wohnen und Pflegeeinrichtungen. Hoyerswerda ist eine sächsische Kleinstadt mit Potenzial. Sie liegt im Landkreis Bautzen am nördlichen Rand der Oberlausitz direkt an der Bundesstraße 97 innerhalb ausgedehnter Wälder und einer ausgeprägten Seenlandschaft.
Weitere Informationen
Sonstiges
Provisionshinweis: 3,57 % Käuferprovision inkl. MwSt., verdient und fällig mit Beurkundung des durch Immosuch GmbH vermittelten notariellen Kaufvertrages. Der Immobilienmakler hat einen provisionspflichtigen Maklervertrag mit dem Verkäufer in gleicher Höhe abgeschlossen.
Anmerkung: Die von uns gemachten Angaben haben wir nach bestem Wissen und Gewissen sowie den uns vom Eigentümer zur Verfügung stehenden Informationen zusammengestellt. Eine Gewähr für diese Angaben können wir nicht übernehmen. Wichtige Zahlen und Informationen sind am Objekt zu überprüfen. Der Verkauf bleibt vorbehalten.
Der Energieausweis befindet sich in Vorbereitung.
Stichworte
Anzahl der Schlafzimmer: 1, Anzahl der Badezimmer: 1