Version: 8.26.0Navigation überspringen
allkauf haus Südwest
370.449 €
4 Zimmer  •  133,7 m²  •  459 m² Grundstück

Einfamilienhaus zum Kauf • provisionsfrei
370449 €
2.771 €/m²
4 Zimmer  •  133,7 m²  •  459 m² Grundstück

Home 2

Willkommen in Ihrem neuen Traum-Einfamilienhaus in Nittel! Dieses individuell projektiertes Haus erfüllt all Ihre Wünsche und Vorstellungen und wird auf einem großzügigen Grundstück von 450 m² errichtet. Mit einer Wohnfläche von 133,70 m², verteilt auf zwei Etagen, bietet es Ihnen und Ihrer Familie ausreichend Platz zum Wohlfühlen und Entspannen. Die durchdachte Raumaufteilung umfasst 4 Zimmer, darunter 3 Schlafzimmer, ein modernes Badezimmer sowie ein zusätzliches Gäste-WC. Das Haus erfüllt den KFW55 Standard und sorgt für Nachhaltigkeit und Energieeffizienz. Lassen Sie Ihrer Kreativität beim Innenausbau freien Lauf oder greifen Sie auf unsere professionellen Dienstleistungen zurück - ganz nach Ihren Vorstellungen!

Merkmale

  • 459 m² Grundstück
  • Gäste-WC
Das Einfamilienhaus überzeugt durch hochwertige bauliche und technische Details:
- Energieeffizienzwand
- Echtholztreppe
- Luft-Wasser-Wärmepumpe
- Fußbodenheizung
- Be- und Entlüftungsanlage
- 3-fach verglaste Fenster inklusive Rollläden mit Aluminiumlamellen
- Lichte Raumhöhe von 2,75 m, inkl. erhöhten Fenstern und Türen
- TOXPROOF Gütesiegel für schadstoffgeprüfte Materialien
- Just-in-Time-Lieferungen
- Bemusterung im eigenen Bemusterungszentrum mit Markenprodukten

Die Kombination aus modernster Technik und hochwertigem Wohnen macht dieses Haus zu einem Highlight!

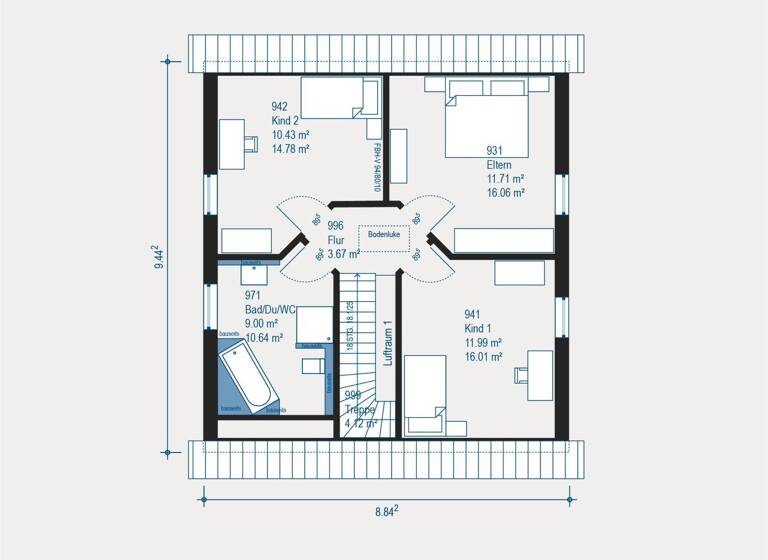
Grundrisse

Grundrisse
1 / 2

Bausubstanz und Energie

Möchtest du Details zum Energieverbrauch?info_energy_calculation-icon
  • Baujahr2026
  • Zustand der ImmobilieProjektiert
  • HaustypKfW 55

Preisdetails

Kaufpreis
370449 €
2.770,75 €/m²
Provision für Käufer
provisionsfrei
Geschätzte Gesamtkosten
396.380 €1
Kaufpreis
370.449 €
Notarkosten (1,5%)
5.557 €
Grunderwerbsteuer (5%)
18.522 €
Grundbucheintrag (0,5%)
1.852 €
1Der angezeigte Wert ist eine automatisch berechnete Schätzung von immowelt.
2Bei den Angaben handelt es sich um ortsübliche Werte. Individuelle Kosten können abweichen.

Lage

address-icon
Nittel (54453)
Der Anbieter hat die genaue Adresse nicht freigegeben
Nittel, umgeben von einer ruhigen Wohngegend, bietet Ihnen eine hervorragende Infrastruktur. In der Nähe finden Sie alles, was Sie für den täglichen Bedarf benötigen, sowie zahlreiche Freizeitmöglichkeiten wie Parks und Sportanlagen. Genießen Sie die Vorteile einer ländlichen Idylle, während Sie dennoch schnell in die benachbarten Städte gelangen.

Weitere Informationen

Sonstiges allkauf heißt: Maximale Sicherheit, kurze Lieferzeiten, garantierte Fertigstellung. Wir bieten Ihnen eine Festpreisgarantie und gewährleisten, dass die vereinbarten Lieferzeiten eingehalten werden.

Zu allen Häusern gehört:
- Energieeffizienzwand
- Echtholztreppe
- Luft-Wasser-Wärmepumpe
- Fußbodenheizung
- Be- und Entlüftungsanlage
- 3-fach verglaste Fenster inklusive Rollläden mit Aluminiumlamellen
- Lichte Raumhöhe 2,75 m
- inkl. erhöhten Fenstern und Türen
- TOXPROOF Gütesiegel - schadstoffgeprüfter Materialien
- Just-in-Time-Lieferungen
- Bemustern im eigenen Bemusterungszentrum mit Markenprodukten

Vereinbaren Sie noch heute Ihren Termin zur Planung Ihres allkauf Traumhauses! Stichworte Anzahl der Schlafzimmer: 3, Anzahl der Badezimmer: 1, 2 Etagen, Lage im Wohngebiet

Weitere Services

Lust auf eine Besichtigung?
Eine Frage zur Immobilie?
Nachricht hinzufügen
Mit der Nutzung der oben angegebenen Telefonnummer oder durch Klicken auf „Kontaktieren“ akzeptierst Du die Allgemeinen Nutzungsbedingungen, denen Du jederzeit widersprechen kannst. Weitere Informationen zum Datenschutz

Über den Anbieter

Am Alten Schwimmbad 5, 66450 Bexbach
Frau Julia DeichlerDein Kontakt
Online-ID: 26MM17B24A9F
Referenznummer: 4171-301-kw13-69914
Wie zufrieden bist du mit dieser Seite (nicht mit der Immobilie selbst)?