Exklusiver Neubau mit Doppelgarage und großem Garten in idyllischer Lage von Hönningen-Liers
Objektnr: 1063469
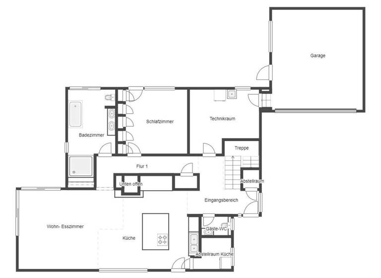
Dieses exklusive Einfamilienhaus überzeugt durch seine hochwertige Bauweise nach neusten Standards und vielseitigen Nutzungsmöglichkeiten. Es erstreckt sich über zwei Etagen, die durch eine offene Treppe verbunden sind. Beide Stockwerke verfügen über separate Anschlüsse, sodass eine Trennung in zwei eigenständige Wohneinheiten problemlos realisierbar ist. Das Erdgeschoss ist vollständig barrierefrei gestaltet.
Der Eingangsbereich führt durch die offene Diele in den großzügigen Wohn- und Essbereich mit Kamin sowie Zugang zur Terrasse und zum Garten. Die hochwertig ausgestattete Küche verfügt über einen separaten Vorratsraum. Das Badezimmer bietet eine bodengleiche Dusche mit beheizter Sitzbank und eine Badewanne. Das Schlafzimmer ist mit einem geräumigen Einbauschrank ausgestattet. Zusätzlich gibt es einen Abstellraum, der viel Staufläche bietet, sowie ein Gäste-WC mit Fenster. Vom Hauswirtschafts- und Technikraum, der mit einer Erdwärmepumpe und einem Akku für die Photovoltaikanlage ausgestattet ist, gelangt man direkt in die Doppelgarage. Bodentiefe Fenster in allen Räumen schaffen einen nahtlosen Übergang zum Außenbereich und sorgen für helle, lichtdurchflutete Räume.
Das Obergeschoss bietet drei Zimmer. Der Wohn- und Essbereich ist mit einem weiteren Kamin ausgestattet und verfügt über eine hochwertige Küche. Er überzeugt durch die hohe Decke sowie den Zugang zur Dachterrasse. Das exklusive Badezimmer im Obergeschoss bietet eine bodengleiche Dusche, eine Badewanne und einen Waschmaschinenanschluss. Ein Einbauschrank im Flur sorgt für zusätzlichen Stauraum. Das Gäste-WC ist ebenfalls mit einer Dusche ausgestattet.
Das sonnige Grundstück bietet zahlreiche Möglichkeiten für die Gestaltung des seitlichen und hinteren Gartenbereichs. Leerrohre für den Bau eines Pools sind bereits verlegt. Die hochwertig gepflasterte Einfahrt wird in Kürze mit einem elektrischen Tor ergänzt. Die Doppelgarage verfügt über ein elektrisches Rolltor. Hinter der Garage befindet sich eine weitere Garage, die für Gartengeräte genutzt werden kann. Der Vorgarten ist vollständig angelegt und lädt mit einer Terrasse zum Verweilen ein.
Dieses vielseitige Haus eignet sich ideal für Familien oder zur Mehrgenerationennutzung. Der hochwertige Ausbau und die flexiblen Nutzungsmöglichkeiten machen dieses Objekt besonders attraktiv.
Merkmale
Bezug: nach Absprache
872,2 m² Grundstück
Einbauküche
Kein Keller
5 Stellplätze
Gäste-WC
Balkon
Garten
Grundrisse
Grundrisse
1 / 3
Virtueller Rundgang
3D tour
Realisiere Dein Projekt
Bausubstanz und Energie
Energieausweis
A+
Baujahr2024
Zustand der ImmobilieErstbezug
HeizungsartFußbodenheizung
EnergieträgerElektro, Erdwärme, Solar
Preisdetails
Kaufpreis
857000 €857.000 €
3.570,83 €/m²
Provision für Käufer
Die Provision i.H.v. 3,57 % inkl. MwSt. ist mit Kaufvertragsbeurkundung fällig, sofern der Verkaufspreis über 83.000,00 € liegt.
Liegt der Verkaufspreis dagegen bei/unter 83. Weitere Informationen siehe Provisionshinweis.
Geschätzte Gesamtkosten
917.076 €1
Kaufpreis
857.000 €
Kaufnebenkosten
60.076 €
2
Notarkosten (1,5%)
12.855 €
Grunderwerbsteuer (5%)
42.850 €
Provision für Käufer (0,01%)
86 €
Grundbucheintrag (0,5%)
4.285 €
1Der angezeigte Wert ist eine automatisch berechnete Schätzung von immowelt.
2Bei den Angaben handelt es sich um ortsübliche Werte. Individuelle Kosten können abweichen.
Lage
Altenburg, Altenahr (53505)
Der Anbieter hat die genaue Adresse nicht freigegeben
Lage: Die naturnahe Lage bietet eine grüne Umgebung mit Naherholungsmöglichkeiten, mit dem Pkw in nur ca. 30 min in Bonn Bildung und Betreuung: Kindergarten im Umkreis von max. 6 km Nahversorgung: Rund 6 km zu Supermärkten und Bankfilialen Anbindung: Vorteilhaft erreichbar: Bahnhof sowie Autobahn
Weitere Informationen
Provisionshinweis
Die Provision i.H.v. 3,57 % inkl. MwSt. ist mit Kaufvertragsbeurkundung fällig, sofern der Verkaufspreis über 83.000,00 € liegt.
Liegt der Verkaufspreis dagegen bei/unter 83.000,00 €, ist die fest vereinbarte Mindestprovision i.H.v. mind. 5.950,00 € inkl. MwSt. mit Kaufvertragsbeurkundung fällig. Die Mindestprovision fällt insg. nur einmal an, wodurch Verkäufer und Käufer die Mindestprovision dann jeweils mit 2.975,00 € inkl. MwSt. tragen.
Sonstiges
Vereinbaren Sie noch heute einen Besichtigungstermin! _____________________________________________________
Alle Angaben sind ohne Gewähr und basieren ausschließlich auf Informationen, die uns von unserem Auftraggeber zur Verfügung gestellt wurden. Wir übernehmen keine Gewähr für die Vollständigkeit, Richtigkeit und Aktualität der Angaben.
Stichworte
Gesamtfläche: 239,00 m², Anzahl der Schlafzimmer: 3, Anzahl der Badezimmer: 2, Anzahl Balkone: 1, 2 Etagen