Version: 8.24.1Navigation überspringen
11 €
1.243,7 m² Bürofläche
Immowelt logo

Bürofläche zur Miete
11 €
/m²
1.243,7 m² Bürofläche

Gewerbeflächen mit Top-Ausstattung - für Schulungen, Labor und Produktion geeignet!

Direkt an der Autobahnauffahrt Landstraße / Hauptbahnhof gelangt eine ca. 1.400m² große Gewerbefläche in die Vermarktung. Im 4. OG gelegen, bieten die Flächen tolle Aussicht über das umliegende Wien. Bisher wurden die Räumlichkeiten für technische Schulungen genutzt. Entsprechende Infrastruktur wie Gasanschlüsse, Wasseranschlüsse und eine Industrielüftungsanlage sind vorhanden. Darüber hinaus steht ein geräumiger Lastenaufzug (4,3t Nutzlast, 6m Länge) zur Verfügung, welcher über die Zufahrt entlang des Gebäudes und ein Sektionaltor direkt beliefert werden kann. Die Deckentraglast beträgt mindestens 1,5t/m².

Der Großteil der Fläche wir derzeit für technische Schulungen verwendet. Darüber hinaus stehen Büros und Besprechungsräume, sowie ausreichend Garderoben und Waschräume zur Verfügung. Ein attraktiver Sozialbereich mit großzügiger Terrasse rundet das Gesamtpaket ab.

Merkmale

  • 4. Geschoss
- Lastenlift (4,3t, 6m) und Personenlifte
- Sektionaltor und LKW-Zufahrt
- mind. 1,5/m² Deckentraglast
- Industrielüftungsanlage
- Gasanschlüsse, Wasseranschlüsse
- Gasflaschenlager im Außenbereich
- Lager- und Archivflächen im Mietbereich
- tlw. Klimaanlage
- Büros, Sozialräume, Garderoben
- Terrasse

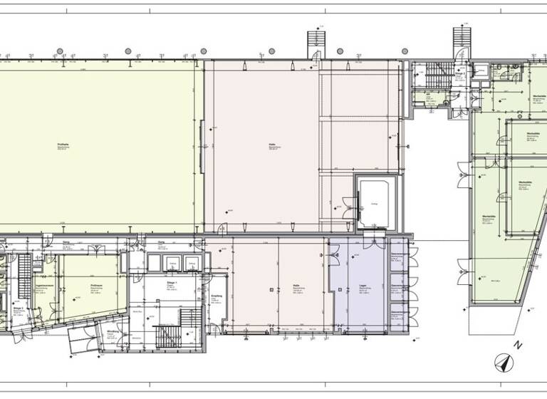
Grundrisse

Grundrisse
1 / 2

Realisiere Dein Projekt

Bausubstanz und Energie

Möchtest du Details zum Energieverbrauch?info_energy_calculation-icon
Immowelt logo

Mietkosten

Monatliche Miete
11 €/m²
Provision für Mieter
Bitte beachte, das Angebot kann bei Vertragsabschluss die Zahlung einer Provision beinhalten. Weitere Informationen erhältst Du vom Anbieter.
Kaution
keine Angabe

Lage

address-icon
Wien (1030)
Der Anbieter hat die genaue Adresse nicht freigegeben
Das Objekt befindet sich direkt am Entwicklungsgebiet Arsenal, unweit des Wiener Hauptbahnhofs. Dieser ist mittels nahegelegener Busverbindung in ca. 15 min. erreichbar. Darüber hinaus bietet der nahegelegene Autobahnanschluss in Kombination mit der verkehrsgünstigen Gestaltung der Liegenschaft ideale Voraussetzungen für den Individualverkehr. Ladetätigkeiten sind über das Sektionaltor sowie den Lastenlift direkt bei der LKW-Zufahrt des Gebäudes einfach durchführbar.

Weitere Informationen

Sonstiges Wir weisen darauf hin, dass zwischen dem Vermittler und dem Auftraggeber ein wirtschaftliches Naheverhältnis besteht. Der Vermittler ist als Doppelmakler tätig. Stichworte Nutzfläche: 1.243,68 m², Bundesland: Wien

Weitere Services

Lust auf eine Besichtigung?
Eine Frage zur Immobilie?
Nachricht hinzufügen
Mit der Nutzung der oben angegebenen Telefonnummer oder durch Klicken auf „Kontaktieren“ akzeptierst Du die Allgemeinen Nutzungsbedingungen, denen Du jederzeit widersprechen kannst. Weitere Informationen zum Datenschutz

Über den Anbieter

Prinz-Eugen-Strasse 8-10, 1040 WIEN
partner badge
Partnerschaft
Herr Gregor SchimelDein Kontakt
Online-ID: 25UBUX5F15CG
Referenznummer: 35903_2
EHL Gewerbeimmobilien GmbH
EHL Gewerbeimmobilien GmbH
Nachricht hinzufügen
Mit der Nutzung der oben angegebenen Telefonnummer oder durch Klicken auf „Kontaktieren“ akzeptierst Du die Allgemeinen Nutzungsbedingungen, denen Du jederzeit widersprechen kannst. Weitere Informationen zum Datenschutz
Wie zufrieden bist du mit dieser Seite (nicht mit der Immobilie selbst)?