Version: 8.25.1Navigation überspringen
Rahn Immobilien GmbH & Co.KG
10 €
130 m² Bürofläche

Praxisfläche zur Miete • provisionsfrei
10 €
/m²
130 m² Bürofläche

Moderne Bürofläche in Top-Geschäftslage

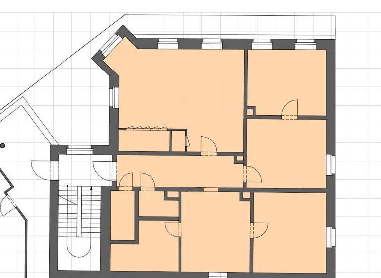
Zur Vermietung steht eine helle und funktional geschnittene Büroeinheit im 1. Obergeschoss, die ideale Voraussetzungen für ein angenehmes und effizientes Arbeiten bietet. Die Fläche umfasst insgesamt vier einzelne Büroräume, darunter ein großzügiges Großraumbüro, das sich hervorragend für Teamarbeit oder mehrere Arbeitsplätze eignet. Die weiteren Büroräume können flexibel als Einzel- oder Doppelbüros, Besprechungsräume oder Rückzugsorte genutzt werden.

Große Fensterflächen sorgen in allen Räumen für eine freundliche, helle Arbeitsatmosphäre mit viel Tageslicht.

Ergänzt wird das Raumangebot durch eine kleine Teeküche, die ausreichend Platz für Pausen und die Verpflegung der Mitarbeiter bietet. Zwei getrennte WC-Einheiten erhöhen den Komfort für Mitarbeiter und Besucher gleichermaßen.

Die Bürofläche eignet sich ideal für kleine bis mittelständische Unternehmen, Dienstleister oder Start-ups, die Wert auf eine gut strukturierte Raumaufteilung und ein angenehmes Arbeitsumfeld legen.

Merkmale

  • Bezug: nach Absprache
  • Bodenbelag: Teppich

Grundrisse

Grundrisse
1 / 1

Realisiere Dein Projekt

Bausubstanz und Energie

Energieausweis

Endenergieverbrauch (Wärme)

  • Baujahr1900
  • Zustand der ImmobilieGepflegt
  • HeizungsartEtagenheizung
  • EnergieträgerGas

Mietkosten

Warmmiete
1.990 €
Nettomiete
10 €/m²
1.300 €
Nebenkosten
290 €
Provision für Mieter
provisionsfrei
Kaution
4000 €
Weitere Preisinformationen
Nettokaltmiete: 1.300,00 EUR

Lage

address-icon
Gevelsberg (58285)
Der Anbieter hat die genaue Adresse nicht freigegeben
Das Wohn- und Geschäftshaus befindet sich in attraktiver Lage von Gevelsberg, einer charmanten Stadt im Ruhrgebiet, zwischen Hagen und Wuppertal. Die Immobilie profitiert von einer ausgezeichneten Anbindung an das regionale und überregionale Verkehrsnetz: Die Autobahnen A1, A43 und A46 sind in wenigen Fahrminuten erreichbar und ermöglichen schnelle Verbindungen nach Dortmund, Bochum, Düsseldorf und Köln. Auch der öffentliche Nahverkehr ist sehr gut ausgebaut - Bus- und Bahnverbindungen sind fußläufig bequem erreichbar.
Außerdem stehen in direkter Umgebung eine Vielzahl öffentlicher Parkflächen zur Verfügung.

Gevelsberg überzeugt durch eine lebendige Innenstadt mit einem vielseitigen Einzelhandels- und Gastronomieangebot. Die Nähe zur Fußgängerzone sowie zu zahlreichen Geschäften, Ärzten, Schulen und Kindergärten macht diesen Standort besonders attraktiv. Für Gewerbetreibende und Bewohner gleichermaßen.

Darüber hinaus bietet die grüne Umgebung mit Parks, Naherholungsgebieten und Wanderwegen eine hohe Lebensqualität und vielfältige Freizeitmöglichkeiten.

Weitere Informationen

Stichworte Gesamtfläche: 130,00 m², 3 Etagen

Weitere Services

Lust auf eine Besichtigung?
Eine Frage zur Immobilie?
Mit einer persönlichen Nachricht hast du bessere Chancen auf eine Antwort.
Mit der Nutzung der oben angegebenen Telefonnummer oder durch Klicken auf „Kontaktieren“ akzeptierst Du die Allgemeinen Nutzungsbedingungen, denen Du jederzeit widersprechen kannst. Weitere Informationen zum Datenschutz

Über den Anbieter

Mittelstraße 1, 58285 Gevelsberg
partner badge
10 Jahre Partnerschaft
Herr Dennis Heidemann
Herr Dennis HeidemannDein Kontakt
Online-ID: 262XXJK8AKR5
Referenznummer: M 2353_3
Rahn Immobilien GmbH & Co.KG
title
Rahn Immobilien GmbH & Co.KG
Bewertung: 4,1 von 5 Sternen
Mit einer persönlichen Nachricht hast du bessere Chancen auf eine Antwort.
Mit der Nutzung der oben angegebenen Telefonnummer oder durch Klicken auf „Kontaktieren“ akzeptierst Du die Allgemeinen Nutzungsbedingungen, denen Du jederzeit widersprechen kannst. Weitere Informationen zum Datenschutz
Wie zufrieden bist du mit dieser Seite (nicht mit der Immobilie selbst)?