
IMMOBILIS - Immobilien- u. Sachverständigenbüro OG
Herr Benjamin Bertoldi
+43 ···
Nr. anzeigenPreise & Kosten
Provision für Käufer
3% des Kaufpreises zzgl. 20% USt.
Lage
Das Bauvorhaben befindet sich in der Katastralgemeinde Hötting im westlichen Teil von Innsbruck, genauer gesagt im Stadtteil Hötting-West / Kranebitten. Früher assoziierte man diesen Stadtteil von Innsbruck mit der Kranebitter Allee, kleinen, alten Einfamilienhäusern und so manchen unschönen Blockbauten aus den siebziger und...
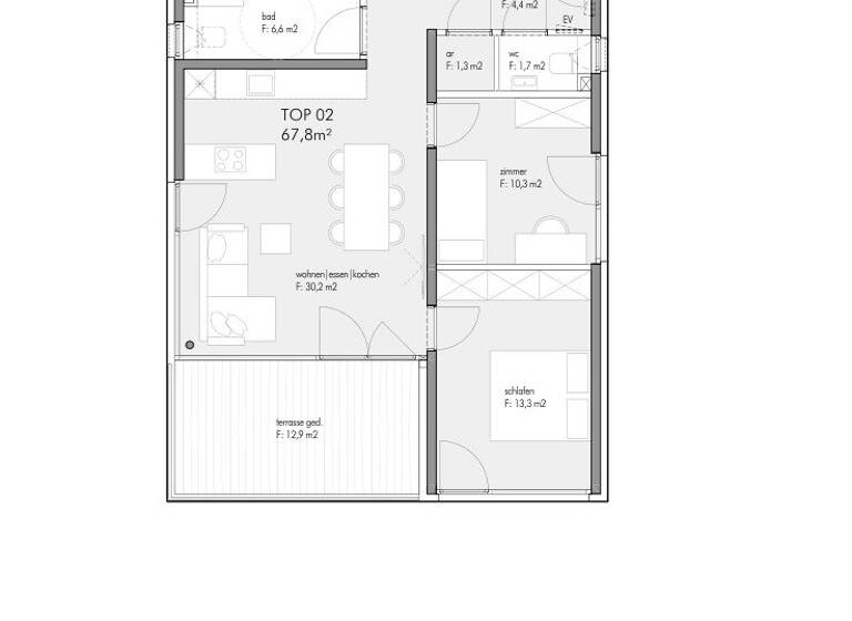
Die Wohnung
Wohnungslage
1. Geschoss
Bezug
2026
Wohnanlage
Energie & Heizung
Warum sehe ich diese Anzeige? – Du siehst diese Anzeige basierend auf Ihrer Navigation auf unserer Website und den Suchkriterien, die du verwendet hast.
Weitere Energiedaten
Energieträger
Solar
Heizungsart
Fußbodenheizung, Luft-/Wasser-Wärmepumpe, Zentralheizung
Details
Objektbeschreibung
DIE "VILLA VIOLA"
Privatsphäre, Selbstbestimmtheit und Unabhängigkeit sind nicht nur von unschätzbarem Wert, sie sind wahrer Luxus. Und zwar vor allem dann, wenn das eigene Zuhause zum Zentrum der Welt wird. Das Neubauprojekt Villa Viola in sonniger Hanglage, umgeben von sattem Grün, bietet auf 4 Ebenen ausreichend...
Preisinformation
zzgl. EUR 38.000,00 für TG-AAP, 1 Stellplatz
Weitere Informationen
Sonstiges
_Anmerkungen:_
_Es wird ausdrücklich darauf hingewiesen, dass die angeführten Texte und Formulierungen schreibgeschützt sind und eine Weiterverwendung untersagt wird. Für allfällige Irrtümer, Satz- und Druckfehler wird keine Haftung übernommen. Dasselbe gilt für jegliche Fotos._
_Die angeführten...
Anbieter der Immobilie
IMMOBILIS - Immobilien- u. Sachverständigenbüro OG
Sparkassenplatz 2/2, 6020 INNSBRUCK
Online-ID: 2k2cf5z
Referenznummer: OBGC20250805144215926f6e51599c0
Finde Angebote wie dieses
Günstige Immobilienfinanzierung einfach online berechnen
Persönliches Angebot berechnenWarum sehe ich diese Werbung? – Du siehst diese Werbung basierend auf Deiner Navigation auf unserer Website und der von Dir verwendeten Suchkriterien.
Diese Werbung wird bezahlt von durchblicker
Werbung melden
Hier geht es zu unserem Impressum, den Allgemeinen Geschäftsbedingungen, den Hinweisen zum Datenschutz und nutzungsbasierter Online-Werbung.