

Lagerhalle zur Miete • provisionsfrei4,50 €/m²828 m² Lagerfläche
4,50 €
/m²
828 m² Lagerfläche
Top Anbindung | ca. 1.000 m² Lager mit Büro in Autobahnnähe in Dresden zur Miete
Merkmale
- Bezug: in Abstimmung
- Denkmalschutz-Afa
- 10 Stellplätze: 10 Außen-Stellplätze
- LKW-Zufahrt
- Laderampe
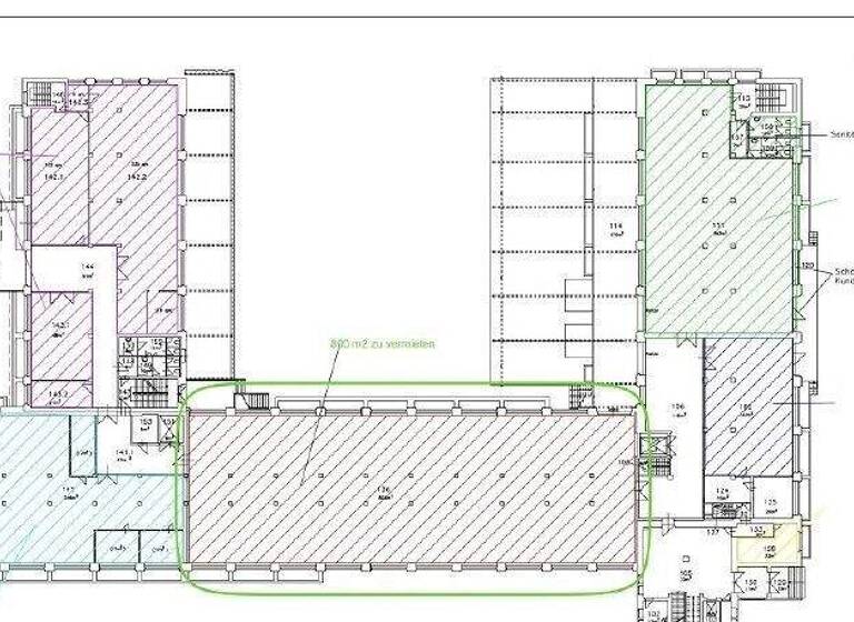
Grundrisse
Grundrisse
1 / 3
Realisiere Dein Projekt
Bausubstanz und Energie
Energieausweis
- Baujahr1953
- Zustand der ImmobilieAltbau (bis 1945)
- EnergieträgerFernwärme
Mietkosten
Monatliche Miete
4,50 €/m²
Zusätzliche Kosten
Miete pro Stellplatz
25 €
Provision für Mieter
provisionsfrei
Kaution
keine Angabe
Weitere Preisinformationen
10 Stellplätze, Miete je: 25,00 EUR
Lage

Mickten, Dresden (01139)
Der Anbieter hat die genaue Adresse nicht freigegeben
Weitere Informationen
Weitere Services
Lust auf eine Besichtigung?
Eine Frage zur Immobilie?
Über den Anbieter
Semperstr. 1, 01069 Dresden

Herr Patrick PflügnerDein Kontakt
Online-ID: 2638GY8IC8CE
Referenznummer: 100147


DER IMMO TIP Vermittlung von Immobilien GmbH
Wie zufrieden bist du mit dieser Seite (nicht mit der Immobilie selbst)?

