Version: 8.24.0Navigation überspringen
1.017 €
4 Zimmer  •  107,1 m²  •  frei ab sofort
Immowelt logo

Wohnung zur Miete
1.017 €
4 Zimmer  •  107,1 m²  •  frei ab sofort

Ausschließlich für Mieter mit einer im Haushalt lebenden Person in Betreuung/ Pflege!

Diese großzügige Vierzimmerwohnung im Hochparterre eines Mehrfamilienhauses mit insgesamt 6 Wohneinheiten bietet Ihnen ein komfortables Zuhause mit durchdachter Ausstattung und besonderem Augenmerk auf Barrierefreiheit. Die Wohnung ist nicht rollstuhlgerecht, verfügt jedoch über einen Aufzug, der den Zugang erleichtert.
Die Vermietung erfolgt ausschließlich an Mieter, die mit einer im Haushalt lebenden Person in Betreuung der Intensivpflege oder einer Person, die körperlich beeinträchtigt ist, zusammenleben. Damit soll ein Zuhause geschaffen werden, das den besonderen Bedürfnissen gerecht wird und ein barrierefreies Wohnen ermöglicht.
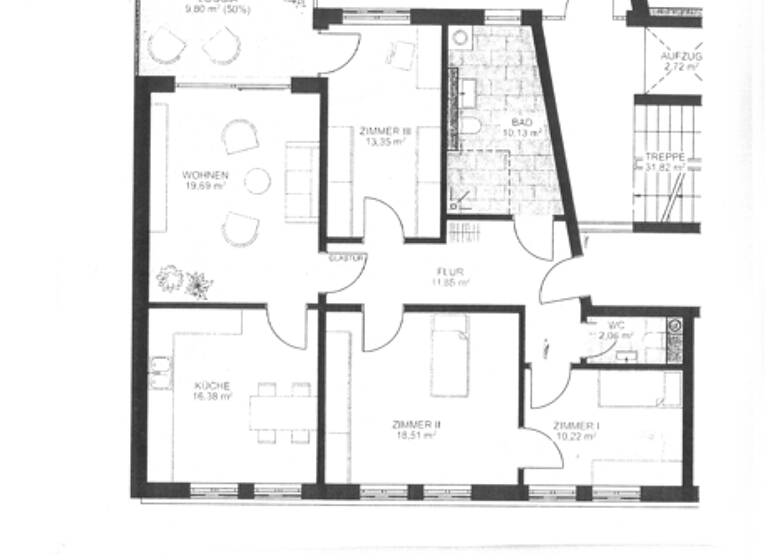
Die Wohnung verfügt über ein helles Wohnzimmer mit direktem Zutritt zur Terrasse, eine geräumige Küche, ein Schlafzimmer sowie zwei weitere Zimmer, welche als Kinder-, Arbeits- oder Gästezimmer genutzt werden können. Der Parkettboden mit Fußbodenheizung sorgt für ein angenehmes Raumklima und ein behagliches Wohngefühl. Ein Balkon lädt zum Entspannen im Freien ein und für Ihren PKW steht ein praktischer Stellplatz im Carport direkt vor der Tür zur Verfügung, der sicheren Schutz vor Witterung bietet. Ferner verfügt die Wohnung über ein schickes Tageslichtbad mit ebenerdiger großer Dusche und Waschmaschinenanschluss, auch gibt es ein separates Gäste-WC. Weiterhin gehört ein Kellerraum zur Wohnung, welcher zusätzlichen Stauraum bietet.
Sie haben Interesse und möchten weitere Informationen? Dann nutzen Sie bitte das Kontaktformular auf dieser Seite oder besuchen Sie uns in unserem Büro! Wir bitten um Ihr Verständnis, dass wir nur vollständige Kontaktanfragen mit Namen, Anschrift, Telefonnummer sowie E-Mail-Adresse beantworten können.

Merkmale

  • frei ab sofort
  • Personenaufzug
  • Carport
- barrierefrei/ nicht rollstuhlgerecht
- Parkettboden mit Fußbodenheizung
- große ebenerdige Dusche
- Waschbecken und WC höhenverstellbar
- Gäste-WC
- Terrasse
- Personenaufzug
- Keller
- Fahrradkeller
- Energieausweis in Erstellung
- maßangefertigte Plissees können bei Bedarf vom Vormieter erworben werden, Preis VB
Die Vermietung erfolgt ausschließlich an Mieter, die mit einer im Haushalt lebenden Person in Betreuung der Intensivpflege oder einer Person, die körperlich beeinträchtigt ist, zusammenleben.

Grundrisse

Grundrisse
1 / 1

Realisiere Dein Projekt

Bausubstanz und Energie

Der Anbieter hat keine Informationen zum Energieverbrauch bereit gestellt.
  • Baujahr2019
  • Zustand der ImmobilieGepflegt
  • HeizungsartFußbodenheizung
Immowelt logo

Mietkosten

Warmmiete
1.317 €
Kaltmiete
9,50 €/m²
1.017 €
Nebenkosten
150 €
Zusätzliche Kosten
Heizkosten
150 €
Miete pro Stellplatz
50 €
Kaution
3 Kaltmieten
Weitere Preisinformationen
1 Carportplatz, Miete: 50,00 EUR

Lage

address-icon
Nordhausen (99734)
Der Anbieter hat die genaue Adresse nicht freigegeben
In der wunderschönen Altstadt von Nordhausen. Kurze Wege zu Schulen, Kindergärten, Restaurants und Cafés, dem Badehaus, öffentlichen Verkehrsmitteln sowie diversen Einkaufsmöglichkeiten. Gute Verkehrsanbindung.

Weitere Informationen

Stichworte Anzahl der separaten WCs: 1

Weitere Services

Lust auf eine Besichtigung?
Eine Frage zur Immobilie?
Nachricht hinzufügen
Mit der Nutzung der oben angegebenen Telefonnummer oder durch Klicken auf „Kontaktieren“ akzeptierst Du die Allgemeinen Nutzungsbedingungen, denen Du jederzeit widersprechen kannst. Weitere Informationen zum Datenschutz

Über den Anbieter

Töpferstr. 28, 99734 Nordhausen
Frau Manuela Hardt
Frau Manuela HardtDein Kontakt
Online-ID: 2kpr957
Referenznummer: TRIGA1422
Triga Immobilien Manuela Hardt e.K.
title
Triga Immobilien Manuela Hardt e.K.
Nachricht hinzufügen
Mit der Nutzung der oben angegebenen Telefonnummer oder durch Klicken auf „Kontaktieren“ akzeptierst Du die Allgemeinen Nutzungsbedingungen, denen Du jederzeit widersprechen kannst. Weitere Informationen zum Datenschutz
Wie zufrieden bist du mit dieser Seite (nicht mit der Immobilie selbst)?