Version: 8.24.0Navigation überspringen
650.000 €
3 Zimmer  •  92 m²  •  770 m² Grundstück  •  frei ab 01.04.2026

Einfamilienhaus zum Kauf
650000 €
7.065 €/m²
3 Zimmer  •  92 m²  •  770 m² Grundstück  •  frei ab 01.04.2026

Idyllisches Haus mit zauberhaftem Garten - einziehen, erweitern oder neu gestalten

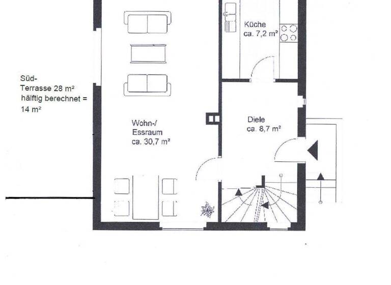
Bei dem Haus handelt es sich um ein 92 m² großes Einfamilienhaus mit Satteldach auf einem ca. 770 m² großen Eckgrundstück. Die Immobilie befindet sich in einem gepflegten Zustand und bietet die Optionen, es zu beziehen, es nach eigenen Wünschen und Bedürfnissen auszubauen und zu erweitern oder neu zu bauen. Der Garten ist zauberhaft und mit Hecken und Sträuchern eingefriedet. Das Gebäude wurde 1949 errichtet und wurde in den Jahren 2005 - 2008 und 2014 modernisiert. Es verfügt über eine Wohn- und Nutzfläche von ca. 157 m². Die Auffahrt und Zuwegung zum Haus sind gepflastert. Hier ist Platz für mind. 2 große Pkw. Ein Carport ist ebenfalls vorhanden. Das Tor an der Auffahrt lässt sich über Fernbedienung öffnen. Über den großzügigen Eingangsbereich im Erdgeschoss werden das ca. 31 qm große Wohn- und Esszimmer und die ca. 7 m² große Küche erschlossen. Vom Wohn-/ Esszimmer hat man Zugang zu der nach Süden ausgerichteten 28 m² großen Terrasse und dem Garten. Ein großer Teil der Terrasse ist hochwertig mit einer Glas-Metallkonstruktion überdacht und windgeschützt. Die übrige Terrasse verfügt über eine elektrisch bedienbare Markise. Von der Diele im Erdgeschoss führt eine gewendelte, weiße Holztreppe in das Obergeschoss und eine geflieste Betontreppe in das Kellergeschoss. Im Obergeschoß befinden sich ein 19 m² großes Schlafzimmer und ein 9 m² großes Vollbad. Die Deckenhöhen im Erdgeschoss und Obergeschoss betragen ca. 2,40 m, im OG 2,30 m und im Keller 2,20 m. Alle Räume im Keller sind gefliest. Über den ca. 8 m² großen Kellerflur gelangt man in den ca. 25 m² großen mit Tageslicht belichteten Hauptkellerraum, der direkten Zugang zum Garten hat. Im Spitzboden des Satteldaches steht eine Nutzfläche von ca. 20 m² zu Verfügung. Diese ist über eine klappbare Raumspartreppe im OG zu erreichen. Das Haus ist vollunterkellert. Die Nutzfläche im Keller beträgt insgesamt 45 m². Hier befinden sich ein ca. 25 m² großer Kellerraum mit direktem Zugang zum Garten und Tageslicht, des Weiteren ein ca. 5 m² großer Heizungsraum und ein modernes ca. 7 m² großes natürlich belichtetes Duschbad. Die Deckenhöhe im Kellergeschoss beträgt ca. 2,20 Im Garten ist auch ein Teich und Wasserbecken. Zusätzlich befinden sich am Haus noch eine mit einem Holzdach überdachte Außenfläche, die ca. 13 m² groß ist (Diese Fläche wurde nicht in Wohnfläche mit eingerechnet), ein Carport und ein Gartenhaus. Es ist folgendes Baurecht vorhanden: Bebauungsplan Lurup 51, mit Baufenster: 15 m x ca. 23,5 m, abzügl. 2,5 m Mindestabstand. Baufeld: ca. 12,5 m x 23,5 m, Lurup 51 weißt aus, dass eingeschossig + Dach gebaut werden darf. Das entspricht ca. 400 m² netto Wohnfläche. Im Umfeld- im gleichen Planrecht - wurden bereits auch Häuser mit zwei Vollgeschossen über Befreiungen baugenehmigt. Im Umfeld- im gleichen Planrecht - wurden bereits auch Häuser mit zwei Vollgeschossen über Befreiungen baugenehmigt.

Merkmale

  • frei ab 01.04.2026
  • 770 m² Grundstück
  • Einbauküche, separate Küche
  • Keller (gesamt 65 m²)
  • Carport, 3 Außen-Stellplätze, 2 Parkplätze
  • Gäste-WC
  • Garten

Grundrisse

Grundrisse
1 / 3

Realisiere Dein Projekt

Bausubstanz und Energie

Energieausweis

G
  • Baujahr1949
  • Letzte Modernisierung2014
  • Zustand der ImmobilieGepflegt
  • Haustypk.A.
  • HeizungsartZentralheizung: Heizkörper
  • EnergieträgerGas, fossile Brennstoffe
MediumRectangleTop

Preisdetails

Kaufpreis
650000 €
7.065 €/m²
Hausgeld
350 €
Provision für Käufer
Mit Abschluss eines Kaufvertrages entsteht unsererseits gegenüber dem Käufer ein Courtageanspruch von 3,57 % des Kaufpreises inkl. gesetzl. MwSt. Für den Verkäufer fällt die gleiche Provision an.
Geschätzte Gesamtkosten
721.955 €1
Kaufpreis
650.000 €
Notarkosten (1,5%)
9.750 €
Grunderwerbsteuer (5,5%)
35.750 €
Provision für Käufer (3,57%)
23.205 €
Grundbucheintrag (0,5%)
3.250 €
1Der angezeigte Wert ist eine automatisch berechnete Schätzung von immowelt.
2Bei den Angaben handelt es sich um ortsübliche Werte. Individuelle Kosten können abweichen.

Lage

address-icon
LurupHamburg (22547)
Der Anbieter hat die genaue Adresse nicht freigegeben
Lage Diese schöne Immobilie liegt im Stadtteil, Hamburg-Lurup. Im nahen Umfeld befinden sich die Elbkinder-Kita, die Grundschule Franzosenkoppel und das Goethe-Gymnasium. Diverse Einkaufsmöglichkeiten und Dienstleistungen zur Deckung des täglichen Bedarfs stehen im nahegelegenen Lurup-Center zur Verfügung. Der nahegelegene Böverspark sowie der Park am Fangdiekgraben laden zu Spaziergängen, Jogging oder Erholung ein. Der gut erreichbare Altonaer Volkspark bietet zusätzlich Raum für ausgedehnte Freizeitaktivitäten. Es sind fußläufig 2 Bushaltestellen in nur wenigen Minuten erreichbar. Franzosenkoppel mit den derzeitigen Linien 821, 21, 184, 186 und 384 und Lüdersring mit den derzeitigen Linien 21, 184, 284, 384 und 186. Diese bieten eine gute Anbindung an das HVV-Netz u.a. auch an die S-Bahn-Station Elbgaustraße.

Weitere Informationen

Vereinbarung eines Besichtigungstermins telefonisch unter 0171/ 522 14 26.

Weitere Services

Lust auf eine Besichtigung?
Eine Frage zur Immobilie?
Nachricht hinzufügen
Mit der Nutzung der oben angegebenen Telefonnummer oder durch Klicken auf „Kontaktieren“ akzeptierst Du die Allgemeinen Nutzungsbedingungen, denen Du jederzeit widersprechen kannst. Weitere Informationen zum Datenschutz

Über den Anbieter

Dörpfeldstr. 55, 22609 Hamburg
Herr Michael UeberschärDein Kontakt
Online-ID: 2nuag5g
Referenznummer: 1001
Projektentwicklung Ueberschär GmbH
Bewertung: 5 von 5 Sternen
Nachricht hinzufügen
Mit der Nutzung der oben angegebenen Telefonnummer oder durch Klicken auf „Kontaktieren“ akzeptierst Du die Allgemeinen Nutzungsbedingungen, denen Du jederzeit widersprechen kannst. Weitere Informationen zum Datenschutz
MediumRectangleTop
MediumRectangleBottom
MediumRectangleTop
Wie zufrieden bist du mit dieser Seite (nicht mit der Immobilie selbst)?