Version: 8.25.1Navigation überspringen
ohne-makler.net - Immobilien selbst vermarkten
3.500 €
6 Zimmer  •  140 m²  •  230 m² Grundstück

Stadthaus zur Miete
3.500 €
6 Zimmer  •  140 m²  •  230 m² Grundstück

Stadthaus mit/ohne Büro-/Atelier-/Praxisräumen in bester Lage

Stadthaus - eine Rarität in dieser Lage. Ideal für eine Kombination mit Büro-/Atelier-Praxisräumen mit anliegendem Stadthaus im ruhigen Innenhof des Hauses mit wunderschönen Koi-Teich und Garten-/Hoffläche zum Verweilen.

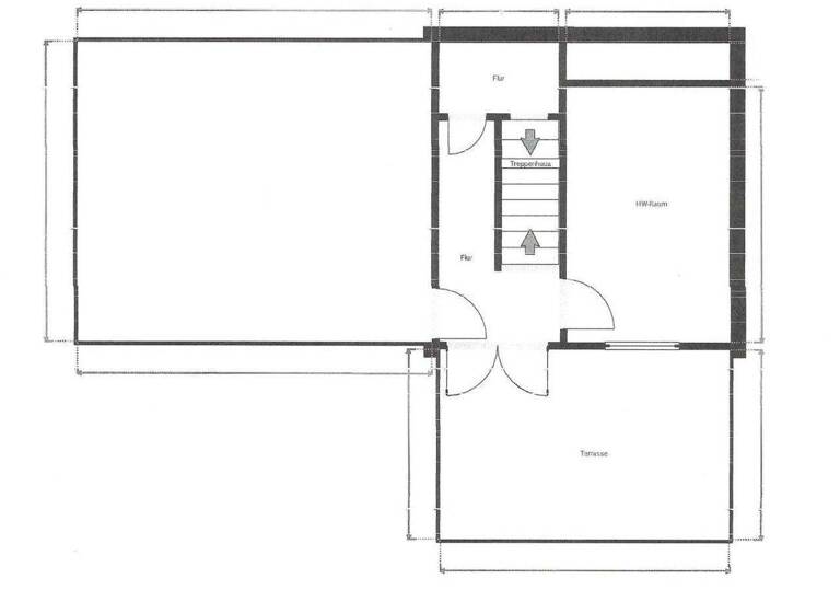
Das Stadthaus verfügt über 3 Etagen. Jede Etage verfügt über 3 Bereiche (2 Räume sowie das innenliegende Treppenhaus). Derzeit wird das Erdgeschoss als Hauswirtschaftsraum genutzt. Im 1. OG. befindet sich der Wohn- und Küchenbereich sowie die sehr große Terrasse. Im Dachgeschoss ist der Schlafbereich und das Badezimmer.

Garten-/Grünfläche: ca. 90 m²
mit einem wunderschönen Teich mit Koi-Karpfen und automatischer Fütterungsanlage/Wasserversorung

Merkmale

  • Bezug: nach Absprache
  • 230 m² Grundstück
  • Einbauküche
  • Badewanne
  • Bodenbelag: Fliesen, Parkett, Kunststoff, Teppich
  • Terrasse
Terrasse, Vollbad, Einbauküche, Parkett, Teppichboden, Fliesen

Bemerkungen:
Die Grundmiete bezieht sich ausschließlich auf das Stadthaus samt Garten-/Hofbereich.
Optional können 180 m² Nutzfläche /Büro Fläche angemietet werden (zzgl. 3600 Euro Netto Kalt)

Es sind vielfältige Nutzungen in Kombination oder auch unabhängig voneinander denkbar.

Grundrisse

Grundrisse
1 / 1

Realisiere Dein Projekt

Bausubstanz und Energie

Energieausweis

D
  • Baujahr1871
  • HeizungsartZentralheizung
  • EnergieträgerGas
MediumRectangleTop

Mietkosten

geschätzte Warmmiete
~4.073 €
Kaltmiete
25 €/m²
3.500 €
Nebenkosten
300 €
Zusätzliche Kosten
Heizkosten
Kaution
keine Angabe
Weitere Preisinformationen
Nettokaltmiete: 3.500,00 EUR

Lage

address-icon
FriedrichstadtDüsseldorf (40217)
Der Anbieter hat die genaue Adresse nicht freigegeben
Sie sind Mitten in der Stadt in einer ruhigen Seitenstraße in unmittelbarer Nähe zur Königsallee, Hafen, Altstadt und Rhein.

Sämtliche wichtigen Einkaufs- und Erholungsmöglichkeiten liegen nur ein paar Schritte entfernt. Gleiches trifft für Schulen und Kindertagesstätten zu.

Eine ideales Stadthaus mit urbanem Charme.
Infrastruktur (im Umkreis von 5 km):
Apotheke, Lebensmittel-Discount, Allgemeinmediziner, Kindergarten, Grundschule, Hauptschule, Realschule, Gymnasium, Gesamtschule, Öffentliche Verkehrsmittel

Weitere Informationen

Sonstiges Heizungsart: Zentralheizung
Energieträger: Gas


ohne-makler (OM) ist weder Anbieter noch Vermittler der Immobilie. OM betreibt eine Plattform für Immobilieneigentümer, die unter anderem die gleichzeitige Veröffentlichung einzelner Inserate auf mehreren Immobilienportalen ermöglicht. Die Inhalte dieser Inserate werden ausschließlich von Dritten verantwortet. Für die Richtigkeit, Vollständigkeit oder Rechtmäßigkeit der Angaben übernimmt OM keine Haftung. Hinweise auf mögliche Rechtsverstöße können jederzeit gemeldet werden und werden nach Prüfung umgehend bearbeitet. Stichworte Anzahl der Schlafzimmer: 2, Anzahl der Badezimmer: 1, Anzahl Terrassen: 1, Bundesland: Nordrhein-Westfalen, 2 Etagen

Weitere Services

Lust auf eine Besichtigung?
Eine Frage zur Immobilie?
Mit einer persönlichen Nachricht hast du bessere Chancen auf eine Antwort.
Mit der Nutzung der oben angegebenen Telefonnummer oder durch Klicken auf „Kontaktieren“ akzeptierst Du die Allgemeinen Nutzungsbedingungen, denen Du jederzeit widersprechen kannst. Weitere Informationen zum Datenschutz

Über den Anbieter

Humboldtstr. 25 A, 21509 Glinde
partner badge
Partnerschaft
Privat vom EigentümerDein Kontakt
Keine Telefonnummer hinterlegt
Keine Telefonnummer hinterlegt
Online-ID: 261X7W6Z51VV
Referenznummer: 433287
ohne-makler.net - Immobilien selbst vermarkten
ohne-makler.net - Immobilien selbst vermarkten
Mit einer persönlichen Nachricht hast du bessere Chancen auf eine Antwort.
Mit der Nutzung der oben angegebenen Telefonnummer oder durch Klicken auf „Kontaktieren“ akzeptierst Du die Allgemeinen Nutzungsbedingungen, denen Du jederzeit widersprechen kannst. Weitere Informationen zum Datenschutz
MediumRectangleTop
MediumRectangleBottom
MediumRectangleTop
Wie zufrieden bist du mit dieser Seite (nicht mit der Immobilie selbst)?