Ihre exklusive Eigentumswohnung befindet sich in einem sehr gepflegten und 2015 kernsanierten Mehrfamilienhaus in der Hochparterre.
Zu der Wohnung gehört noch eine Abstellkammer auf halber Treppe sowie ein Kellerabteil. Der Waschmaschinenanschluss befindet sich im Keller im Gemeinschaftseigentum.
Die Wohnung ist aktuell vermietet, eine Besichtigung kann gern mit uns vereinbart werden.
Merkmale
vermietet
Denkmalschutz-Afa
offene Küche
Badezimmer: Badewanne, Bad mit Dusche
Keller
Bodenbelag: Fliesen, Laminat
Balkon
Garten
- Hochparterre - 3 Raumwohnung - Parkettboden - Bad mit Wanne und Dusche - Balkon - elektrische Aussenrollos straßenseitig - Abstellkammer halbe Treppe - Kellerabteil
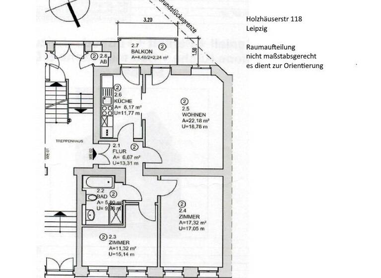
Diese lichtdurchflutete 3 Raumwohnung verfügt über eine exklusive Ausstattung und Raumaufteilung. Highlight sind die integrierten Deckenlichter in Flur und Badezimmer, sowie die straßenseitigen elektrischen Außenrollos. Wohnzimmer und Küche sind durch eine Schiebetür miteinander verbunden und ebenso gelangen Sie vom Wohnzimmer aus auf den zum Hinterhof gelegenen Balkon. Direkt vom Flur gelangen Sie dann in die zwei weiteren Wohnräume sowie in das moderne Bad mit frei stehender Wanne, bodengleicher Dusche und Lichtfenster. Eine Abstellkammer und ein Kellerabteil gehören ebenso dazu, wie der Waschmaschinenanschluss im Keller.
Die monatlichen Mieteinnahmen belaufen sich auf 650EUR Netto, das monatliche Hausgeld ab 2026 beträgt 445,35EUR (inkl. 36,84EUR Zuführung lfd. Instandhaltungsrücklagen)
Grundrisse
Grundrisse
1 / 1
Realisiere Dein Projekt
Bausubstanz und Energie
Möchtest du Details zum Energieverbrauch?
Baujahr1949
Zustand der Immobilierenoviert / saniert
HeizungsartZentralheizung
EnergieträgerGas
Preisdetails
Kaufpreis
195000 €195.000 €
2.645,86 €/m²
Hausgeld
445.35 €445,35 €
Provision für Käufer
3,57% Bei Abschluss eines Kaufvertrages wird eine Vermittlungs-/ Nachweisprovision in Höhe von 3,57 % inklusive 19 % Mehrwertsteuer auf den Kaufpreis vom Käufer fällig.
Weitere Preisinformationen
Ist-Mieteinnahmen pro Jahr: 7.800,00 EUR
Geschätzte Gesamtkosten
216.586 €1
Kaufpreis
195.000 €
Kaufnebenkosten
21.586 €
2
Notarkosten (1,5%)
2.925 €
Grunderwerbsteuer (5,5%)
10.725 €
Provision für Käufer (3,57%)
6.961 €
Grundbucheintrag (0,5%)
975 €
1Der angezeigte Wert ist eine automatisch berechnete Schätzung von immowelt.
2Bei den Angaben handelt es sich um ortsübliche Werte. Individuelle Kosten können abweichen.
Lage
Holzhäuser Str 118, Stötteritz, Leipzig (04299)
Ihre neue Wohnung befindet sich im beliebten Stadtteil Stötteritz Ostsüdlich vom Stadtzentrum entfernt. Die öffentlichen Verkehrsmittel sind in unmittelbarer Umgebung. Ebenso befinden sich alle Einkaufmöglichkeiten des täglichen Bedarfs sowie Gastronomie vor Ort. Das Stötteritzer Wäldchen lädt zum Verweilen ein und im Sommer ist es nur unweit bis zum Ostbad.
Weitere Informationen
Sonstiges
Habe ich Ihr Interesse geweckt?
Gern können Sie mit mir einen Termin vereinbaren und auch gern weitere Unterlagen abfordern. Hierzu stehe ich Ihnen per Mail unter verkauf@maklerbuero.immobilien oder auch telefonisch unter 015202001039 sehr gern zur Verfügung.
Wir werden uns zeitnah bei Ihnen melden!
Bitte haben Sie Verständnis, dass alle Angaben zur Einheit und Kaufpreis auf Auskünfte des Eigentümers bzw. Dritter beruhen und sind Änderungen vorbehalten. Für die Richtigkeit übernehmen wir keinerlei Haftung. Eine verbindliche Reservierung kann erst nach Zusage des Eigentümers bzw. Dritter erfolgen. Ein Zwischenverkauf bleibt so lange leider vorbehalten. Der Schutz Ihrer personenbezogenen Daten ist uns wichtig. Wir weisen Sie deshalb darauf hin, dass es im Zuge des Verkaufsprozesses notwendig ist, personenbezogene Daten an die jeweilige Verwaltung / Eigentümer weiterzuleiten. Eine ordnungsgemäße Löschung nach Beendigung der Tätigkeit garantieren wir Ihnen.
Energiepass
Energieausweis wird bei Besichtigung vorgelegt.
Stichworte
Anzahl der Schlafzimmer: 2, Anzahl der Badezimmer: 1, Anzahl Balkone: 1, 4 Etagen, Lage im Wohngebiet, modernisiert: 2015