
FALC Immobilien Remscheid
Frau Margarita Kwiring
+49 ···
Nr. anzeigenPreise & Kosten
Provision für Käufer
provisionsfrei
Lage
Dieses Grundstück in Gelsenkirchen überzeugt durch ihre zentrale Lage in einem gefragten neu konzipierten Stadtbereich mit zahlreichen Standortvorteilen. Die exzellente Infrastruktur ermöglicht vielfältige Nutzungsmöglichkeiten.
Bushaltestellen und eine Bahnstation sind fußläufig erreichbar, die Autobahnauffahrt und...
Das Renditeobjekt
Energie & Heizung
Warum sehe ich diese Anzeige? – Du siehst diese Anzeige basierend auf Ihrer Navigation auf unserer Website und den Suchkriterien, die du verwendet hast.
Energieausweis: für diesen Gebäudetyp nicht notwendig
Details
Objektbeschreibung
Willkommen in der Marina Graf Bismarck - Werden Sie Teil eines modernen Stadtquartiers unter dem Motto: Leben und Arbeiten zwischen Wasser und Wald.
Dieses durchdachte Immobilienprojekt bietet Investoren eine attraktive Gelegenheit für ein zukunftssicheres Engagement. Verkauft wird ein Grundstück mit Marineblick mit...
Ausstattung
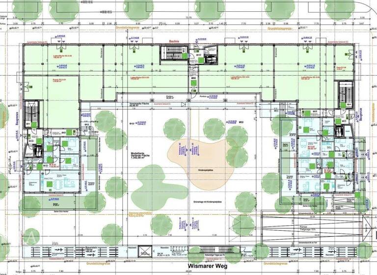
Folgende Planung liegt bereits beim Bauamt zur Baugenehmigung vor:
. U-förmiger Baukörper
. 3 Hauseingänge
. 56 Wohnungen
. 4 Praxis- und Ladenflächen im Erdgeschoss
. 4 Stockwerke
. 91 Tiefgaragenstellplätze
. ca. 10.500 m² BGF
. ca. 950 m² Gewerbefläche
. ca. 3.500 m² Wohnfläche
...
Weitere Informationen
Sonstiges
Bei Interesse kontaktieren Sie uns gern per Mail oder rufen Sie uns an.
Sie erhalten nach Ihrer Anfrage über das Portal das Exposé per E-Mail. Achten Sie dabei bitte auch auf Ihren Spam-Ordner.
Sie erhalten auf Wunsch sämtliche Genehmigungsunterlagen in einer separaten E-Mail.
Die...
Anbieter der Immobilie
Online-ID: 2mdyt5d
Referenznummer: FALC-MaKw-77658
Finde Angebote wie dieses
Hier geht es zu unserem Impressum, den Allgemeinen Geschäftsbedingungen, den Hinweisen zum Datenschutz und nutzungsbasierter Online-Werbung.