


1 / 43



1 / 43
Einfamilienhaus zum Kauf • als Kapitalanlage geeignetPreis auf Anfrage8 Zimmer • 237,3 m² • 1.485 m² Grundstück
Preis auf Anfrage
8 Zimmer • 237,3 m² • 1.485 m² Grundstück
Ehemalige Hofstelle-Firsthof-Atelier-kein Denkmalschutz-positiv bewertete Bauvoranfrage 16.11.2021 vielfältigen Möglichkeiten einer weiteren Bebauung
Merkmale
- Bezug: sofort
- 3 Geschosse
- 1.485 m² Grundstück
- Speisekammer
- Kein Keller
- Garage, Außen-Stellplatz
- Gäste-WC
- Garten
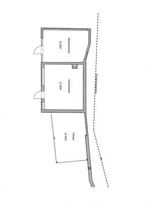
Grundrisse
Grundrisse
1 / 5
Realisiere Dein Projekt
Bausubstanz und Energie
Energieausweis
H
- Baujahr1914
- Zustand der ImmobilieAltbau (bis 1945)
- HeizungsartZentralheizung
- EnergieträgerGas, Solar
Preisdetails
Preis auf Anfrage
Provision für Käufer
Die Maklerprovision für den Käufer beträgt 3%
plus 19 % MwSt. und ist nach Abschluss des
Notarvertrags fällig. Mit den Verkäufern ist eine
Courtage in gleicher Höhe vertraglich
vereinbart.
plus 19 % MwSt. und ist nach Abschluss des
Notarvertrags fällig. Mit den Verkäufern ist eine
Courtage in gleicher Höhe vertraglich
vereinbart.
Lage

Niederneuching, Neuching (85467)
Der Anbieter hat die genaue Adresse nicht freigegeben
Das Immobilienobjekt befindet sich in einer begehrten Lage zwischen der Landeshauptstadt München und der kreisfreien Stadt Erding. In dieser ländlichen Region bieten sich viele Möglichkeiten der Naherholung zu jeder Jahreszeit.
In der Umgebung finden Sie Naherholungsgebiete, die Sie zu Fuß oder per Rad erkunden können. Ganz in der Nähe befindet sich auch die größte Therme der Welt, eine Wellness-Oase, die ebenfalls Entspannung pur bietet. Kleine umliegende Orte haben einen ganz eigenen Charme. Wichtige Einrichtungen wie der Flughafen „Franz Josef Strauß“ oder auch das Krankenhaus in Erding sind auf kurzen Wegen erreichbar. Der Golfclub München Eichenried in der Gemeinde Moosinning (Landkreis Erding) ist eine Golfanlage mit weltweitem Bekanntheitsgrad.
Laut Aussage der Eigentümer besteht keine Fluglärmbelästigung am Objektort.
Siehe Lärmkarte Flughafen.png-Wikipedia
Weitere Informationen
I N F O R M A T I O N E N
A N W E S E N – F I R S T H O F - z w. - M Ü N C H E N - u. - E R D I N G
W O H N E N - i n – e i n e m - e h e m a l i g e n – K Ü N S T L E R H A U S
W O H N E N - u n d - A R B E I T E N - g r o ß z ü g i g e s - A T E L I E R
M E H R G E N E R A T I O N E N H A U S
A N G E B O T - f ü r - B A U T R Ä G ER
K e i n - D E N K M A L S C H U T Z
Das Immobilienobjekt wird auf dem freien Immobilienmarkt zum Verkauf angeboten. Wir freuen uns auf Ihre Anfragen und Angebote.
Es liegt ein Wertgutachten in der Höhe von 1.940.000 Euro vor.
Das Immobilienobjekt ist innerörtlich in dem kleinen idyllischen Ort Neuching nordöstlich zwischen der Landeshauptstadt München u. Erding in einer ländlichen Region zu finden.
Das Grundstück verfügt über eine Größe von ca. 1.485 m² mit Altbestand.
Am 16.11.2021 wurde die Erteilung einer Bauvoranfrage v. 02.11.2021 für einen Dreispänner mit Stellplätzen im gemeindlichen Einvernehmen in Aussicht gestellt!
Entsprechende Planungsvorschläge liegen bereits vor !
Ideale Voraussetzungen Ihre eigenen Wohnideen zu verwirklichen!
Ein Angebot für attraktive Gestaltungsmöglichkeiten!
Aufgrund der ruhigen u. guten Lage in Neuching handelt es sich um ein interessantes Immobilienobjekt für Bauträger, Eigennutzer u. Kapitalanleger.
Die Pläne im Rahmen der Bauvoranfrage sind reine Machbarkeitsstudien.
Vorschläge eines namhaften Architekten für eine weitere individuelle Bebauung des Grundstückes liegen bereits vor ! Dreispänner !
Haus 1 : ca.123m² Wfl.
Haus 2 : ca.135m² Wfl.
Haus 3 : ca. 128m² Wfl.
Es besteht kein D E N K M A L S C H U TZ !
Sie haben hier die Möglichkeit Ihre eigene W o h l f ü h l o a s e zu gestalten.
Bei einer Besichtigung können Sie Einsicht in die bereits vorhandene Planung nehmen !
Bebaut ist das Grundstück mit einer älteren, freistehenden, nicht unterkellerten ehemaligen Hofstelle / Firsthof / Beim Eun / erste Erwähnung im Jahr 1578.
Mit einer Wohnfläche von ca. 237,30m², einer Nutzfläche von ca. 31,40m² und einem trockenem Dachboden-Speicher mit einer Fläche von ca.138m² (nicht ausgebaut) bietet das Haupthaus eine e n o r m e P l a t z v i e l f a l t.
Innerhalb des Gebäudes ist heute eine PKW-Einzelgarage integriert.
Es sei nochmals erwähnt, bei dem Gebäude handelt es sich um eine ehemalige HofsteIle, einem Haupthaus, mit einem Erdgeschoss, einem Obergeschoss und einem nicht ausgebauten Dachgeschoss.
Des Weiteren befindet sich auf dem Grundstück ein Nebengebäude bestehend aus zwei Werkstatträumen im Erdgeschoss,einem geschlossenen Bereich von ca.71,80m² und einem offenen Anbau / Freisitz von ca. 34,00m².
Die Gewerbeflächen im Haupthaus betragen mom. ca.93,50 m² und im Nebengebäude ca.85,50 m².
Aufgrund der heutigen Gegebenheiten, der Größe, der früheren Nutzung
haben Sie viele Möglichkeiten einer individuellen Nutzung u. Gestaltung des Anwesens / Grundstückes.
Es besteht kein Zwang, die zuletzt gewerblichen Flächen, auch in diesem Rahmen zu nützen. Das gesamte Anwesen kann auch sehr gut nur zu privaten Zwecken bewohnt werden.
Bei dem Immobilienobjekt, ursprünglich etwa 1578 erwähnt, handelt es sich um eine ehemalige Hofstelle (Firsthof).
Die Hofstelle / Firsthof ist ein Teil eines „Zweier Ensembles“ bestehend mit einem Haupthaus / Werkstatt / Atelier. Im Jahr 1958 wurde das Anwesn von den früheren Eigentümern, einem Künstler Ehepaar, den Eltern, der heutigen zwei Besitzer erworben und in den 1960/70er Jahren durchgreifend umgebaut und modernisiert.
Wohnen und Arbeiten war die Devise!
Es entstanden im EG ein großzügiger heller Atelierraum im Haupthaus und im OG ein Lagerraum/Büro.
Im Nebengebäude fand die eigene Kunstgieserei ihren Platz.
Der Freisitz wurde zu Ausstellungszwecken genutzt..
Der östliche Bereich des Grundstücks ist nicht bebaut.
Hier besteht gemäß Angabe der zuständigen Behörden u. der Eigentümer die Möglichkeit einer weiteren baulichen Nutzung.
Kreativität ist hier gefragt!
Das Grundstück ist im Flächennutzungsplan der Gemeinde als Dorfgebiet (MD) dargestellt. Das Grundstück liegt nicht im Geltungsbereich eines Bebauungsplanes. Die zulässige Bebaubarkeit ergibt sich nach § 34 BauGB (Zulässigkeit von Vorhaben innerhalb der im Zusammenhang bebauten Ortsteile) und richtet sich nach der vorhandenen Umgebungsbebauung.
Das Grundstück ist von dem westlichen Bereich aus zugängig.
Die maximal mögliche bauliche Nutzung des Grundstücks ist durch die derzeit vorhandene Bebauung mit einer Geschossflächenzahl (WGFZ) von ca. 0,45 (noch) nicht ausgeschöpft.
Das besondere H i g h l i g h t galt der Nutzung/Gestaltung des Anwesens, dem großzügigen Garten, mit einem prachtvollen alten Baumbestand.
Die Handschriften der früheren Eigentümer prägen noch heute das gesamte Anwesen und machen es gerade dadurch erst „wertvoll und wertbeständig“.
Wohnfläche/Nutzfläche Hauptgebäude: ( nicht unterkellert )
Wohnfläche Hauptgebäude ca.237,30m²
Nutzfläche ca.31,40m²
1 KFZ-Stellplatz / Einzelgarage (elektr. Garagentor) im Haus integriert.
Dachboden-Speicher ca.138,00m² (nicht ausgebaut).
Gewerbefläche / Haupthaus ca. 93,50m² (individuelle Nutzung möglich)
Werkstatt / Atelier /Arbeitsraum / Lager
Gewerbefläche / Nebengebäude: ca. 85,50m² ( nicht unterkellert -individuelle Nutzung möglich)
EG geschlossener Bereich ca. 68,50m²
Offener-Bereich ca. 34,00m² (1/2 ca. 17,00m²) Besichtigungstermine Im Rahmen eines Maklervertrages laden wir Sie gerne zu einem individuellen Besichtigungstermin ein, bei dem Sie sich über die Vorzüge dieses Anwesens, einer ehemaligen Hofstelle(Firsthof) und einem dazugehörigen innerhalb des Anwesens gelegenem Baugrundstückes in einer schönen Gegend im südwestlichen Landkreis Erding überzeugen können.
A c h t u n g:
B e s i c h t i g u n g e n auch an Sonn-Feiertagen nach Absprache möglich!
Wir bitten um Ihr Verständnis, dass wir nur Anfragen mit vollständig ausgefüllten Kontakt- und Adressdaten beantworten können.
Wir freuen uns auf Ihre Kontaktaufnahme.
Wir suchen den persönlichen Kontakt zu unseren Kunden.
* * * * * Wir führen nur Einzelbesichtigungen durch ! * * * * *
* * * * * Diskretion wird geboten und auch erwartet ! * * * * *
Alle Angaben stammen vom Verkäufer oder von Dritten. Die Firma Eisheuer-Scharrer Wohnbau GmbH & Co KG haftet nicht für fehlerhafte Angaben.
Irrtum und Zwischenverkauf vorbehalten.
Eine Expose‘-Haftung wird ausgeschlossen. Ferner haftet die Firma Eisheuer-Scharrer Wohnbau GmbH & Co KG nicht für Irrtümer in der Beschreibung, Erschließungsgrad, Wohn und Nutzflächenberechnung, Verwertbarkeit, Beschaffenheit, gewerbliche, steuerliche und baurechtliche Fragen. Alle Maß-Angaben sind ca.-Angaben und vor Ort zu überprüfen.
Alle Bilder sind urheberechtlich geschützt und dürfen nicht anderweitig genutzt werden! Stichworte Zustand: renoviert, renovierungsbedürftig, sanierungsbedürftig Sonstiges/Wohnen: Dachboden
A N W E S E N – F I R S T H O F - z w. - M Ü N C H E N - u. - E R D I N G
W O H N E N - i n – e i n e m - e h e m a l i g e n – K Ü N S T L E R H A U S
W O H N E N - u n d - A R B E I T E N - g r o ß z ü g i g e s - A T E L I E R
M E H R G E N E R A T I O N E N H A U S
A N G E B O T - f ü r - B A U T R Ä G ER
K e i n - D E N K M A L S C H U T Z
Das Immobilienobjekt wird auf dem freien Immobilienmarkt zum Verkauf angeboten. Wir freuen uns auf Ihre Anfragen und Angebote.
Es liegt ein Wertgutachten in der Höhe von 1.940.000 Euro vor.
Das Immobilienobjekt ist innerörtlich in dem kleinen idyllischen Ort Neuching nordöstlich zwischen der Landeshauptstadt München u. Erding in einer ländlichen Region zu finden.
Das Grundstück verfügt über eine Größe von ca. 1.485 m² mit Altbestand.
Am 16.11.2021 wurde die Erteilung einer Bauvoranfrage v. 02.11.2021 für einen Dreispänner mit Stellplätzen im gemeindlichen Einvernehmen in Aussicht gestellt!
Entsprechende Planungsvorschläge liegen bereits vor !
Ideale Voraussetzungen Ihre eigenen Wohnideen zu verwirklichen!
Ein Angebot für attraktive Gestaltungsmöglichkeiten!
Aufgrund der ruhigen u. guten Lage in Neuching handelt es sich um ein interessantes Immobilienobjekt für Bauträger, Eigennutzer u. Kapitalanleger.
Die Pläne im Rahmen der Bauvoranfrage sind reine Machbarkeitsstudien.
Vorschläge eines namhaften Architekten für eine weitere individuelle Bebauung des Grundstückes liegen bereits vor ! Dreispänner !
Haus 1 : ca.123m² Wfl.
Haus 2 : ca.135m² Wfl.
Haus 3 : ca. 128m² Wfl.
Es besteht kein D E N K M A L S C H U TZ !
Sie haben hier die Möglichkeit Ihre eigene W o h l f ü h l o a s e zu gestalten.
Bei einer Besichtigung können Sie Einsicht in die bereits vorhandene Planung nehmen !
Bebaut ist das Grundstück mit einer älteren, freistehenden, nicht unterkellerten ehemaligen Hofstelle / Firsthof / Beim Eun / erste Erwähnung im Jahr 1578.
Mit einer Wohnfläche von ca. 237,30m², einer Nutzfläche von ca. 31,40m² und einem trockenem Dachboden-Speicher mit einer Fläche von ca.138m² (nicht ausgebaut) bietet das Haupthaus eine e n o r m e P l a t z v i e l f a l t.
Innerhalb des Gebäudes ist heute eine PKW-Einzelgarage integriert.
Es sei nochmals erwähnt, bei dem Gebäude handelt es sich um eine ehemalige HofsteIle, einem Haupthaus, mit einem Erdgeschoss, einem Obergeschoss und einem nicht ausgebauten Dachgeschoss.
Des Weiteren befindet sich auf dem Grundstück ein Nebengebäude bestehend aus zwei Werkstatträumen im Erdgeschoss,einem geschlossenen Bereich von ca.71,80m² und einem offenen Anbau / Freisitz von ca. 34,00m².
Die Gewerbeflächen im Haupthaus betragen mom. ca.93,50 m² und im Nebengebäude ca.85,50 m².
Aufgrund der heutigen Gegebenheiten, der Größe, der früheren Nutzung
haben Sie viele Möglichkeiten einer individuellen Nutzung u. Gestaltung des Anwesens / Grundstückes.
Es besteht kein Zwang, die zuletzt gewerblichen Flächen, auch in diesem Rahmen zu nützen. Das gesamte Anwesen kann auch sehr gut nur zu privaten Zwecken bewohnt werden.
Bei dem Immobilienobjekt, ursprünglich etwa 1578 erwähnt, handelt es sich um eine ehemalige Hofstelle (Firsthof).
Die Hofstelle / Firsthof ist ein Teil eines „Zweier Ensembles“ bestehend mit einem Haupthaus / Werkstatt / Atelier. Im Jahr 1958 wurde das Anwesn von den früheren Eigentümern, einem Künstler Ehepaar, den Eltern, der heutigen zwei Besitzer erworben und in den 1960/70er Jahren durchgreifend umgebaut und modernisiert.
Wohnen und Arbeiten war die Devise!
Es entstanden im EG ein großzügiger heller Atelierraum im Haupthaus und im OG ein Lagerraum/Büro.
Im Nebengebäude fand die eigene Kunstgieserei ihren Platz.
Der Freisitz wurde zu Ausstellungszwecken genutzt..
Der östliche Bereich des Grundstücks ist nicht bebaut.
Hier besteht gemäß Angabe der zuständigen Behörden u. der Eigentümer die Möglichkeit einer weiteren baulichen Nutzung.
Kreativität ist hier gefragt!
Das Grundstück ist im Flächennutzungsplan der Gemeinde als Dorfgebiet (MD) dargestellt. Das Grundstück liegt nicht im Geltungsbereich eines Bebauungsplanes. Die zulässige Bebaubarkeit ergibt sich nach § 34 BauGB (Zulässigkeit von Vorhaben innerhalb der im Zusammenhang bebauten Ortsteile) und richtet sich nach der vorhandenen Umgebungsbebauung.
Das Grundstück ist von dem westlichen Bereich aus zugängig.
Die maximal mögliche bauliche Nutzung des Grundstücks ist durch die derzeit vorhandene Bebauung mit einer Geschossflächenzahl (WGFZ) von ca. 0,45 (noch) nicht ausgeschöpft.
Das besondere H i g h l i g h t galt der Nutzung/Gestaltung des Anwesens, dem großzügigen Garten, mit einem prachtvollen alten Baumbestand.
Die Handschriften der früheren Eigentümer prägen noch heute das gesamte Anwesen und machen es gerade dadurch erst „wertvoll und wertbeständig“.
Wohnfläche/Nutzfläche Hauptgebäude: ( nicht unterkellert )
Wohnfläche Hauptgebäude ca.237,30m²
Nutzfläche ca.31,40m²
1 KFZ-Stellplatz / Einzelgarage (elektr. Garagentor) im Haus integriert.
Dachboden-Speicher ca.138,00m² (nicht ausgebaut).
Gewerbefläche / Haupthaus ca. 93,50m² (individuelle Nutzung möglich)
Werkstatt / Atelier /Arbeitsraum / Lager
Gewerbefläche / Nebengebäude: ca. 85,50m² ( nicht unterkellert -individuelle Nutzung möglich)
EG geschlossener Bereich ca. 68,50m²
Offener-Bereich ca. 34,00m² (1/2 ca. 17,00m²) Besichtigungstermine Im Rahmen eines Maklervertrages laden wir Sie gerne zu einem individuellen Besichtigungstermin ein, bei dem Sie sich über die Vorzüge dieses Anwesens, einer ehemaligen Hofstelle(Firsthof) und einem dazugehörigen innerhalb des Anwesens gelegenem Baugrundstückes in einer schönen Gegend im südwestlichen Landkreis Erding überzeugen können.
A c h t u n g:
B e s i c h t i g u n g e n auch an Sonn-Feiertagen nach Absprache möglich!
Wir bitten um Ihr Verständnis, dass wir nur Anfragen mit vollständig ausgefüllten Kontakt- und Adressdaten beantworten können.
Wir freuen uns auf Ihre Kontaktaufnahme.
Wir suchen den persönlichen Kontakt zu unseren Kunden.
* * * * * Wir führen nur Einzelbesichtigungen durch ! * * * * *
* * * * * Diskretion wird geboten und auch erwartet ! * * * * *
Alle Angaben stammen vom Verkäufer oder von Dritten. Die Firma Eisheuer-Scharrer Wohnbau GmbH & Co KG haftet nicht für fehlerhafte Angaben.
Irrtum und Zwischenverkauf vorbehalten.
Eine Expose‘-Haftung wird ausgeschlossen. Ferner haftet die Firma Eisheuer-Scharrer Wohnbau GmbH & Co KG nicht für Irrtümer in der Beschreibung, Erschließungsgrad, Wohn und Nutzflächenberechnung, Verwertbarkeit, Beschaffenheit, gewerbliche, steuerliche und baurechtliche Fragen. Alle Maß-Angaben sind ca.-Angaben und vor Ort zu überprüfen.
Alle Bilder sind urheberechtlich geschützt und dürfen nicht anderweitig genutzt werden! Stichworte Zustand: renoviert, renovierungsbedürftig, sanierungsbedürftig Sonstiges/Wohnen: Dachboden
Weitere Services
Lust auf eine Besichtigung?
Eine Frage zur Immobilie?
Über den Anbieter
Eisheuer-Scharrer Wohnbau GmbH & Co KGMaklerbüro
Waldstraße 28, 83132 Pittenhart
Partnerschaft
Frau Gertrud Katharina Eisheuer-ScharrerDein Kontakt
Online-ID: 22tca5v

Eisheuer-Scharrer Wohnbau GmbH & Co KG
4,9/5Bewertung: 4,9 von 5 Sternen
Wie zufrieden bist du mit dieser Seite (nicht mit der Immobilie selbst)?