Das 4-geschossige Bürogebäude ist vielfältig nutzbar und flexibel zu gliedern. Alle Varianten vom traditionellen Einzelbüro bis zum Kombi- und Großraumbüro sind realisierbar. Kommunikation und Teamwork können ebenso problemlos stattfinden, wie Rückzug und individuelles Arbeiten. Alle Büroarbeitsplätze haben einen gleichwertigen direkten Sichtbezug ins Freie und sind natürlich belichtet und belüftet. Parkplätze sind auf dem Grundstück in ausreichender Stückzahl vorhanden.
Merkmale
Bezug: kurzfristig
4. Geschoss
- Eingangshalle normaler Bereich - Sonnenschutz manuell, innenliegend - Doppelverglasung
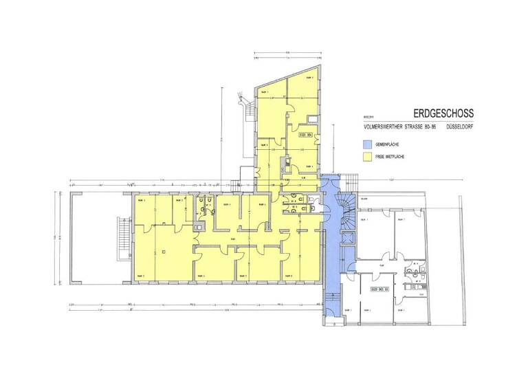
Grundrisse
Grundrisse
1 / 2
Realisiere Dein Projekt
Bausubstanz und Energie
Der Anbieter hat keine Informationen zu Energieverbrauch oder Zustand der Immobilie bereit gestellt.
Mietkosten
Monatliche Miete
7,80 €/m²
Provision für Mieter
Provisionspflichtig
Kaution
keine Angabe
Lage
Bilk, Düsseldorf (40221)
Der Anbieter hat die genaue Adresse nicht freigegeben
Düsseldorf-Unterbilk; Volmerswerther Straße, eine Seiten-straße der Völklinger Straße; Haltestellen öffentlicher Ver-kehrsmittel in unmittelbarer Nähe des Objektes, hervor-ragende Verkehrsanbindung an die Autobahnanschlüsse A 46, A 52 und A 57.
Weitere Informationen
Stichworte
Gesamtfläche: 264,00 m², Bundesland: Nordrhein-Westfalen, Distanz zur nächsten Einkaufsmöglichkeit: 5.00, Distanz zur nächsten Gaststätte: 5.00