

Wohnung zum Kauf - Erstbezug233000 €3.563 €/m²2 Zimmer • 65,4 m² • 1. Geschoss
233000 €
3.563 €/m²
2 Zimmer • 65,4 m² • 1. Geschoss
Drinnen kompakt, draußen großzügig - 2-Zimmer mit Wohlfühlbalkon
Merkmale
- 1. Geschoss
- Personenaufzug
- Balkon
- 2 Stellplätze: 2 Außen-Stellplätze
- voll klimatisiert
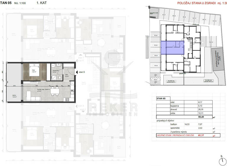
Grundrisse
Grundrisse
1 / 1
Realisiere Dein Projekt
Bausubstanz und Energie
Möchtest du Details zum Energieverbrauch?

- Baujahr2026
- Zustand der ImmobilieErstbezug
- HeizungsartFußbodenheizung
Preisdetails
Kaufpreis
233000 €
3.562,69 €/m²
Provision für Käufer
3,75 % inkl. MwSt. in Kroatien
Weitere Preisinformationen
2 Stellplätze
Lage

Tar (52440)
Der Anbieter hat die genaue Adresse nicht freigegeben
Weitere Informationen
Weitere Services
Lust auf eine Besichtigung?
Eine Frage zur Immobilie?
Über den Anbieter
Micin Stanka 28 A, 22211 Vodice
Partnerschaft

Herr Heiner RekerDein Kontakt
Online-ID: 25C7BHECGBIX
Referenznummer: 8711


Reker Immobilien Doo
Bewertung: 4,8 von 5 Sternen
Wie zufrieden bist du mit dieser Seite (nicht mit der Immobilie selbst)?

