Version: 8.24.0Navigation ĂĽberspringen
970.000 €
983 m² Lagerfläche
Immowelt logo

Produktionshalle zum Kauf
970000 €
983 m² Lagerfläche

Produktionsimmobilie zu verkaufen - Bozen Nord

Castellanum bietet eine groĂźzĂĽgige Gewerbeimmobilie mit Produktions- und Dienstleistungsnutzung in strategischer Lage im Industriegebiet Bozen Nord zum Verkauf an, nur wenige Minuten vom historischen Stadtzentrum entfernt und mit hervorragender Sichtbarkeit sowie optimaler Verkehrsanbindung (S12 und A22).

Das im Jahr 1980 errichtete Objekt erstreckt sich ĂĽber drei funktionale Ebenen, die ĂĽber einen internen Lastenaufzug zur exklusiven Nutzung verbunden sind:

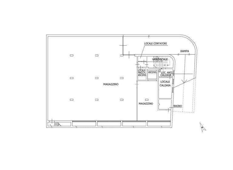
Untergeschoss (ca. 330 m² - h ca. 3,00 m): Lagerfläche mit 2 Toren und bequemer Zufahrt für Lieferfahrzeuge über eine separate Außenrampe.
Erdgeschoss (ca. 380 m² - h ca. 3,40 m): Werkstatt/Labor mit Lager und Sanitäranlagen. Derzeit als Open Space konzipiert und daher flexibel teilbar.
1. Obergeschoss (ca. 214 m² - h ca. 3,00 m): Büro- und Laborflächen mit Zugang zu einer ca. 80 m² großen Terrasse, ideal als ergänzende Außenfläche.

Außerdem stehen 4 Autoabstellplätze im gemeinschaftlichen Hof zur exklusiven Nutzung zur Verfügung. Zusätzlich können 2 weitere Stellplätze sowie ein Büro mit 97 m² im 1. Obergeschoss zum Aufpreis von 180.000,00 € erworben werden.

Ausstattung und technische Merkmale:
-Autonome Gasheizung (Methangas) mit separatem Technikraum
-Elektrische Rollläden im Erdgeschoss
-Vollständige Beleuchtungsanlage
-Sanitäranlagen im Erdgeschoss kürzlich renoviert

Dank seiner Vielseitigkeit, großzügigen Flächen und strategischen Lage stellt diese Immobilie die ideale Lösung für Unternehmen dar, die Produktions-, Lager- und Büroflächen mit optimaler Verkehrsanbindung in Bozen suchen.

Merkmale

  • Bezug: sofort
  • Lastenaufzug
  • Keller
  • voll klimatisiert
  • Bodenbelag: Kunststoff

Grundrisse

Grundrisse
1 / 3

Realisiere Dein Projekt

Bausubstanz und Energie

Der Anbieter hat keine Informationen zum Energieverbrauch bereit gestellt.
  • Baujahr1980
Immowelt logo

Preisdetails

Kaufpreis
970000 €
Provision für Käufer
3% zzgl. MwSt.

Lage

address-icon
Via Mayr Nusser 58, Bolzano (39100)

Weitere Informationen

Stichworte Rolladen, Nutzfläche: 983,00 m², Verkaufsfläche: 983,00 m², Anzahl der separaten WCs: 4, 3 Etagen

Weitere Services

Lust auf eine Besichtigung?
Eine Frage zur Immobilie?
Nachricht hinzufĂĽgen
Mit der Nutzung der oben angegebenen Telefonnummer oder durch Klicken auf „Kontaktieren“ akzeptierst Du die Allgemeinen Nutzungsbedingungen, denen Du jederzeit widersprechen kannst. Weitere Informationen zum Datenschutz

Ăśber den Anbieter

Castellanum
CastellanumMaklerbĂĽro
Trattengasse 7, 37042 Brixen (BZ)
partner badge
6 Jahre Partnerschaft
Firma Castellanum Bozen - BolzanoDein Kontakt
Online-ID: 2n5m85p
Referenznummer: BZ13374_3
Castellanum
Castellanum
Nachricht hinzufĂĽgen
Mit der Nutzung der oben angegebenen Telefonnummer oder durch Klicken auf „Kontaktieren“ akzeptierst Du die Allgemeinen Nutzungsbedingungen, denen Du jederzeit widersprechen kannst. Weitere Informationen zum Datenschutz
Wie zufrieden bist du mit dieser Seite (nicht mit der Immobilie selbst)?