Version: 8.26.0Navigation überspringen
Stiftung Friedrich Wilhelm & Monika Kertz
Mietkosten auf Anfrage
412,1 m²

Sonstiges zur Miete • provisionsfrei
Mietkosten auf Anfrage
412,1 m²

Lager- oder Gewerbefläche zum Eigenausbau im historischen Gebäudekomplex direkt Am Schloss zu Ahrensburg

Merkmale

  • frei ab 01.10.2026

Grundrisse

Grundrisse
1 / 1

Bausubstanz und Energie

Energieausweis

Ein Energieausweis ist für diesen Gebäudetyp nicht notwendig.
  • Baujahr1900
MediumRectangleTop

Mietkosten

Miete auf Anfrage
Provision für Mieter
provisionsfrei; direkt vom Eigentümer
Kaution
3 Nettomieten
Weitere Preisinformationen
nach Rücksprache

Lage

address-icon
Lübecker Straße 6Ahrensburg (22926)
Die angebotene Gewerbefläche befindet sich in einem außergewöhnlichen Umfeld auf dem alten Gutsgelände zu Schloss Ahrensburg, unweit des bekannten Schlosses Ahrensburg.

Dieser Standort verbindet historischen Charakter mit einer repräsentativen Adresse und bietet ein besonderes Umfeld für Unternehmen, Praxen, Dienstleister oder hochwertige Büro- und Geschäftsnutzungen. Schloss Ahrensburg prägt seit mehr als 400 Jahren das Stadtbild und zählt zu den bedeutenden Wahrzeichen der Stadt

Das Umfeld rund um das Schloss ist von historischer Architektur, gepflegten Grünanlagen und einem unverwechselbaren kulturellen Flair geprägt. Schlosskirche, Marstall, Schlosspark und die gewachsene Struktur des ehemaligen Gutsbereichs verleihen dem Standort eine besondere Identität.

Gerade für Gewerbenutzer, die Wert auf ein stilvolles, markantes und repräsentatives Umfeld legen, bietet diese Lage ein attraktives Gesamtbild mit hoher Wiedererkennbarkeit.

Weitere Informationen

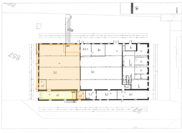
Angebotene Mietfläche Die angebotene Fläche befindet sich im Erdgeschoss eines historischen, unter Denkmalschutz stehenden Kutschen- und Pferdespeichers auf dem ehemaligen Gutshofgelände am Schloss Ahrensburg. Das Gebäude zeichnet sich durch seinen besonderen historischen Charakter aus und vermittelt ein außergewöhnliches Ambiente mit authentischer Bausubstanz.

Die Räumlichkeiten sind geprägt von sichtbarem Backsteinmauerwerk, historischen T-Trägern sowie markanten Stützen und Säulen, die den ursprünglichen Charakter des Gebäudes eindrucksvoll unterstreichen. Dadurch eignet sich die Fläche insbesondere für Nutzer, die ein besonderes, geschichtsträchtiges Umfeld mit unverwechselbarer Ausstrahlung schätzen.

Die Fläche kann in ihrem derzeitigen Zustand beispielsweise als Lagerfläche genutzt werden. Darüber hinaus besteht die Möglichkeit, die Fläche in Abstimmung mit dem Vermieter und vorbehaltlich der jeweiligen öffentlich-rechtlichen Voraussetzungen eigenständig auszubauen und einer anderen Nutzung zuzuführen. Die konkrete Nutzung ist in jedem Fall vorab mit dem Eigentümer abzustimmen.

Zu berücksichtigen ist, dass sich die Fläche innerhalb des Sanierungsplans Schloss Ahrensburg befindet. Etwaige bauliche Maßnahmen, Nutzungsänderungen oder Anpassungen sind daher unter Berücksichtigung der denkmalschutzrechtlichen und sanierungsrechtlichen Vorgaben zu prüfen.

Der Zugang zur Fläche erfolgt über zwei separate Eingänge sowohl von der Giebelseite als auch von der Innenhofseite, wodurch eine flexible Erreichbarkeit gewährleistet ist. Zusätzlich besteht die Möglichkeit, eine weitere Fläche mit Toreinfahrt an der Giebelseite anzumieten, wodurch sich insbesondere für Lager-, Anlieferungs- oder logistische Zwecke zusätzliche Nutzungsmöglichkeiten ergeben. Direktes Umfeld Das direkte Umfeld der Gewerbefläche ist durch den historischen Charakter des ehemaligen Gutshofensembles sowie eine geordnete und funktionale Erschließung geprägt. Der befahrbare Innenhof ist durch eine moderne automatische Schrankenanlage gesichert und bietet damit ein kontrolliertes und zugleich komfortables Zugangssystem.

Die Bedienung der Schranke kann bequem über eine Klingelanlage erfolgen. Hierfür besteht die Möglichkeit, die Zufahrt entweder über den Telefon-Hausanschluss oder alternativ über ein Mobiltelefon zu steuern. So wird eine zeitgemäße und praktikable Lösung für Nutzer, Besucher und Anlieferungen geschaffen.

Zusätzlich besteht die Möglichkeit, Stellplätze zur Nutzung innerhalb der Geschäftszeiten auf Grundlage eines separaten Stellplatznutzungsvertrages anzumieten. Dies bietet einen weiteren praktischen Vorteil für gewerbliche Nutzer und unterstützt eine flexible Nutzung der Fläche im täglichen Geschäftsbetrieb.

Die Kombination aus historischem Ambiente, gesichertem Innenhof und moderner Zugangstechnik verleiht dem Standort eine besondere Qualität und schafft ein attraktives Umfeld für unterschiedliche gewerbliche Nutzungskonzepte. Unsere Öffnungszeiten Bitte kontaktieren Sie uns zu unseren Öffnungszeiten:

Mo-Do: 08:00 - 12:00 und 13:00 - 17:00 Uhr sowie
Freitag: 08:00 - 12:00 und 13:00 - 13:30 Uhr Stichworte Bundesland: Schleswig-Holstein
Stadt: Ahrensburg
Umland: Hamburg

Weitere Services

Lust auf eine Besichtigung?
Eine Frage zur Immobilie?
Mit einer persönlichen Nachricht hast du bessere Chancen auf eine Antwort.
Mit der Nutzung der oben angegebenen Telefonnummer oder durch Klicken auf „Kontaktieren“ akzeptierst Du die Allgemeinen Nutzungsbedingungen, denen Du jederzeit widersprechen kannst. Weitere Informationen zum Datenschutz

Über den Anbieter

Lübecker Str. 2a, 22926 Ahrensburg
Firma Stiftung Friedrich Wilhelm und Monika Kertz
Firma Stiftung Friedrich Wilhelm und Monika KertzDein Kontakt
Keine Telefonnummer hinterlegt
Keine Telefonnummer hinterlegt

Weitere Unterlagen

Online-ID: 23JJAV9E2DQJ
Referenznummer: 102 004 2026 1
MediumRectangleTop
Wie zufrieden bist du mit dieser Seite (nicht mit der Immobilie selbst)?