Version: 8.22.4Navigation überspringen
150.282 €
683,1 m² Grundstück
Immowelt logo

Grundstück zum Kauf
150282 €
220 €/m²
683,1 m² Grundstück

SPITZEN Grundstück vollerschlossen mit hoher Bebauungsdichte - ca. 330m² Wohnfläche in Oisnitz / St. Josef - Nähe Lannach

SPITZEN GRUNDSTÜCK, VOLLERSCHLOSSEN MIT HOHER BEBAUUNGSDICHTE - CA. 330M² WOHNFLÄCHE IN OISNITZ / ST. JOSEF - NÄHE LANNACH

 

IHR TRAUM BEGINNT HIER:

 

INMITTEN DER IDYLLISCHEN HÜGELLANDSCHAFT DER WESTSTEIERMARK ENTSTEHEN EXKLUSIVE BAUGRUNDSTÜCKE, DIE KEINE WÜNSCHE OFFENLASSEN. MIT EINER GESAMTFLÄCHE VON RUND 5.000 M² UND PARZELLEN AB 850 M² BIETET DIESES PROJEKT RAUM FÜR INDIVIDUALITÄT UND HÖCHSTE WOHNQUALITÄT. EXKLUSIVES WOHNEN IN BEST-LAGE, GRUNDSTÜCKE FÜR HÖCHSTE ANSPRÜCHE. DIESE GRUNDSTÜCKE SIND MEHR ALS NUR BAUPLÄTZE, SIE SIND DIE GRUNDLAGE FÜR IHR PERSÖNLICHES WOHNPARADIES. SICHERN SIE SICH IHR STÜCK WESTSTEIERMARK UND VERWIRKLICHEN SIE IHREN TRAUM VOM EXKLUSIVEN WOHNEN.

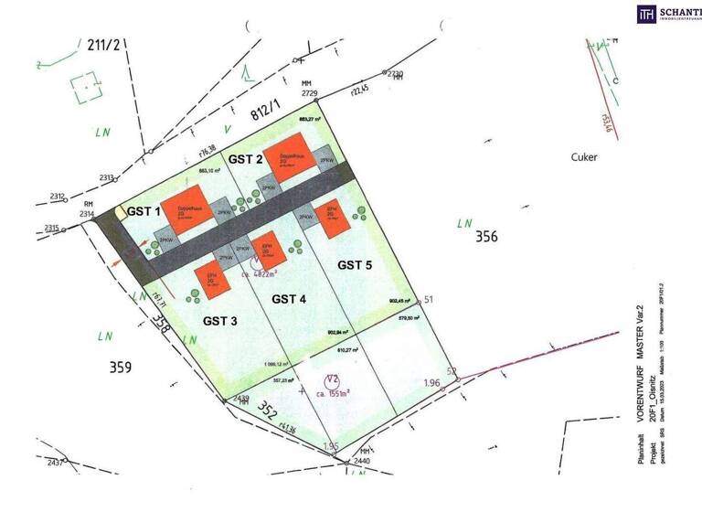
DAS GESAMTE BAU- GRUNDSTÜCK BETRÄGT GESAMT 4.822M² (ZUR ZEIT IN INSGESAMT 5 BAUGRUNDSTÜCKE AUFGETEILT)

GST 3 - OISITZ, 8503 ST. JOSEF:

*
Grundstücksfläche: 683,10m²

*
Kaufpreis € 150.282 (€ 220/m²)

*
ebenes Grundstück!

*
Baudichte bis 0,6!

*
Errichtung von ca. 330m² Wohnfläche möglich!

*
für Doppelhaus geeignet

*
TOP Anbindung!

*
Ganztagssonne!

*
Wohlfühlgarantie!

*
Ruhelage mit tollem Ausblick!

*
Vollerschlossen - sämtliche Anschlüsse (Wasser, Strom, Kanal) direkt am Grundstück!

*
komplette Aufschließung an den Grundstücken!

*
Nahwärme wird angeschlossen!

*
rechtlich gesicherte und technisch geeignete Zufahrt

*
Gefahrenfreistellung hinsichtlich Erdrutsch!

*
3% Provision zuzüglich UST

 

WEITERE VERFÜGBARE GRUNDSTÜCKE:

ZWEI DER GRUNDSTÜCKE BEFINDEN SICH AN DER STRASSE!

GST 1 MIT 683,10M², (GEEIGNET FÜR EINE DHH), S-AUSRICHTUNG, UM € 150.282 (€ 220/M²)

GST 2 MIT 663,27M², (GEEIGNET FÜR EINE DHH), S-AUSRICHTUNG, UM € 145.919 (€ 220/M²)

DREI DER GRUNDSTÜCKE BEFINDEN SICH IN RICHTUNG LANDWIRTSCHAFTLICHE FLÄCHE, TOLLE AUSSICHT!

GST 3 MIT 1.099,12M², (GEEIGNET FÜR EFH), S-AUSRICHTUNG, € 351.718 (€ 320/M²), HIER GIBT ES AUCH NOCH DIE MÖGLICHKEIT SEIN GRUNDSTÜCK MIT LF-NUTZUNG ZU ERWEITERN

GST 4 MIT 902,94M², (GEEIGNET FÜR EFH), S-AUSRICHTUNG, € 288.940 (€ 320/M²), HIER GIBT ES AUCH NOCH DIE MÖGLICHKEIT SEIN GRUNDSTÜCK MIT LF-NUTZUNG UM ZU ERWEITERN

GST 5 MIT 902,45M², (GEEIGNET FÜR EFH), S-AUSRICHTUNG, € 288.784 (€320/M², HIER GIBT ES AUCH NOCH DIE MÖGLICHKEIT SEIN GRUNDSTÜCK MIT LF-NUTZUNG UM ZU ERWEITERN 

EIN ZUSÄTZLICHES GRUNDSTÜCK MIT LF-NUTZUNG BETRÄGT GESAMT 1.551M², DIESES KANN JE NACH WUNSCH DEN GRUNDSTÜCKEN 3-5 UM € 22,00 /M² HINZUGEFÜGT WERDEN!

 

WORAUF NOCH WARTEN?

VEREINBAREN SIE NOCH HEUTE EINE BESICHTIGUNG MIT UNS! SIE WOLLEN IHRE IMMOBILIE VERKAUFEN? DANN SIND SIE BEI UNS GOLDRICHTIG! WIR SIND GERNE FÜR SIE DA UND UNTERSTÜTZEN SIE UNVERBINDLICH BEI DER BEWERTUNG IHRER IMMOBILIE. MIT VIEL SORGFALT STELLEN WIR IHNEN ALLE WICHTIGEN INFORMATIONEN UND UNTERLAGEN ZUSAMMEN, DAMIT SIE DIE BESTEN ENTSCHEIDUNGEN TREFFEN KÖNNEN. IN KOOPERATION MIT UNSERER SFI VERMÖGENSTREUHAND BEGLEITEN WIR SIE BEI DER VERWIRKLICHUNG IHRES TRAUMOBJEKTS UND UNTERSTÜTZEN SIE BEIM NACHHALTIGEN VERMÖGENSAUFBAU. MIT UNSEREN ERFAHRENEN EXPERTEN SORGEN WIR DAFÜR, DASS SIE DIE BESTEN KONDITIONEN ERHALTEN, DAMIT IHRE TRÄUME WIRKLICHKEIT WERDEN!

WWW.SCHANTL-ITH.AT [http://www.schantl-ith.at] IN KOOPERATION MIT WWW.SFI-INVEST.COM  [http://sfi-invest.com]

_DIE ANGABEN ÜBER DAS ANGEBOTENE OBJEKT ERFOLGEN MIT DER SORGFALT EINES ORDENTLICHEN IMMOBILIENMAKLERS; FÜR DIE RICHTIGKEIT SOLCHER ANGABEN, DIE AUF INFORMATIONEN DER ÜBER DAS OBJEKT VERFÜGUNGSBERECHTIGTEN BERUHEN, WIRD KEINE GEWÄHR GELEISTET._

 

 

 

Der Vermittler ist als Doppelmakler tätig.

Infrastruktur / Entfernungen

Gesundheit
Arzt <2.500m
Apotheke <3.500m

Kinder & Schulen
Schule <1.250m
Kindergarten <5.000m

Nahversorgung
Supermarkt <1.000m
Bäckerei <3.250m

Sonstige
Geldautomat <1.250m
Bank <1.250m
Polizei <3.250m
Post <3.250m

Verkehr
Bus <750m
Autobahnanschluss <5.000m
Bahnhof <750m

Angaben Entfernung Luftlinie / Quelle: OpenStreetMap

Merkmale

  • 683,1 m² Grundstück

Grundrisse

Grundrisse
1 / 2

Realisiere Dein Projekt

Bausubstanz und Energie

Der Anbieter hat keine Informationen zu Energieverbrauch oder Zustand der Immobilie bereit gestellt.
Immowelt logo

Preisdetails

Kaufpreis
150282 €
220 €/m²
Provision für Käufer
Bitte beachte, das Angebot kann bei Vertragsabschluss die Zahlung einer Provision beinhalten. Weitere Informationen erhältst Du vom Anbieter.
Weitere Preisinformationen

Es gibt unterschiedlichste Grundstücksgrößen!

Lage

address-icon
OisnitzLannach (8503)
Die angebotenen Grundstücke befinden sich in einer der begehrtesten Wohnlagen der Weststeiermark - in unmittelbarer Nähe zu Lannach und St. Josef (Oisnitz). Eingebettet in eine idyllische, ruhige Umgebung, genießen Sie hier absolute Privatsphäre und einen unvergleichlichen Ausblick auf die sanften Hügel der Region. Die Lage vereint Natur und Komfort. Nur wenige Minuten entfernt finden Sie alle wichtigen Einrichtungen wie Einkaufsmöglichkeiten, Schulen und Ärzte. Die hervorragende Verkehrsanbindung ermöglicht eine schnelle Erreichbarkeit von Graz sowie den umliegenden Gemeinden. Nur wenige Minuten von Lannach und St. Josef (Oisnitz) entfernt, genießen Sie absolute Ruhe, Privatsphäre und einen unvergleichlichen Panoramablick. Die perfekte Kombination aus Natur und urbaner Nähe, Graz erreichen Sie in kurzer Zeit, während Sie vor Ort alle wichtigen Einrichtungen wie Schulen, Einkaufsmöglichkeiten, Ärzte und den Bahnhof finden.

Weitere Informationen

Stichworte Bundesland: Steiermark

Weitere Services

Lust auf eine Besichtigung?
Eine Frage zur Immobilie?
Nachricht hinzufügen
Mit der Nutzung der oben angegebenen Telefonnummer oder durch Klicken auf „Kontaktieren“ akzeptierst Du die Allgemeinen Nutzungsbedingungen, denen Du jederzeit widersprechen kannst. Weitere Informationen zum Datenschutz

Über den Anbieter

Messendorferstraße 71a, 8041 Graz
Frau Jacqueline Fellner, MBADein Kontakt
Online-ID: 2njvl52
Referenznummer: OBGC20260112101603936cf63ecbd46
Schantl ITH Immobilientreuhand GmbH
Schantl ITH Immobilientreuhand GmbH
Bewertung: 5 von 5 Sternen
Nachricht hinzufügen
Mit der Nutzung der oben angegebenen Telefonnummer oder durch Klicken auf „Kontaktieren“ akzeptierst Du die Allgemeinen Nutzungsbedingungen, denen Du jederzeit widersprechen kannst. Weitere Informationen zum Datenschutz
Wie zufrieden bist du mit dieser Seite (nicht mit der Immobilie selbst)?