Version: 8.24.1Navigation überspringen
2.700 €
180 m² Bürofläche
Immowelt logo

Bürofläche zur Miete - Erstbezug • provisionsfrei
2.700 €
180 m² Bürofläche

Moderne Büroflächen bis ca. 300 m² - Erstbezug nach Sanierung in der Amberger Altstadt

Exklusive Büroflächen direkt an der Vils - Erstbezug nach Sanierung

In einem großzügigen Wohn- und Geschäftshaus in bester Altstadtlage werden derzeit hochwertige Büroräumlichkeiten umfassend saniert. Die Fertigstellung ist voraussichtlich für April 2026 geplant. Die im Erdgeschoss gelegene Fläche bietet ideale Voraussetzungen für Unternehmen, die eine repräsentative Lage in Verbindung mit moderner Ausstattung schätzen.

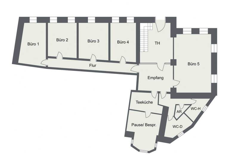
Die Büroeinheit (ca. 180 m²) umfasst insgesamt 5 Büroräume, die flexibel als Einzel-, Team- oder Gruppenbüros genutzt werden können. Ergänzt wird das Raumangebot durch einen Empfangsbereich, einen Pausen- bzw. Besprechungsraum sowie eine moderne Teeküche mit Einbauküche.

Im Zuge der Sanierung wird in den Büroräumen ein hochwertiger Natursteinboden verlegt. Zudem entstehen moderne WC-Anlagen für Damen und Herren, die zeitgemäßen Komfort bieten. Große Fenster sorgen für ein helles und angenehmes Arbeitsumfeld und unterstreichen das moderne, professionelle Gesamtbild der Bürofläche.

Optional besteht die Möglichkeit, die angemietete Gewerbefläche bei Bedarf zu erweitern: Weitere direkt zugängliche Räumlichkeiten im Obergeschoss sowie im Dachgeschoss - inklusive Dachterrasse - können zusätzlich angemietet werden. Dadurch lässt sich die Gesamtfläche flexibel auf bis zu ca. 300 m² erweitern.

Auf dem Grundstück können Kfz-Stellplätze separat angemietet werden (Mietpreis 90,00 € pro Stellplatz).
Bei Anmietung der Gesamtfläche von ca. 300 m² stehen bis zu 3 Kfz-Stellplätze zur Verfügung, bei Anmietung der Erdgeschossfläche mit ca. 180 m² bis zu 2 Kfz-Stellplätze.

Diese Büroräume vereinen Funktionalität mit Ästhetik und bieten die perfekte Kulisse für Ihr Unternehmen. Sichern Sie sich jetzt Ihre Zukunftsadresse in Amberg!

Merkmale

  • frei ab 01.04.2026
  • Erdgeschoss
  • Teeküche
  • 2 Stellplätze: 2 Außen-Stellplätze
  • Bodenbelag: Fliesen, Stein
Umfassende Sanierung - Erstbezug nach Fertigstellung (voraussichtlich April 2026)

5 flexibel nutzbare Büroräume

Optionale Erweiterung der Mietfläche auf bis zu ca. 300 m² durch zusätzlich anmietbare Räumlichkeiten im Ober- und Dachgeschoss (inkl. Dachterrasse)

Pausen- bzw. Besprechungsraum

Teeküche mit moderner Einbauküche

Erdgeschosslage

Hochwertiger Natursteinboden in den Büroräumen

Sanitärbereiche mit Fliesen

Moderne WC-Anlagen für Damen und Herren

Repräsentative Lage direkt an der Vils

Historische Altstadtlage von Amberg

Grundrisse

Grundrisse
1 / 2

Realisiere Dein Projekt

Bausubstanz und Energie

Energieausweis

Ein Energieausweis ist für diesen Gebäudetyp nicht notwendig.
  • Baujahr1978
  • Zustand der ImmobilieErstbezug
  • EnergieträgerGas
Immowelt logo

Mietkosten

Nettomiete
2.700 €
Nebenkosten
540 €
Zusätzliche Kosten
Miete pro Stellplatz
90 €
Provision für Mieter
provisionsfrei
Kaution
keine Angabe
Weitere Preisinformationen
2 Stellplätze, Miete je: 90,00 EUR

Lage

address-icon
Amberg (92224)
Der Anbieter hat die genaue Adresse nicht freigegeben
Die Büroflächen befinden sich direkt an der Vils, mitten in der charmanten Altstadt von Amberg. Die Umgebung zeichnet sich durch eine hervorragende Infrastruktur, Gastronomie, kurze Wege und eine einzigartige historische Atmosphäre aus. Die Lage bietet zudem beste Sichtbarkeit und eine gute Erreichbarkeit für Mitarbeitende und Kunden.

Weitere Informationen

Besichtigungstermine Jederzeit nach vorheriger Terminabsprache möglich. Stichworte Sonstiges: Getrennte Damen- und Herren-WCs, frei werdend

Weitere Services

Lust auf eine Besichtigung?
Eine Frage zur Immobilie?
Nachricht hinzufügen
Mit der Nutzung der oben angegebenen Telefonnummer oder durch Klicken auf „Kontaktieren“ akzeptierst Du die Allgemeinen Nutzungsbedingungen, denen Du jederzeit widersprechen kannst. Weitere Informationen zum Datenschutz

Über den Anbieter

Paradeplatz 15, 92224 Amberg
partner badge
Partnerschaft
Herr Thomas Steinl
Herr Thomas SteinlDein Kontakt
Online-ID: 2nsz256
Referenznummer: 20251133
Steinl & Kick Immobilien
title
Steinl & Kick Immobilien
Nachricht hinzufügen
Mit der Nutzung der oben angegebenen Telefonnummer oder durch Klicken auf „Kontaktieren“ akzeptierst Du die Allgemeinen Nutzungsbedingungen, denen Du jederzeit widersprechen kannst. Weitere Informationen zum Datenschutz
Wie zufrieden bist du mit dieser Seite (nicht mit der Immobilie selbst)?