Version: 8.24.0Navigation überspringen
Schade Immobilien GmbH
359.000 €
220,9 m²  •  888 m² Grundstück

Mehrfamilienhaus zum Kauf
359000 €
1.625 €/m²
220,9 m²  •  888 m² Grundstück

SCHADE IMMOBILIEN - 19 Garagen! - Zweifamilienhaus in zentraler Lage von Lüdenscheid zu verkaufen!

Dieses charmante Zweifamilienhaus, das ab sofort zum Kauf bereitsteht, bietet eine einmalige Gelegenheit für Investoren oder Familien, die zusätzlichen Raum benötigen. Das im Jahr 1910 erbaute Haus verströmt den klassischen Charme der damaligen Zeit, während es in einem gepflegten Zustand erhalten wurde.

Besonders hervorzuheben sind die 19 Garagen sowie 3 Carportstellplätze, die zusätzlich zu diesem Anwesen gehören. Diese bieten nicht nur praktischen Nutzen, sondern stellen auch eine attraktive Einnahmequelle dar, da sie ideal zur Vermietung genutzt werden können. Aktuell sind bereits 13 von 19 Garagen fremdvermietet. Die drei Carportstellplätze sowie 4 weitere Garagen werden aktuell von den Eigentümern selbst genutzt. Somit stehen aktuell 2 Garagen leer.

Mit einer beeindruckenden Wohnfläche von ca. 220 m², verteilt auf drei Etagen, bietet dieses Anwesen reichlich Platz für vielseitige Nutzungsmöglichkeiten. Die Wohnfläche ist aufgeteilt auf eine ca. 56 m² große Wohnung im Erdgeschoss (vermietet), ein ca. 20 m² großes Appartement (vermietet) sowie eine ca. 146 m² große Maisonette-Wohnung (bezugsfrei) im Obergeschoss.

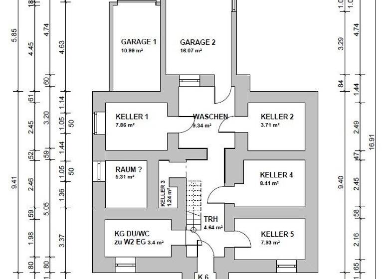
Zusätzlich verfügt das Haus über einen Keller, der zusätzlichen Stauraum bietet und somit den Wohnkomfort erhöht.

Die aktuellen Mieteinnahmen belaufen sich auf ca. 15.500 € jährlich. Durch eine Vollvermietung wäre eine Jahresnettokaltmiete von ca. 32.500 € erzielbar.

Dieses Zweifamilienhaus ist ein wahres Juwel für alle, die Wert auf Geschichte, Raum und eine zentrale Lage in Lüdenscheid legen.

Merkmale

  • Bezug: ab sofort
  • vermietet
  • 888 m² Grundstück
  • Keller
  • 22 Stellplätze: 3 Carports, 19 Garagen

Grundrisse

Grundrisse
1 / 4

Realisiere Dein Projekt

Bausubstanz und Energie

Energieausweis

F
  • Baujahr1910
  • Zustand der ImmobilieGepflegt
  • HeizungsartZentralheizung
  • EnergieträgerÖl
MediumRectangleTop

Preisdetails

Kaufpreis
359000 €
1.625,39 €/m²
Provision für Käufer
3,57 % des verbrieften Kaufpreises (inkl. 19 % MwSt.) inkl. MwSt.
Weitere Preisinformationen
3 Carportplätze
19 Garagenstellplätze
Soll-Mieteinnahmen pro Jahr: 32.000,00 EUR
Ist-Mieteinnahmen pro Jahr: 15.480,00 EUR
Geschätzte Gesamtkosten
402.331 €1
Kaufpreis
359.000 €
Notarkosten (1,5%)
5.385 €
Grunderwerbsteuer (6,5%)
23.335 €
Provision für Käufer (3,57%)
12.816 €
Grundbucheintrag (0,5%)
1.795 €
1Der angezeigte Wert ist eine automatisch berechnete Schätzung von immowelt.
2Bei den Angaben handelt es sich um ortsübliche Werte. Individuelle Kosten können abweichen.

Lage

address-icon
Lüdenscheid (58507)
Der Anbieter hat die genaue Adresse nicht freigegeben
Die Immobilie befindet sich in einem verkehrsberuhigten Bereich in sehr stadtzentraler, aber dennoch ruhiger Lage von Lüdenscheid.

Sie erreichen die Innenstadt, mit allen Geschäften des täglichen Bedarfs sowohl fußläufig als auch mit dem Auto, oder ÖPNV in nur wenigen Minuten.

Auch die Autobahnanbindungen sind durch die nahliegende A45 gegeben.

Eine Grundschule befindet sich ebenfalls in der direkten Umgebung.

Weitere Informationen

Sonstiges BEZUG / ÜBERNAHME
Die Immobilie kann nach Absprache mit den Eigentümern übernommen werden.

ZAHLUNGSWEISE
Die Sicherstellung der Kaufpreiszahlung ist selbstverständlich.

FINANZIERUNG
Die Finanzierung einer Immobilie ist grundsätzlich individuell. Bei uns erhalten Sie eine kompetente und bankenunabhängige Beratung mit dem Ziel einer zinsgünstigen und auf Sie zugeschnittenen Baufinanzierung.

PROVISION
Die Provision beträgt 3,57 % einschließlich gesetzlicher Mehrwertsteuer von dem im Kaufvertrag vereinbarten Kaufpreis. Diese Courtage ist selbstverständlich nur im Erwerbsfall zu zahlen.

ANGABEN
Alle genannten Angaben zum Objekt beruhen auf den Angaben des Eigentümers. Der Makler übernimmt keine Haftung für die aufgeführten Daten.

BERATUNGSGESPRÄCH ENRGIEBERATER
Gemäß den gesetzlichen Vorgaben steht Ihnen ein Energieberater gerne für ein kostenloses und unverbindliches Beratungsgespräch zur Verfügung. Stichworte 3 Etagen

Weitere Services

Lust auf eine Besichtigung?
Eine Frage zur Immobilie?
Nachricht hinzufügen
Mit der Nutzung der oben angegebenen Telefonnummer oder durch Klicken auf „Kontaktieren“ akzeptierst Du die Allgemeinen Nutzungsbedingungen, denen Du jederzeit widersprechen kannst. Weitere Informationen zum Datenschutz

Über den Anbieter

Herscheider Str. 12, 58840 Plettenberg
Herr Eric Oversohl
Herr Eric OversohlDein Kontakt
Online-ID: 2lq465a
Referenznummer: 458
Schade Immobilien GmbH
title
Schade Immobilien GmbH
Bewertung: 4 von 5 Sternen
Nachricht hinzufügen
Mit der Nutzung der oben angegebenen Telefonnummer oder durch Klicken auf „Kontaktieren“ akzeptierst Du die Allgemeinen Nutzungsbedingungen, denen Du jederzeit widersprechen kannst. Weitere Informationen zum Datenschutz
MediumRectangleTop
MediumRectangleBottom
MediumRectangleTop
Wie zufrieden bist du mit dieser Seite (nicht mit der Immobilie selbst)?