Exklusives Dachgeschoss-Potenzial! Genehmigt fĂĽr groĂźzĂĽgige Wohnung mit 7 Zimmern
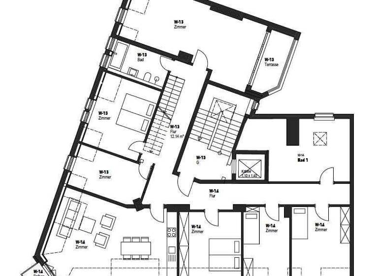
Zum Verkauf steht ein ausbaufähiges Dachgeschoss mit bereits vorliegender Baugenehmigung für eine großzügige Wohnung von über 219 m² Wohnfläche. Geplant ist ein komplettes Geschoss mit sieben Zimmern, zwei Badezimmern und einer weitläufigen Dachterrasse - ein exklusives Wohnkonzept, das viel Raum für individuelle Gestaltung bietet. Die Genehmigung ist im Kaufpreis enthalten und wird mitveräußert.
Ein besonderes Highlight dieses Angebots ist die bereits erteilte Baugenehmigung für den Dachgeschossausbau. Vorgesehen ist die Schaffung einer großzügigen Wohneinheit mit rund 219 m², sieben Zimmern, zwei Badezimmern sowie einer weitläufigen Dachterrasse. Von hier aus eröffnet sich ein einzigartiger Ausblick über die Stadt - inklusive freier Sicht auf die Elbphilharmonie, die zu den architektonischen Wahrzeichen Hamburgs zählt.
DarĂĽber hinaus umfasst die Genehmigung auch den Einbau eines modernen Personenaufzugs in alle Etagen - ein erheblicher Mehrwert, der nicht nur die neue Wohneinheit, sondern auch die bestehenden Wohnungen aufwertet.
Für Käufer bedeutet dies: Planungssicherheit, keine Unsicherheiten und sofortige Umsetzungsmöglichkeiten.
Merkmale
Bezug: sofort
2. Geschoss
Personenaufzug
Kelleranteil
Balkon
- Sonnige Dachterrasse mit freiem Blick auf die Elbphilharmonie - Großzügige Wohnfläche von über 219 m² - perfekt für ein exklusives Wohnkonzept - Baugenehmigung inklusive - sofortige Umsetzung des Ausbaus möglich - Moderne Aufzugsplanung für barrierearmen Zugang in alle Etagen - Sieben flexibel nutzbare Zimmer und zwei Badezimmer für vielfältige Wohnideen - Kombination aus urbanem Leben und naturnaher Lage mit hervorragender Infrastruktur - mit dem Aufzug bis in das Dachgeschoss
Grundrisse
Grundrisse
1 / 2
Realisiere Dein Projekt
Bausubstanz und Energie
Energieausweis
F
Baujahr1911
Preisdetails
Kaufpreis
470000 €470.000 €
2.146,12 €/m²
Hausgeld
1140 €1.140 €
Provision für Käufer
3,57 % inkl. MwSt.
Geschätzte Gesamtkosten
522.029 €1
Kaufpreis
470.000 €
Kaufnebenkosten
52.029 €
2
Notarkosten (1,5%)
7.050 €
Grunderwerbsteuer (5,5%)
25.850 €
Provision für Käufer (3,57%)
16.779 €
Grundbucheintrag (0,5%)
2.350 €
1Der angezeigte Wert ist eine automatisch berechnete Schätzung von immowelt.
2Bei den Angaben handelt es sich um ortsübliche Werte. Individuelle Kosten können abweichen.
Lage
Wilhelmsburg, Hamburg (21107)
Der Anbieter hat die genaue Adresse nicht freigegeben
Die Wohnung befindet sich in einem ruhigen und grünen Teil von Hamburg-Wilhelmsburg, einem Stadtteil auf der Elbinsel südlich der Hamburger Innenstadt. Die Umgebung bietet eine angenehme Mischung aus traditioneller Backsteinarchitektur, begrünten Straßen und einer stetig wachsenden städtischen Infrastruktur.
Die Anbindung an den öffentlichen Nahverkehr ist hervorragend: Die S-Bahn-Station Wilhelmsburg ist in wenigen Minuten erreichbar und ermöglicht eine direkte Verbindung zum Hamburger Hauptbahnhof in nur etwa zehn Minuten. Auch die Autobahnen A1 und A255 sind zügig erreichbar, was den Standort sowohl für Berufspendler als auch für Autofahrer attraktiv macht.
Der Stadtteil überzeugt durch seine lebendige, zugleich entspannte Atmosphäre und eine gute Mischung aus urbanem Leben und naturnahem Wohnen - ideal für alle, die citynah und dennoch ruhig wohnen möchten.
Weitere Informationen
Sonstiges
Vielen Dank fĂĽr Ihr Interesse an der von uns angebotenen Immobilie.
Bitte haben Sie Verständnis dafür, dass wir unseren Auftraggebern Diskretion zugesagt haben und Sie daher um die Angabe Ihrer vollständigen Kontaktdaten inkl. Ihrer Telefonnummer bitten müssen.