Wohnung 76m2 zum Kauf - Sibensko-Kninska, Murter-Kornati
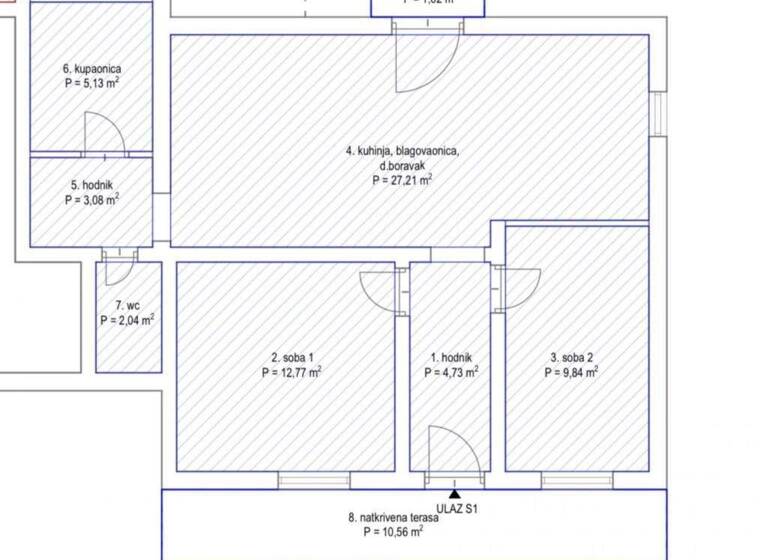
Zum Verkauf steht eine zwei-Zimmer-Wohnung im Erdgeschoss mit einer Fläche von 76,98 m², die sich in einem gut gepflegten Gebäude (Erdgeschoss + 1. Stock) mit 4 Wohnungen befindet. Das Gebäude hat eine neue Fassade. Die Wohnung liegt 400 Meter vom Zentrum von Murter und allen Annehmlichkeiten entfernt. Es gehört ein Parkplatz dazu.
Die Wohnung besteht aus einem Eingangsflur, einem WC, einem offenen Küchen-/Ess-/Wohnbereich, einem Badezimmer, einem WC und 2 Schlafzimmern sowie einer großzügigen Terrasse.
Die Wohnung ist mit Zentralheizung, Klimaanlage und PVC-Fenstern ausgestattet. Das Eigentum ist klar (1/1), und die Wohnungen sind als separate Einheiten registriert.
Für weitere Fragen oder um eine Besichtigung zu vereinbaren, kontaktieren Sie bitte: