Version: 8.22.4Navigation ĂĽberspringen
490.000 €
430,7 m² Lagerfläche
Immowelt logo

Halle/Industriefläche zum Kauf
490000 €
430,7 m² Lagerfläche

WOHNUNGSEIGENTUMSPAKET: 4 Geschäftslokale/Gewerbe-. und Lagerflächen zum Kauf, 1160!

_WOHNUNGSEIGENTUMSPAKET: 4 Geschäftslokale/Gewerbe-. und Lagerflächen zum Kauf, 1160!_

In einem schönen Jahrhundertwendehaus (BJ ca.1900) in 1160 Wien gelangt ein Wohnungseigentumspaket (Lager- und Gewerbeflächen) mit einer _Gesamtfläche von __ca. 430,71 m²_ (lt. Zinsliste) zum Verkauf. 

Im Zuge der Parifizierung wurden die Objekte inkl. Zubehör und Bezeichnung neu strukturiert. 

_Die Lager- und Geschäftsflächen sind bis längstens 30.06.2028 befristet vermietet. Eine vorzeitige RĂĽckstellung aller Flächen per 2027 wurde seitens des Mieters als sehr wahrscheinlich in Aussicht gestellt. _

Die Gesamtfläche von _ca. 430,71m² teilt sich auf in 4 Einheiten _und setzt sich wie folgt zusammen: 

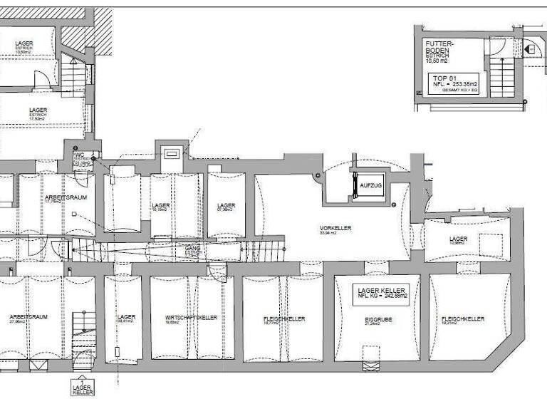
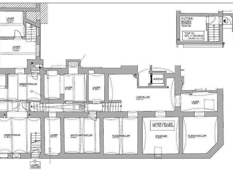
* Lager/EG/Souterrain Top 1: ca. 253,38 m² (EG: ca.10,50 m²/Souterrain: ca. 242,88 m²)
* Lager/EG Top 2 (Hofgebäude): ca. 45,61 m² + ca. 15,67 m² Garten (Gartenfläche gemäß NWGA)
* Geschäftslokal/EG mit Lager Top 4: ca. 63,23 m² (Hofbereich)
* Geschäftslokal/EG Top 5: ca. 68,49 m² (Ecklokal) 

In weiterer Folge könnte das Hofgebäude laut einer unverbindlichen Studie aus dem Jahr 2016 eventuell von derzeit ca. 45,61 m² (siehe Plan Top 2) in eine Werkstätte umgewidmet und bis zu einer Nutzfläche von 115,00 m² erweitert werden (ohne Gewähr).

Entsprechend der Darstellung in Plan Top 2 wurde im Zuge der Parifizierung eine Gartenfläche von ca. 15,67 m² zum Hofgebäude bereits zugeordnet.

Derzeit wird das Ausbaupotential auf geänderte Bebauungsbestimmungen hin geprüft, ob zusätzliche Nutzflächen bzw Widmungsvarianten möglich sind.

Im Kellerbereich sind Einlagerungsräume zu den einzelnen WE-Objekten zugeordnet. Das Haus verfügt weiters über einen allgemeinen Fahrrad- und Kinderwagenraum im Kellergeschoß.

Bei Interesse senden wir Ihnen gerne weiterfĂĽhrende Unterlagen und Informationen zu.

_Kaufpreis: € 490.000,--_

Kaufvertragserrichter und Treuhänder: Tiefenthaler Gnesda Rechtsanwälte GmbH. Nähere Informationen zum Honorar werden bei Interesse am Objekt übermittelt.

Maklerprovision: 3% vom KP zzgl. 20% USt (€ 14.700,-- zzgl. 20% USt = € 17.640,--)

_Lage/Infrastruktur_
Die Thaliastrasse mit sämtlichen Geschäften des täglichen Bedarfs ist nur wenige Gehminuten entfernt. Eine gute Infrastruktur sowie Restaurants und Cafes findet man in der Nähe. 

_Ă–ffentliche Anbindung_
U6 (Station Thaliastrasse) ca. 4 Gehmin. 
Buslinie N46
Strassenbahnlinie 46

 

Wir weisen darauf hin, dass zwischen dem Vermittler und dem zu vermittelnden Dritten ein familiäres oder wirtschaftliches Naheverhältnis besteht.

Der Vermittler ist als Doppelmakler tätig.

Infrastruktur / Entfernungen

Gesundheit
Arzt <500m
Apotheke <500m
Klinik <500m
Krankenhaus <1.500m

Kinder & Schulen
Schule <500m
Kindergarten <500m
Universität <1.500m
Höhere Schule <1.000m

Nahversorgung
Supermarkt <500m
Bäckerei <500m
Einkaufszentrum <500m

Sonstige
Geldautomat <500m
Bank <500m
Post <500m
Polizei <500m

Verkehr
Bus <500m
U-Bahn <500m
StraĂźenbahn <500m
Bahnhof <500m
Autobahnanschluss <4.500m

Angaben Entfernung Luftlinie / Quelle: OpenStreetMap

Grundrisse

Grundrisse
1 / 4

Realisiere Dein Projekt

Bausubstanz und Energie

Heizwärmebedarf (HWB)

E

Gesamtenergieeffizienz (fGEE)

C
  • Baujahr1900
  • Zustand der ImmobilieAltbau (bis 1945)
Immowelt logo

Preisdetails

Kaufpreis
490000 €
Provision für Käufer
3% des Kaufpreises zzgl. 20% USt.

Lage

address-icon
Wien (1160)

Weitere Informationen

Stichworte Nutzfläche: 430,71 m², Bundesland: Wien, modernisiert: 2018

Weitere Services

Lust auf eine Besichtigung?
Eine Frage zur Immobilie?
Nachricht hinzufĂĽgen
Mit der Nutzung der oben angegebenen Telefonnummer oder durch Klicken auf „Kontaktieren“ akzeptierst Du die Allgemeinen Nutzungsbedingungen, denen Du jederzeit widersprechen kannst. Weitere Informationen zum Datenschutz

Ăśber den Anbieter

Graben 28/1/12, 1010 WIEN
partner badge
Partnerschaft
Herzel Immobilien e.U.Dein Kontakt
Online-ID: 2nbt55d
Referenznummer: OBGC20260203094639940ce2db08dd3
Herzel Immobilien e.U.
Herzel Immobilien e.U.
Nachricht hinzufĂĽgen
Mit der Nutzung der oben angegebenen Telefonnummer oder durch Klicken auf „Kontaktieren“ akzeptierst Du die Allgemeinen Nutzungsbedingungen, denen Du jederzeit widersprechen kannst. Weitere Informationen zum Datenschutz
Wie zufrieden bist du mit dieser Seite (nicht mit der Immobilie selbst)?