Version: 8.24.0Navigation überspringen
1.149.000 €
5 Zimmer  •  122,2 m²  •  184 m² Grundstück
Immowelt logo

Reihenendhaus zum Kauf - Erstbezug • provisionsfrei
1149000 €
9.404 €/m²
5 Zimmer  •  122,2 m²  •  184 m² Grundstück

AIGNER - Haus 3: Neubau mit Konzept - Stilvolle 3-Spänner für Familien und Individualisten

Willkommen in Ihrem neuen Zuhause - zwei Dreispänner, die speziell für Familien entworfen wurden, verbinden modernen Komfort mit stilvoller Architektur.
Jedes Haus besticht durch eine durchdachte Raumaufteilung, die den Bedürfnissen einer Familie gerecht wird. Die lichtdurchfluteten Räume bieten ein behagliches Wohnambiente, in dem sich Groß und Klein wohlfühlen.
Das Erdgeschoss beeindruckt mit einem großzügigen Wohn- und Essbereich, der fließend in die offene Küche übergeht. Hier wird das tägliche Miteinander zum Vergnügen.
Bodentiefe Fenster sorgen für eine helle und freundliche Atmosphäre und bieten Zugang zur geräumigen Terrasse, die sich ideal für gesellige Abende und entspannte Stunden im Freien eignet.
Besonders hervorzuheben sind die bodentiefen Duschen in den modern gestalteten Badezimmern, die luxuriösen Komfort bieten.
Die stilvolle Architektur wird durch wertige Materialien und moderne Technik ergänzt. Der schöne Gartenanteil lädt zum Spielen, Gärtnern und Entspannen ein und bietet genügend Platz für die ganze Familie. Durch Kfw 55-Standard sind die Häuser energieeffizient und umweltfreundlich. Ein integrierter Sonnenschutz sorgt auch an heißen Tagen für ein angenehmes Raumklima.
Lassen Sie sich von diesen Reihenhäusern begeistern und erleben Sie modernen, komfortablen Wohnraum in perfekter Harmonie mit durchdachter Funktionalität und stilvollem Design.
Hier finden Familien den idealen Ort, um ihre Träume zu verwirklichen.

Der Kaufpreis setzt sich wie folgt zusammen: Kaufpreis Reiheneckhaus 1.149.000 Euro + 29.500 Euro Garage = 1.178.500 Euro Gesamtkaufpreis.

Merkmale

  • Bezug: nach Vereinbarung
  • 184 m² Grundstück
  • Keller
  • Gäste-WC
Zwei moderne Dreispänner, ideal für Familien


Durchdachte Grundrisse mit familienfreundlicher Raumaufteilung


Großzügiger Wohn- und Essbereich mit offener Küche

Bodentiefe Fenster für viel Tageslicht und freundliche Wohnatmosphäre


Zugang zur großzügigen Terrasse vom Wohnbereich aus


Eigener Gartenanteil je Haus - ideal zum Spielen, Gärtnern und Entspannen


Hochwertig ausgestattete Badezimmer mit bodentiefen Duschen


Zeitgemäße, stilvolle Architektur mit modernen Gestaltungselementen


Verwendung wertiger Materialien im Innen- und Außenbereich


Energieeffiziente Bauweise nach KfW-55-Standard
Integrierter Sonnenschutz für angenehmes Raumklima im Sommer


Moderne Haustechnik

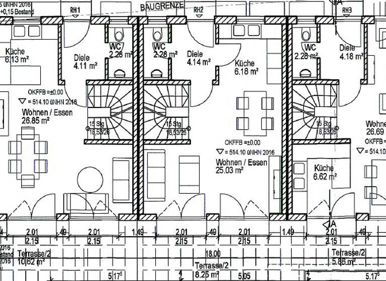
Grundrisse

Grundrisse
1 / 4

Realisiere Dein Projekt

Bausubstanz und Energie

Der Anbieter hat keine Informationen zum Energieverbrauch bereit gestellt.
  • Baujahr2026
  • Zustand der ImmobilieNeubau, Erstbezug
  • HeizungsartZentralheizung
Immowelt logo

Preisdetails

Kaufpreis
1149000 €
9.404,16 €/m²
Provision für Käufer
provisionsfrei; 0% inkl. MwSt.
Die Käuferprovision beträgt 3,57% inkl. gesetzlicher Mehrwertsteuer vom wirtschaftlichen Kaufpreis. Unsere Angebote erfolgen freibleibend und unverbindlich. Irrtum und Zwischenverkauf bleiben vorbehalten.
Geschätzte Gesamtkosten
1.212.195 €1
Kaufpreis
1.149.000 €
Notarkosten (1,5%)
17.235 €
Grunderwerbsteuer (3,5%)
40.215 €
Grundbucheintrag (0,5%)
5.745 €
1Der angezeigte Wert ist eine automatisch berechnete Schätzung von immowelt.
2Bei den Angaben handelt es sich um ortsübliche Werte. Individuelle Kosten können abweichen.

Lage

address-icon
Aubing-Lochhausen-LangwiedLochhausen (81249)
Der Anbieter hat die genaue Adresse nicht freigegeben
Aubing-Lochhausen, im Westen Münchens gelegen, ist ein attraktiver Wohnstandort für Familien.
Bekannt für seine ruhige und grüne Umgebung, bietet der Stadtteil zahlreiche Parks und Naherholungsgebiete wie den Langwieder See und den Lußsee, die ideal für Freizeitaktivitäten und Ausflüge mit der Familie sind.
Aubing verfügt über gut ausgebaute Schulen, Kindergärten und Spielplätze, die für die Betreuung und Bildung der Kinder sorgen.
Das öffentliche Verkehrsnetz ist hervorragend, mit S-Bahn-Stationen in der Umgebung die schnelle Verbindungen ins Stadtzentrum gewährleisten. Einkaufsmöglichkeiten, Ärzte und andere Dienstleistungen sind bequem erreichbar.
Der Stadtteil bietet eine harmonische Mischung aus ländlichem Charme und städtischem Komfort, was ihn besonders familienfreundlich macht.
Die Nähe zur Natur und die gute Infrastruktur machen Aubing-Lochhausen zu einem idealen Wohnort für Familien in München.

Trotz der ruhigen Atmosphäre bietet die Denkenhofstraße eine ausgezeichnete Anbindung an die Münchner Innenstadt und das Umland.
Die S-Bahn-Station Lochhausen ist nur wenige Gehminuten entfernt und ermöglicht eine schnelle und bequeme Verbindung zu allen wichtigen Zielen in und um München.
Darüber hinaus sind die Autobahnen A8 und A99 gut erreichbar, was für Pendler und Reisende eine optimale Verkehrsanbindung aufweist.
Zusätzlich befindet sich eine Bushaltestelle in unmittelbarer Nähe, von der aus die Linien 162 und N80 direkte Verbindungen zum Fernzugbahnhof Pasing und weiteren wichtigen Zielen in der Umgebung bieten.
Die Infrastruktur des Viertels lässt keine Wünsche offen. In der Nähe finden sich zahlreiche Einkaufsmöglichkeiten, Schulen, Kindergärten, Ärzte und Restaurants, die den täglichen Bedarf abdecken und das Leben in Lochhausen äußerst komfortabel gestalten.

Die Denkenhofstraße bietet somit eine exzellente Wohnlage in Lochhausen, die durch ihre natürliche Schönheit, ihre erstklassige Anbindung und ihre vielfältigen Annehmlichkeiten besticht.

Weitere Informationen

Sonstiges Heizungsart: Wärmepumpe
Baujahr: 2026

Mehr Bilder und Infos hier - https://aigner-immobilien.de/objekt/ID-42284/

Kostenlose Online-Bewertung - https://aigner-immobilien.de/wertermittlung-online-muenchen/

Zu unseren Marktberichten - https://aigner-immobilien.de/marktinformationen/

- https://aigner-immobilien.de/objekt/ID-42284/MehrBilderundInfoshier Stichworte Anzahl der Schlafzimmer: 3, Anzahl der Badezimmer: 2, 4 Etagen

Weitere Services

Lust auf eine Besichtigung?
Eine Frage zur Immobilie?
Nachricht hinzufügen
Mit der Nutzung der oben angegebenen Telefonnummer oder durch Klicken auf „Kontaktieren“ akzeptierst Du die Allgemeinen Nutzungsbedingungen, denen Du jederzeit widersprechen kannst. Weitere Informationen zum Datenschutz

Über den Anbieter

Ruffinistraße 26, 80637 München
Herr Stephan MichlDein Kontakt
Online-ID: 2knz65y
Referenznummer: 42284
Aigner Immobilien GmbH
Aigner Immobilien GmbH
Nachricht hinzufügen
Mit der Nutzung der oben angegebenen Telefonnummer oder durch Klicken auf „Kontaktieren“ akzeptierst Du die Allgemeinen Nutzungsbedingungen, denen Du jederzeit widersprechen kannst. Weitere Informationen zum Datenschutz
Wie zufrieden bist du mit dieser Seite (nicht mit der Immobilie selbst)?