Version: 8.25.1Navigation überspringen
1.500 €
4 Zimmer  •  170 m² Verkaufsfläche
Immowelt logo

Ladenfläche zur Miete
1.500 €
4 Zimmer  •  170 m² Verkaufsfläche

Fachmarkt/Shop in frequentierter Lage! - Fachmarktzentrum Parsberg, Hohenfelser Straße

Fachmarkt/Shop in frequentierter Lage!

- Fachmarktzentrum Parsberg - Hohenfelser Straße
- Ausfallstraße am Rande der Innenstadt
- Erdgeschoss mit großer Schaufensterfront
- Perfekt für Lebensmittel, Dienstleister und Einzelhandel
- Frequenzbringer Fa. ACTION, Tako und Woolworth als Nachbar
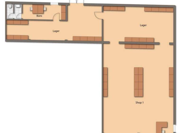
- Ebenerdige Verkaufsfläche ca. 170 m²
- Lager und Nebenräume wie Sanitär und Sozialraum ca. 80 m²
- Gesamtnutzfläche ca. 250 m²
- Lager mit ebenerdiger Andienung über Flügeltor
- Viele Kundenparkplätze direkt vor der Haustür
- Sofort frei und bereit zum Durchstarten
- Keine Gastronomie / Spielhalle usw.
- Energieausweis in Vorbereitung

Mietpreis: EUR 1.500,- NK + MwSt.

Kaution: 2 Monatskaltmieten

Provision: 1,19 Kaltmonatsmieten inkl. ges. MwSt.

Grundrisse

Grundrisse
1 / 1

Realisiere Dein Projekt

Bausubstanz und Energie

Möchtest du Details zum Energieverbrauch?info_energy_calculation-icon
Immowelt logo

Mietkosten

Nettomiete zzgl. Nebenkosten
1.500 €
Provision für Mieter
1,19 Kaltmonatsmieten inkl. ges. MwSt.
Kaution
3000 €

Lage

address-icon
Parsberg (92331)
Der Anbieter hat die genaue Adresse nicht freigegeben

Weitere Informationen

Sonstiges 2,38 Kaltmonatsmieten einschließlich ges. MwSt. = EUR

Weitere Services

Lust auf eine Besichtigung?
Eine Frage zur Immobilie?
Mit einer persönlichen Nachricht hast du bessere Chancen auf eine Antwort.
Mit der Nutzung der oben angegebenen Telefonnummer oder durch Klicken auf „Kontaktieren“ akzeptierst Du die Allgemeinen Nutzungsbedingungen, denen Du jederzeit widersprechen kannst. Weitere Informationen zum Datenschutz

Über den Anbieter

Bahnhofstraße 7, 92318 Neumarkt
partner badge
10 Jahre Partnerschaft
Kirsch & Haubner Immobilien GmbH
Kirsch & Haubner Immobilien GmbHDein Kontakt
Online-ID: 26HW9LBVTY4L
Referenznummer: A5803
Kirsch & Haubner Immobilien GmbH
title
Kirsch & Haubner Immobilien GmbH
Bewertung: 4,2 von 5 Sternen
Mit einer persönlichen Nachricht hast du bessere Chancen auf eine Antwort.
Mit der Nutzung der oben angegebenen Telefonnummer oder durch Klicken auf „Kontaktieren“ akzeptierst Du die Allgemeinen Nutzungsbedingungen, denen Du jederzeit widersprechen kannst. Weitere Informationen zum Datenschutz
Wie zufrieden bist du mit dieser Seite (nicht mit der Immobilie selbst)?