Version: 8.25.1Navigation überspringen
Deutsche Bank Immobilien GmbH
920.000 €
2.450 m² Lagerfläche

Werkstatt zum Kauf
920000 €
2.450 m² Lagerfläche

Produktionshalle mit 2.450 m² Fläche im Gewerbegebiet von Gronau-Epe

Zum Verkauf steht eine großzügige Produktionshalle auf einem 5911 m² großen Grundstück. im etablierten Gewerbegebiet von Gronau-Epe. Die Immobilie eignet sich sowohl für produzierende Unternehmen als auch für Logistik-, Lager- oder Gewerbebetriebe mit Flächenbedarf.

Die Halle wurde in massiver Bauweise errichtet und ist nicht unterkellert. Die Beheizung erfolgt über eine Ölheizung. Die Realisierung erfolgte in zwei Bauabschnitten (1969 und 1972).

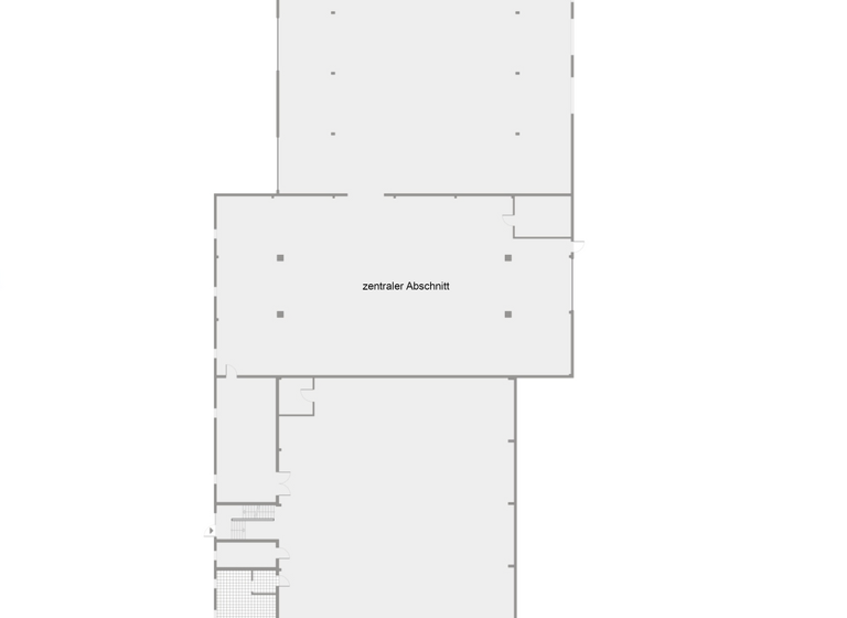
Die Gesamtgewerbefläche beträgt ca. 2.450 m². Die Halle ist funktional in drei miteinander verbundene Hallenbereiche gegliedert. Die zentrale Mittelhalle verfügt über ein großes Zufahrtstor und bildet den logistischen Mittelpunkt der Einheit. Von hier aus erschließen sich zwei seitlich angeordnete Hallenbereiche, wodurch effiziente Produktions- und Arbeitsabläufe ermöglicht werden.

Die Andienung erfolgt komfortabel über das Hallentor. Eine LKW-Anbindung ist gegeben, Rangierflächen sind vorhanden und ermöglichen einen reibungslosen Warenumschlag.

Zusätzlich stehen ca. 350 m² Bürofläche zur Verfügung. Diese ist derzeit entkernt und sanierungsbedürftig, bietet jedoch die Möglichkeit einer individuellen und bedarfsgerechten Neugestaltung.

Merkmale

  • frei ab 01.05.2026
  • 5.911 m² Grundstück
  • voll erschlossen
  • Kein Keller
  • Bodenbelag: Estrich
- Objektart: Produktionshalle
- Standort: Gewerbegebiet Gronau-Epe
- Grundstücksfläche: 5911 m²
- Gesamtgewerbefläche: ca. 2.450 m²
- Bürofläche: ca. 350 m² (sanierungsbedürftig)
- Bauabschnitte: 1969 und 1972
- Bauweise: massiv
- Heizung: Ölheizung
- Nicht unterkellert
- LKW-Andienung möglich
- Rangierfläche vorhanden
- Objekt derzeit frei - kurzfristig verfügbar

Grundrisse

Grundrisse
1 / 1

Realisiere Dein Projekt

Bausubstanz und Energie

Energieausweis

Endenergieverbrauch (Wärme)

Endenergieverbrauch (Strom)

  • Zustand der ImmobilieMassivhaus
  • HeizungsartZentralheizung
  • EnergieträgerÖl

Preisdetails

Kaufpreis
920000 €
Provision für Käufer
2,5 % zzgl. MwSt.
Geschätzte Gesamtkosten
943.000 €1
Kaufpreis
920.000 €
Provision für Käufer (2,5%)
23.000 €
1Der angezeigte Wert ist eine automatisch berechnete Schätzung von immowelt.
2Bei den Angaben handelt es sich um ortsübliche Werte. Individuelle Kosten können abweichen.

Lage

address-icon
EpeGronau (48599)
Der Anbieter hat die genaue Adresse nicht freigegeben
Die Nähe zur Autobahn A31 sorgt für schnelle Verbindungen ins Ruhrgebiet oder Richtung Niederlande. Das macht die Halle für regionale wie überregionale Logistik attraktiv. Außerdem ist Gronau-Epe ein gewachsenes Gewerbegebiet mit einer guten Infrastruktur - ob Zulieferer, Dienstleister oder Arbeitskräfte, alles ist in Reichweite. Diese Kombination aus Anbindung und lokaler Gewerbestruktur ist für viele Unternehmen ein echter Standortvorteil.

Weitere Informationen

Sonstiges Gerne stellen wir Ihnen dieses Haus im Rahmen einer Besichtigung vor. Lassen Sie uns Ihre Anfrage schriftlich unter vollständiger Angabe Ihrer Kontaktinformationen zukommen und wir melden uns zurück, um einen gemeinsamen Besichtigungstermin mit Ihnen zu vereinbaren.

Rechtlicher Hinweis auf den Urheber des Exposés
Felix Maag
Selbstständiger Immobilienberater
Alter Steinweg 38 48143 Münster
E-Mail: felix-paul.maag@db.com
Telefon: 0157 38835844

Aufsichtsbehörde: Finanzamt Münster-Innenstadt
Internet: www.finanzverwaltung.nrw.de
Anschrift: Anton-Bruchhausen-Str. 1, 48147 Münster Stichworte Gesamtfläche: 2.450,00 m², Sonstige Fläche: 2.100,00 m², Hallenhöhe: 7,00 m, Bundesland: Nordrhein-Westfalen, 2 Etagen

Weitere Services

Lust auf eine Besichtigung?
Eine Frage zur Immobilie?
Nachricht hinzufügen
Mit der Nutzung der oben angegebenen Telefonnummer oder durch Klicken auf „Kontaktieren“ akzeptierst Du die Allgemeinen Nutzungsbedingungen, denen Du jederzeit widersprechen kannst. Weitere Informationen zum Datenschutz

Über den Anbieter

Lubahnstraße 2, 31789 Hameln
partner badge
Partnerschaft
Herr Felix MaagDein Kontakt
Online-ID: 261FRKMHB6HG
Referenznummer: 42490114-1012864
Deutsche Bank Immobilien GmbH
Deutsche Bank Immobilien GmbH
Nachricht hinzufügen
Mit der Nutzung der oben angegebenen Telefonnummer oder durch Klicken auf „Kontaktieren“ akzeptierst Du die Allgemeinen Nutzungsbedingungen, denen Du jederzeit widersprechen kannst. Weitere Informationen zum Datenschutz
Wie zufrieden bist du mit dieser Seite (nicht mit der Immobilie selbst)?