Version: 8.25.1Navigation überspringen
2.595 €
13 Zimmer  •  305 m² Bürofläche
Immowelt logo

Bürofläche zur Miete
2.595 €
13 Zimmer  •  305 m² Bürofläche

Anprechende Büroflächen in Bahnhofsnähe

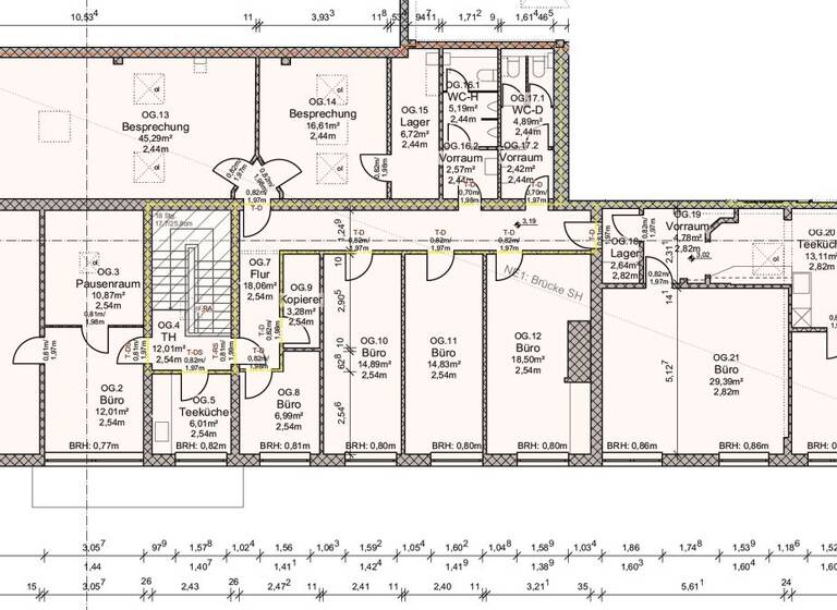
Die Bürofläche befindet sich im Obergeschoss eines gemischt genutzten Gewerbegebäudes. Die Gesamtfläche beträgt rd. 305 m².

Einen Grundriss haben wir beigefügt.

Die Einzelheiten:
- insgesamt 10 Räume in unterschiedlichen Größen, die als Büro genutzt werden können
- 2 weitere Räume, die über Oberlichter verfügen und als Nebenräume nutzbar sind
- 2 Teeküchen
- 2 Räume für Lager/Technik
- getrennte WC-Anlage
- Sonnenschutz über Außenjalousien
- 2 Räume sind mit einer Klimaanlage ausgestattet
- textiler Bodenbelag
- gute bis sehr gute Belichtung der Räume
- Datenverkabelung vorhanden
- 6 Stellplätze sind im Mietpreis enthalten, weitere können bei Bedarf gemietet werden
- weitere Mietflächen im Erdgeschoss (Büroflächen, Halle, Lager) können ebenfalls nach Absprache gemietet werden

Gerne stehen wir für Rückfragen und einen Besichtigungstermin zur Verfügung.

Merkmale

  • Bezug: nach Vereinbarung

Grundrisse

Grundrisse
1 / 1

Realisiere Dein Projekt

Bausubstanz und Energie

Energieausweis

Der Anbieter hat keine Daten zum Energieausweis hinterlegt.
  • HeizungsartZentralheizung
  • EnergieträgerGas
Immowelt logo

Mietkosten

Nettomiete
2.595 €
Nebenkosten
765 €
Provision für Mieter
2,0 MM zzgl. MwSt.
Die Courtage ist bei Abschluß eines Mietvertrages vom Mieter an die Herzogtum Immobilien GmbH zu zahlen.
Kaution
8.000,00 €

Lage

address-icon
Schwarzenbek (21493)
Der Anbieter hat die genaue Adresse nicht freigegeben
Die Bürofläche befindet sich in Schwarzenbek, in Nähe zur sogenannten "Kerntangente" und zum Bahnhof und ist somit gut erreichbar.

Nächstgelegene Autobahn ist die A 24; hier befindet sich die nächste Anschlussstelle Schwarzenbek/Grande in ca. 10 km Entfernung.

Über die durch Schwarzenbek verlaufenden Bundesstraßen B 207, B 209 und B 404 und die zentrale Lage im Kreis ist eine sehr gute örtliche und überörtliche Verkehrsanbindung vorhanden.

Die Hamburger Stadtgrenze liegt ebenfalls nur ca. 20 km entfernt.

Weitere Informationen

Stichworte Gesamtfläche: 305,00 m²

Weitere Services

Lust auf eine Besichtigung?
Eine Frage zur Immobilie?
Mit einer persönlichen Nachricht hast du bessere Chancen auf eine Antwort.
Mit der Nutzung der oben angegebenen Telefonnummer oder durch Klicken auf „Kontaktieren“ akzeptierst Du die Allgemeinen Nutzungsbedingungen, denen Du jederzeit widersprechen kannst. Weitere Informationen zum Datenschutz

Über den Anbieter

Lauenburger Straße 5, 21493 Schwarzenbek
partner badge
6 Jahre Partnerschaft
Herr Dennis BerlingDein Kontakt
Online-ID: 259UT27RP1BC
Referenznummer: 5217#URAgn
Herzogtum Immobilien GmbH
Herzogtum Immobilien GmbH
Bewertung: 4,9 von 5 Sternen
Mit einer persönlichen Nachricht hast du bessere Chancen auf eine Antwort.
Mit der Nutzung der oben angegebenen Telefonnummer oder durch Klicken auf „Kontaktieren“ akzeptierst Du die Allgemeinen Nutzungsbedingungen, denen Du jederzeit widersprechen kannst. Weitere Informationen zum Datenschutz
Wie zufrieden bist du mit dieser Seite (nicht mit der Immobilie selbst)?