Pool, Sauna und Doppelgarage - Charmantes Einfamilienhaus mit Potenzial
Dieses großzügige Ein- bis Mehrgenerationenhaus in zentraler Lage von Mönchengladbach bietet mit ca. 175 m² Wohnfläche und insgesamt 6 Zimmern ideale Voraussetzungen für Familien, die viel Platz zum Wohnen und Entfalten suchen. Aufgeteilt auf zwei Etagen, stehen Ihnen vier Schlafzimmer, zwei Bäder sowie ein zusätzliches Gäste-WC zur Verfügung.
Ein besonderes Highlight des Hauses ist der weitläufige Garten mit rund 800 m² Fläche, der mit einem Pool und einer Sauna zu einem privaten Rückzugsort für Erholung und Freizeitgestaltung wird. Hier lassen sich entspannte Stunden mit der Familie oder gesellige Abende mit Freunden verbringen.
Zusätzlich verfügt die Immobilie über einen ausgebauten Spitzboden, der zwar baurechtlich nicht als Wohnfläche ausgewiesen ist, sich jedoch hervorragend als Hobby- oder Arbeitsbereich nutzen lässt. Das Haus ist voll unterkellert und bietet dadurch viel Stauraum sowie weitere Nutzungsmöglichkeiten.
Eine großzügige Doppelgarage sowie eine geräumige Auffahrt bieten Platz für mehrere Fahrzeuge und runden das Angebot ab.
Die Ausstattung ist insgesamt als einfach einzustufen, sodass künftige Eigentümer die Möglichkeit haben, das Haus nach ihren individuellen Vorstellungen zu renovieren und modern zu gestalten.
Mit einem Grundstück von ca. 1.050 m² und der zentralen Lage in Mönchengladbach verbindet diese Immobilie viel Raum zum Wohnen mit einer hervorragenden Erreichbarkeit.
Merkmale
1.050 m² Grundstück
Einbauküche
Gäste-WC
Keller
Garten
3 Stellplätze: 3 Garagen
Sauna
Swimmingpool
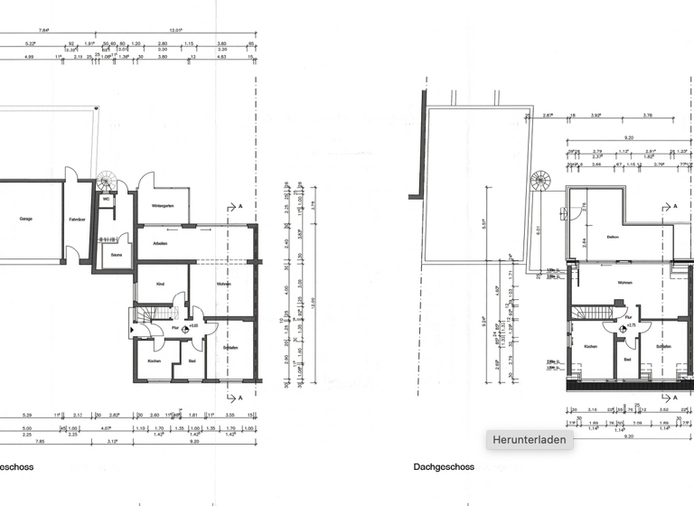
Grundrisse
Grundrisse
1 / 1
Realisiere Dein Projekt
Bausubstanz und Energie
Energieausweis
Der Anbieter hat keine Daten zum Energieausweis hinterlegt.
Baujahr1960
Preisdetails
Kaufpreis
475000 €475.000 €
2.714,29 €/m²
Provision für Käufer
3,57% inkl. Mwst.
Weitere Preisinformationen
3 Garagenstellplätze
Geschätzte Gesamtkosten
532.332 €1
Kaufpreis
475.000 €
Kaufnebenkosten
57.332 €
2
Notarkosten (1,5%)
7.125 €
Grunderwerbsteuer (6,5%)
30.875 €
Provision für Käufer (3,57%)
16.957 €
Grundbucheintrag (0,5%)
2.375 €
1Der angezeigte Wert ist eine automatisch berechnete Schätzung von immowelt.
2Bei den Angaben handelt es sich um ortsübliche Werte. Individuelle Kosten können abweichen.
Lage
Windberg, Mönchengladbach (41063)
Der Anbieter hat die genaue Adresse nicht freigegeben
Die Immobilie befindet sich im ruhigen nördlichen Stadtbereich von Mönchengladbach, in einer beschaulichen Anliegerstraße mit Tempo-30-Regelung - ideal für Familien und ein sicheres Wohnumfeld. Die Nachbarschaft ist geprägt von gepflegten Ein- und Mehrfamilienhäusern und vermittelt ein angenehmes Wohngefühl mit viel Privatsphäre.
Geschäfte des täglichen Bedarfs wie Supermärkte, Bäcker und Apotheken sind in wenigen Minuten erreichbar. Schulen, Kindergärten und medizinische Einrichtungen befinden sich ebenfalls im direkten Umfeld, sodass eine sehr gute Nahversorgung gewährleistet ist.
Die Anbindung an den öffentlichen Nahverkehr ist ausgezeichnet. Eine Bushaltestelle liegt in fußläufiger Entfernung, und der Mönchengladbacher Hauptbahnhof ist nur rund zwei Kilometer entfernt. Von dort bestehen direkte Verbindungen in die gesamte Region und darüber hinaus. Auch die Autobahnen, insbesondere die A61, sind schnell erreicht, wodurch eine ideale Anbindung an das Ruhrgebiet, Düsseldorf und die umliegenden Städte besteht.
Die Innenstadt mit ihren zahlreichen Einkaufs- und Freizeitmöglichkeiten sowie kulturellen Angeboten ist in wenigen Minuten erreichbar. Trotz der zentralen Lage bietet das Wohnumfeld ein hohes Maß an Ruhe und Wohnqualität - eine ideale Kombination aus städtischem Komfort und angenehmer Wohnatmosphäre.