Sorgfalt in jedem Detail - Wir gestalten gemeinsam Ihr Traumhaus
Herzlich willkommen in Ihrem neuen Zuhause, das wir perfekt auf Ihre präzisen Bedürfnisse anpassen. Unsere Häuser werden von Grund auf mit scharfsinniger Genauigkeit entworfen und bieten eine perfekte Mischung aus Zahlen, Daten und Fakten. Jeder Quadratzentimeter dieses Hauses wird sorgfältig vermessen und optimal genutzt.
Merkmale
1.096 m² Grundstück
Gäste-WC
.Architektonische Präzision: Die Immobilie besticht durch klare Linien und eine durchdachte Raumaufteilung, die höchsten Ansprüchen an Eleganz und Funktionalität gerecht wird. .Hochwertige Materialien: Die Verwendung erstklassiger Materialien spiegelt das Streben nach Qualität und Langlebigkeit wider. .Effiziente Raumnutzung: Jeder Quadratmeter ist optimal genutzt, um eine effiziente und dennoch großzügige Raumgestaltung zu ermöglichen. .Nachhaltige Technologien: Innovative Energiesysteme und umweltfreundliche Technologien unterstreichen das Engagement für eine nachhaltige Lebensweise. .Fortschrittliche Heiz- und Kühlsysteme: Intelligente Klimasteuerung für höchsten Komfort und maximale Energieeffizienz.
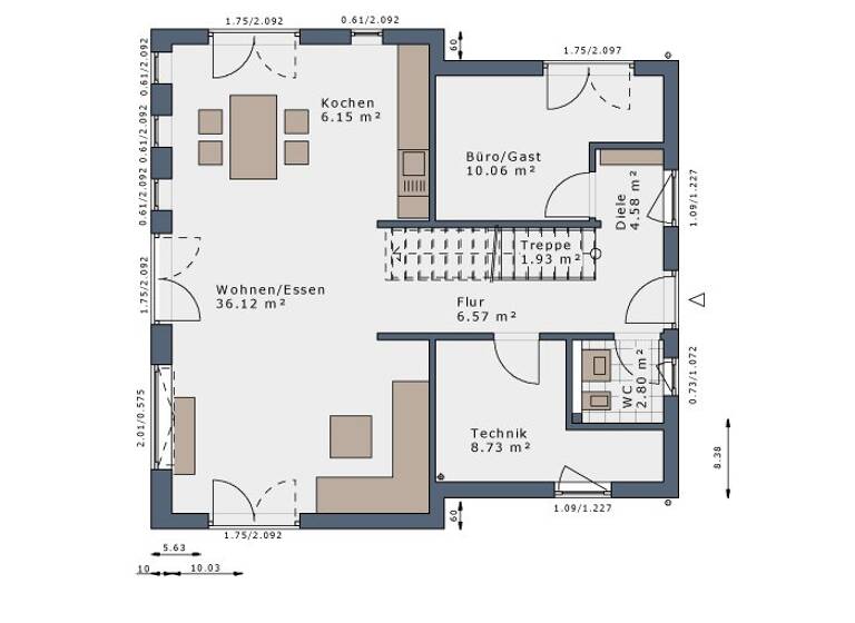
Grundrisse
Grundrisse
1 / 2
Realisiere Dein Projekt
Bausubstanz und Energie
Der Anbieter hat keine Informationen zum Energieverbrauch bereit gestellt.
Zustand der ImmobilieNeubau, Projektiert
HeizungsartFuĂźbodenheizung
Preisdetails
Kaufpreis
620878 €620.878 €
4.434,84 €/m²
Provision für Käufer
provisionsfrei
Geschätzte Gesamtkosten
673.652 €1
Kaufpreis
620.878 €
Kaufnebenkosten
52.774 €
2
Notarkosten (1,5%)
9.313 €
Grunderwerbsteuer (6,5%)
40.357 €
Grundbucheintrag (0,5%)
3.104 €
1Der angezeigte Wert ist eine automatisch berechnete Schätzung von immowelt.
2Bei den Angaben handelt es sich um ortsübliche Werte. Individuelle Kosten können abweichen.
Lage
Klein Kreutz, Brandenburg an der Havel (14776)
Der Anbieter hat die genaue Adresse nicht freigegeben
BaugrundstĂĽcke in attraktiver Waldrandlage in Klein Kreutz
Weitere Informationen
Sonstiges
Das Haus ist projektiert inkl. GrundstĂĽck. Das GrundstĂĽck wird in Kommission angeboten bzw. direkt von Dritten verkauft. Daher kann der o.g. Preis aufgrund aktueller Marktsituationen schwanken.
Die Bauabwicklung kann kurzfristig nach Grundstückserwerb begonnen werden. Bilder zeigen möglicherweise Sonderausstattungen, die auf Wunsch gegen Preiskorrektur zusätzlich angeboten werden können.
Fragen Sie nach unserem kostenlosen Beratungs-Service und erhalten Sie in einem persönlichen Gespräch kostenlos alle wichtigen Informationen zu diesem Projekt, insbesondere: Lage und Bebauungsmöglichkeiten des Baugrundstücks, Baukosten-Kalkulation, Finanzierungs- u. Förderungs-Möglichkeiten, detaillierte Architektur- u. Grundrissplanung, etc.
Wir freuen uns, Sie ausfĂĽhrlich beraten zu dĂĽrfen!
Anbauteile, Carport, Garage und Keller können Extras sein, die als Sonderausstattung angeboten werden. Abbildungen, Grundrisse und Flächenangaben sind beispielhaft und können Extras zeigen. Flächenangaben nach DIN 277.
Profitieren Sie jetzt von der Schwabenhaus Online Beratung und verwirklichen Sie Ihr Traumhaus https://www.schwabenhaus.de/anmeldung-hausbau-beratung-online/
Stichworte
Anzahl der Schlafzimmer: 3, Anzahl der Badezimmer: 1, Anzahl der separaten WCs: 1