Version: 8.24.0Navigation überspringen
DAHLER Hannover
1.595.000 €
7 Zimmer  •  395 m²  •  2.099 m² Grundstück

Villa zum Kauf
1595000 €
5.769 €/m²
7 Zimmer  •  395 m²  •  2.099 m² Grundstück

Klassisches Understatement: Großzügige Villa in bester Lage!

Diese klassische Stadtvilla beeindruckt nicht nur durch ihre Lage im begehrten hannoverschen Stadtteil Isernhagen-Süd, einem bevorzugten und repräsentativen Teil Hannovers in Bezug auf die Wohnlage, sondern auch durch den außergewöhnlichen und sehr großzügigen Grundriss.

Diese Villa ist in massiver Bauweise 1950 errichtet worden. Im Jahre 1978 wurde sie umfangreich saniert und erweitert. Das Anwesen verfügt über eine Wohnfläche von knapp 400 m² auf einem parkähnlichen Grundstück von ca. 2101 m².

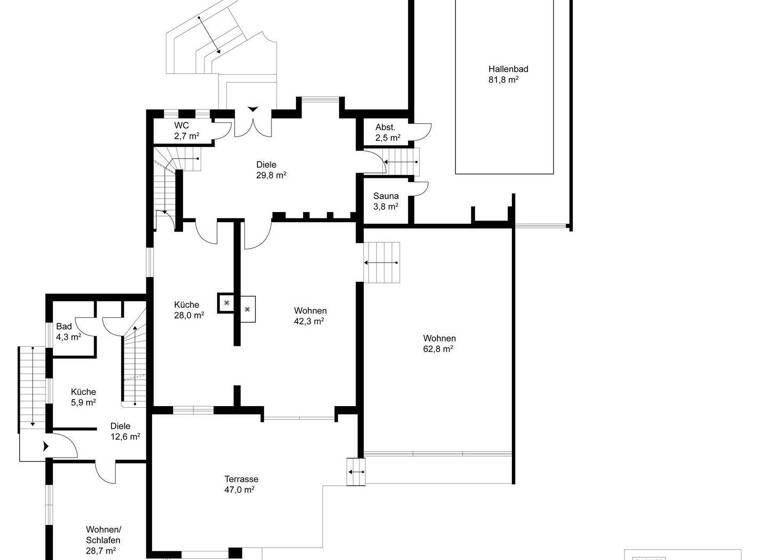
Das Erdgeschoss der Villa ist großzügig dimensioniert. Der Eingangsbereich mit ca. 30 m² dient als Drehkreuz des Hauses. Von der Diele erreichen Sie ein Gäste-WC, das Treppenhaus, die offene Küche, das großzügige Wohnzimmer auf zwei Ebenen mit über 100 m² und den Wellnessbereich mit Indoorpool und Sauna.

Im Obergeschoss befinden sich zwei große Schlafzimmer, ein Ankleideraum mit Loggia, ein Tageslich-Vollbad und ein Hauswirtschaftsraum.

Zusätzlich bietet das Haus zwei Einliegerwohnungen mit jeweils ca. 43 m² und ca. 51 m². Zudem ist das Haus mit einer Fläche von ca. 127 m² und acht Räumen unterkellert.

Merkmale

  • 2.099 m² Grundstück
  • Einbauküche
  • Keller
  • 2 Stellplätze: 2 Carports
  • Gäste-WC
  • Balkon
  • Terrasse
  • Waschraum

Grundrisse

Grundrisse
1 / 3

Realisiere Dein Projekt

Bausubstanz und Energie

Energieausweis

H
  • Baujahr1950
  • Zustand der ImmobilieGepflegt
  • HeizungsartZentralheizung
  • EnergieträgerGas
MediumRectangleTop

Preisdetails

Kaufpreis
1595000 €
5.769,23 €/m²
Provision für Käufer
3,57 % v. Kaufpreis (inkl. ges. MwSt.)
Weitere Preisinformationen
2 Carportplätze
Geschätzte Gesamtkosten
1.763.591 €1
Kaufpreis
1.595.000 €
Notarkosten (1,5%)
23.925 €
Grunderwerbsteuer (5%)
79.750 €
Provision für Käufer (3,57%)
56.941 €
Grundbucheintrag (0,5%)
7.975 €
1Der angezeigte Wert ist eine automatisch berechnete Schätzung von immowelt.
2Bei den Angaben handelt es sich um ortsübliche Werte. Individuelle Kosten können abweichen.

Lage

address-icon
Isernhagen-SüdHannover / Isernhagen-Süd (30657)
Der Anbieter hat die genaue Adresse nicht freigegeben
* Isernhagen-Süd bietet eine Symbiose aus hervorragender Infrastruktur und ländlicher Umgebung
* Landschaftsschutzgebiete und Seen grenzen an die Wohngebiete an
* Tennisclubs, die hannoversche Pferderennbahn, der Golfclub Isernhagen und weitere Vereine in der Nähe
* vielfältige Gastronomie, Supermärkte, einen Bäcker und die Post finden Sie in der unmittelbaren Umgebung
* die Endhaltestelle der Straßenbahn (Fasanenkrug) erreichen Sie fußläufig in ca. 15 Minuten
* bis in das Zentrum Hannovers dauert es mit der Stadtbahnlinie 13 ca. 20 Minuten
* hervorragende Anbindung an die A2 und A7
* schnelle Erreichbarkeit des Flughafens (ca. 10 Minuten)

Weitere Informationen

Sonstiges Haben auch Sie ein Haus oder eine Wohnung in dieser Lage zu verkaufen oder zu vermieten? Wir beraten Sie gern. Besuchen Sie uns in unserem Immobilienshop in der Prüßentrift 84 in 30657 Hannover Isernhagen-Süd oder rufen Sie uns jetzt an unter der 0511.59 05 53-0.

Mauro Lozano Wellner
Diplom Ökonom - Kaufberater
Mobil: 0163 847 11 25 Stichworte Nutzfläche: 213,00 m², Anzahl der Badezimmer: 3, Anzahl der separaten WCs: 1, Anzahl Balkone: 1, Anzahl Terrassen: 1, 1 Etagen Sonstiges/Wohnen: Einliegerwohnung Wellness: Wellnessbereich

Weitere Services

Lust auf eine Besichtigung?
Eine Frage zur Immobilie?
Nachricht hinzufügen
Mit der Nutzung der oben angegebenen Telefonnummer oder durch Klicken auf „Kontaktieren“ akzeptierst Du die Allgemeinen Nutzungsbedingungen, denen Du jederzeit widersprechen kannst. Weitere Informationen zum Datenschutz

Über den Anbieter

DAHLER Hannover
DAHLER HannoverMaklerbüro
Wedekindstraße 4, 30161 Hannover
partner badge
6 Jahre Partnerschaft
Herr Mauro Lozano WellnerDein Kontakt
Online-ID: 2nsnz5l
Referenznummer: DC-ISH2228
DAHLER Hannover
DAHLER Hannover
Bewertung: 4,2 von 5 Sternen
Nachricht hinzufügen
Mit der Nutzung der oben angegebenen Telefonnummer oder durch Klicken auf „Kontaktieren“ akzeptierst Du die Allgemeinen Nutzungsbedingungen, denen Du jederzeit widersprechen kannst. Weitere Informationen zum Datenschutz
MediumRectangleTop
MediumRectangleBottom
MediumRectangleTop
Wie zufrieden bist du mit dieser Seite (nicht mit der Immobilie selbst)?