Moderne KFZ-Werkstatt in erstklassiger Lage - Industriezentrum Wien Liesing
Objektbeschreibung: Zur Vermietung gelangt eine voll ausgestattete KFZ-Werkstatt im begehrten Industriezentrum Wien Liesing. Die Immobilie bietet ideale Voraussetzungen fĂĽr den sofortigen Start oder die Erweiterung eines bestehenden KFZ-Betriebs. Die Werkstatt befindet sich in einem etablierten Gewerbegebiet mit hervorragender Infrastruktur und ausgezeichneter Verkehrsanbindung.
Highlights der Immobilie:
Top-Lage im Industriezentrum Wien Liesing
Gute Sichtbarkeit und frequentierte Umgebung
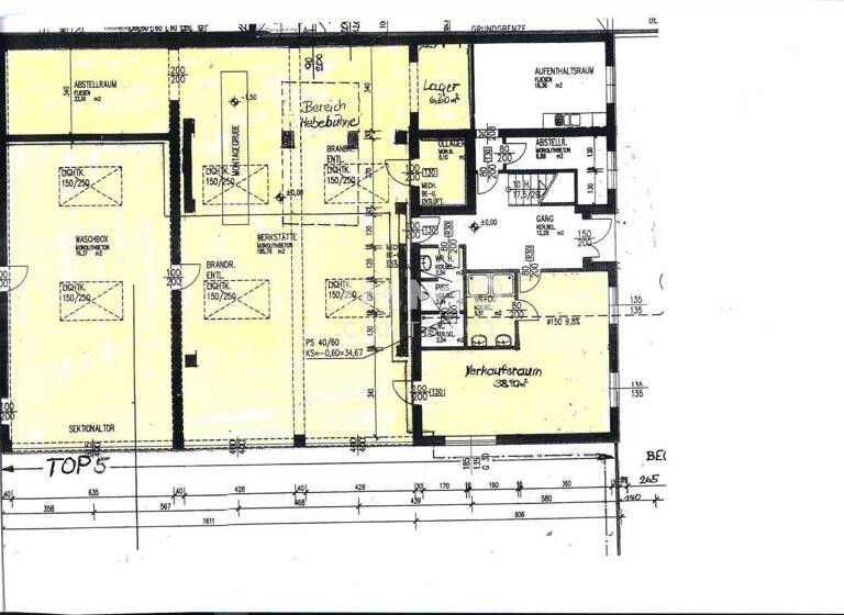
Ca. 540 m² Nutzfläche
Mehrere Einfahrtstore, auch fĂĽr LKW geeignet
HebebĂĽhnen und Werkstatteinrichtung (optional - je nach Vereinbarung)
Lackierhalle am Gelände vorhanden
Sanitär- und Sozialräume vorhanden
Verkaufsflächen integriert
10 Parkplätze auf Eigengrund
Mietkonditionen:
Miete: 9.000.- netto
Betriebskosten: 500.- netto
Kaution: 3 Brutto Monatsmieten
VerfĂĽgbar ab: Sofort
Besichtigung und Kontakt: Überzeugen Sie sich selbst von dieser attraktiven Gewerbeimmobilie. Gerne stehen wir für eine persönliche Besichtigung zur Verfügung.
Bitte beachte, das Angebot kann bei Vertragsabschluss die Zahlung einer Provision beinhalten. Weitere Informationen erhältst Du vom Anbieter.
Kaution
keine Angabe
Weitere Preisinformationen
Nettokaltmiete: 9.000,00 EUR
Lage
Wien (1230)
Lage und Infrastruktur:
Das Industriezentrum Liesing zählt zu den wichtigsten Wirtschaftsstandorten im Süden Wiens. Die Werkstatt ist sowohl mit dem Auto als auch öffentlich optimal erreichbar (Anbindung an A2, A23, S1, B17 Buslinien in der Nähe). In unmittelbarer Umgebung befinden sich zahlreiche Gewerbebetriebe, Zulieferer und potenzielle Geschäftspartner.