
Wohnlux24 Immobilien
Herrn Kerim Gökkaya
071 ···
Nr. anzeigenPreise & Kosten
Provision für Käufer
3,57% inkl. MwSt.
Lage
Die Etagenwohnung befindet sich in einem ruhigen Stadtteil von Wernau (Neckar), einer malerischen Stadt in der Region Stuttgart. Der Stadtteil ist geprägt von charmanten Wohnhäusern und bietet eine entspannte Wohnatmosphäre. Die unmittelbare Umgebung bietet eine gute Anbindung an öffentliche Verkehrsmittel sowie...
Die Wohnung
Wohnungslage
2. Geschoss
Bezug
nach Vereinbarung
Wohnanlage
Energie & Heizung
Warum sehe ich diese Anzeige? – Du siehst diese Anzeige basierend auf Ihrer Navigation auf unserer Website und den Suchkriterien, die du verwendet hast.
Energieausweistyp
Verbrauchsausweis
Gebäudetyp
Wohngebäude
Baujahr laut Energieausweis
1961
Wesentliche Energieträger
Öl
Gültigkeit
08.06.2018 bis 08.06.2028
Effizienzklasse
C
Endenergieverbrauch
98,90 kWh/(m²·a) - Warmwasser enthalten
Weitere Energiedaten
Energieträger
Öl
Details
Objektbeschreibung
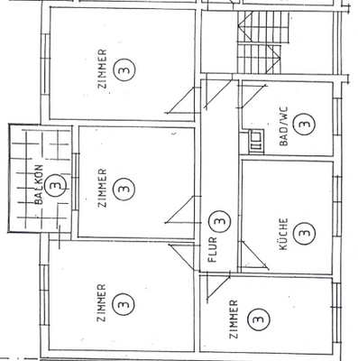
Diese 4-Zimmer-Eigentumswohnung aus dem Baujahr 1961 bietet eine Wohnfläche von ca. 98 m² und überzeugt durch einen sehr gut geschnittenen Grundriss. Die Räume sind mit Laminat- und Fliesenböden ausgestattet, die doppelt verglasten Kunststofffenster sorgen für ein angenehmes Wohnklima. Beheizt wird die Wohnung über eine...
Ausstattung
Highlights der Immobilie:
. ca. 98 m² Wohnfläche mit idealem Grundriss
. 4 Zimmer - perfekt für Familien, Paare oder Homeoffice-Nutzer
. gemütlicher Balkon für entspannte Stunden
. Einbauküche mit Elektrogeräten bereits inklusive
. Badezimmer mit Fenster, Wanne und Waschmaschinenanschluss
. Bodenbeläge...
Preisinformation
1 Stellplatz
Weitere Informationen
Sonstiges
Sehr geehrte Kundin, sehr geehrter Kunde,
gerne stehen wir Ihnen für Fragen vorab eines Besichtigungstermins telefonisch oder schriftlich zur Verfügung.
Bitte haben Sie Verständnis dafür, dass wir anonyme Anfragen weder bearbeiten noch die gewünschten Daten zur
Verfügung stellen. Nach § 2 Abs. 1 Nr...
Anbieter der Immobilie
Wohnlux24 Immobilien
Raiffeisenstrasse 14, 70771 Leinfelden-Echterdingen
Online-ID: 2l4m35c
Referenznummer: 155124274#issyqS
Finde Angebote wie dieses
Hier geht es zu unserem Impressum, den Allgemeinen Geschäftsbedingungen, den Hinweisen zum Datenschutz und nutzungsbasierter Online-Werbung.